
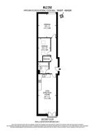
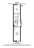
2 bedroom apartment for sale
Mile End Road, LONDON

- PROPERTY TYPE
Apartment
- BEDROOMS
2
- BATHROOMS
1
- SIZE
Ask agent
Key features
- 2 bedroom
- Share of freehold
- Double height ceilings with skylights flooding the property with natural light
- Top floor
- Over 700 internal sq footage
- Wedged between 2 major stations
- An abundance of local amenities with bespoke eateries and cafes on your doorstep.
- An ideal first time buy
Description
As you step inside, you are immediately struck by the incredible sense of light and space. The property benefits from spectacular double-height ceilings with skylights, which flood the apartment with natural light throughout the day. This feature creates a bright and airy atmosphere, making the apartment feel even larger than its generous footprint.
Beyond the apartment, the location is a significant highlight, offering unparalleled connectivity and lifestyle benefits. This home is wedged between two major stations, giving you a choice of transport links. You are just a short walk from both Stepney Green and Mile End tube stations, providing access to the District, Hammersmith & City, and Central lines. This means you can reach the heart of The City and Canary Wharf with ease, while also having direct links to key destinations across London.
The area is vibrant and well-established, with an abundance of local amenities right on your doorstep. You'll find a wide selection of bespoke eateries, cafes, and independent shops, offering a lively and convenient local atmosphere. For those who enjoy the outdoors, Mile End Park and the Regent's Canal are nearby, providing peaceful green spaces and scenic walking routes. This combination of a unique, spacious apartment and a truly connected and lively location makes this an ideal first-time purchase.
Disclaimer
Felicity J Lord Estate Agents also offer a professional, ARLA accredited Lettings and Management Service. If you are considering renting your property in order to purchase, are looking at buy to let or would like a free review of your current portfolio then please call the Lettings Branch Manager on the number shown above.
Felicity J Lord Estate Agents is the seller's agent for this property. Your conveyancer is legally responsible for ensuring any purchase agreement fully protects your position. We make detailed enquiries of the seller to ensure the information provided is as accurate as possible. Please inform us if you become aware of any information being inaccurate.
Brochures
Material InformationBrochure- COUNCIL TAXA payment made to your local authority in order to pay for local services like schools, libraries, and refuse collection. The amount you pay depends on the value of the property.Read more about council Tax in our glossary page.
- Ask agent
- PARKINGDetails of how and where vehicles can be parked, and any associated costs.Read more about parking in our glossary page.
- Ask agent
- GARDENA property has access to an outdoor space, which could be private or shared.
- Ask agent
- ACCESSIBILITYHow a property has been adapted to meet the needs of vulnerable or disabled individuals.Read more about accessibility in our glossary page.
- Ask agent
Mile End Road, LONDON
Add an important place to see how long it'd take to get there from our property listings.
__mins driving to your place
Get an instant, personalised result:
- Show sellers you’re serious
- Secure viewings faster with agents
- No impact on your credit score
Your mortgage
Notes
Staying secure when looking for property
Ensure you're up to date with our latest advice on how to avoid fraud or scams when looking for property online.
Visit our security centre to find out moreDisclaimer - Property reference 0081_FJL008110113. The information displayed about this property comprises a property advertisement. Rightmove.co.uk makes no warranty as to the accuracy or completeness of the advertisement or any linked or associated information, and Rightmove has no control over the content. This property advertisement does not constitute property particulars. The information is provided and maintained by Felicity J Lord, Bow. Please contact the selling agent or developer directly to obtain any information which may be available under the terms of The Energy Performance of Buildings (Certificates and Inspections) (England and Wales) Regulations 2007 or the Home Report if in relation to a residential property in Scotland.
*This is the average speed from the provider with the fastest broadband package available at this postcode. The average speed displayed is based on the download speeds of at least 50% of customers at peak time (8pm to 10pm). Fibre/cable services at the postcode are subject to availability and may differ between properties within a postcode. Speeds can be affected by a range of technical and environmental factors. The speed at the property may be lower than that listed above. You can check the estimated speed and confirm availability to a property prior to purchasing on the broadband provider's website. Providers may increase charges. The information is provided and maintained by Decision Technologies Limited. **This is indicative only and based on a 2-person household with multiple devices and simultaneous usage. Broadband performance is affected by multiple factors including number of occupants and devices, simultaneous usage, router range etc. For more information speak to your broadband provider.
Map data ©OpenStreetMap contributors.






