26 Midlothian Drive, Waverley Park, G41 3QX

- PROPERTY TYPE
Semi-Detached
- BEDROOMS
4
- BATHROOMS
2
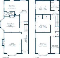
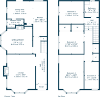
- SIZE
1,668 sq ft
155 sq m
- TENUREDescribes how you own a property. There are different types of tenure - freehold, leasehold, and commonhold.Read more about tenure in our glossary page.
Freehold
Key features
- Stone built semi-detached property
- 4 versatile bedrooms, 2 public rooms
- Large integrated dining kitchen
- New roof covering installed 2017
- New sash & case windows with guarantee
- Enclosed gardens front, side & rear
- Thriving local amenities nearby
Description
Positioned in corner grounds in a quiet Southside address, this outstanding semi-detached property will attract immediate interest from astute buyers. With a tremendous dining kitchen opening to gardens and numerous sought-after traits, the property has been lovingly modified and cared for by our clients.
The accommodation in brief; vestibule via storm doors, reception hallway with bespoke storage, dual aspect bay windowed lounge with real fire, bay windowed sitting room with convenient serving hatch and a tremendous, full width dining kitchen to the rear. The kitchen includes an integrated fridge/freezer, gas hob, oven, washing machine, dishwasher and sink as well as a rear door leading out to the back garden. A modern shower room/wc completes the ground floor accommodation.
The original staircase leads to first floor level revealing four flexible bedrooms and a contemporary three-piece bathroom suite with shower over the tub. The principal bedroom has the same dual aspect window formation as the lounge below whilst there are two storage cupboards off the landing, one of which gives access via ceiling hatch into an insulated attic. Some of the first-floor windows offer terrific views of the Glasgow skyline and onwards to the Campsie Fells.
The property has gas fired central heating (boiler fitted 2021), sash & case double glazed windows (fitted 2018) and tasteful décor/flooring throughout. Our clients have replaced all radiators since they took ownership, and the roof covering was replaced in 2017. Gardens grounds are found to the front, side and rear of the building, all very well maintained and presented. The back garden has been expertly designed to include a timber decking adjacent to the kitchen, external plug sockets and a useful storage shed.
EER Band - D
Local Area
26 Midlothian Drive is within half a mile of Shawlands coffee houses, restaurants, gastropubs and bakeries. More extensive facilities are available at the Crossmyloof Morrisons store or the Sainsburys store on Darnley Road. Recreational pursuits within the area are available at Queens Park, Maxwell Park or Pollok Country Park. Both Crossmyloof and Shawlands train stations are approximately 600 yards from the front door, Shields Road underground station is one mile away and junction 1 of the M77 connects the Southside of Glasgow to Scotland's motorway network.
Directions
SAT NAV: 26 Midlothian Drive, Glasgow, G41 3QX
Brochures
Brochure 1Web Details- COUNCIL TAXA payment made to your local authority in order to pay for local services like schools, libraries, and refuse collection. The amount you pay depends on the value of the property.Read more about council Tax in our glossary page.
- Band: E
- PARKINGDetails of how and where vehicles can be parked, and any associated costs.Read more about parking in our glossary page.
- On street
- GARDENA property has access to an outdoor space, which could be private or shared.
- Yes
- ACCESSIBILITYHow a property has been adapted to meet the needs of vulnerable or disabled individuals.Read more about accessibility in our glossary page.
- Ask agent
Energy performance certificate - ask agent
26 Midlothian Drive, Waverley Park, G41 3QX
Add an important place to see how long it'd take to get there from our property listings.
__mins driving to your place
Get an instant, personalised result:
- Show sellers you’re serious
- Secure viewings faster with agents
- No impact on your credit score
Your mortgage
Notes
Staying secure when looking for property
Ensure you're up to date with our latest advice on how to avoid fraud or scams when looking for property online.
Visit our security centre to find out moreDisclaimer - Property reference SS5121. The information displayed about this property comprises a property advertisement. Rightmove.co.uk makes no warranty as to the accuracy or completeness of the advertisement or any linked or associated information, and Rightmove has no control over the content. This property advertisement does not constitute property particulars. The information is provided and maintained by Corum, Shawlands. Please contact the selling agent or developer directly to obtain any information which may be available under the terms of The Energy Performance of Buildings (Certificates and Inspections) (England and Wales) Regulations 2007 or the Home Report if in relation to a residential property in Scotland.
*This is the average speed from the provider with the fastest broadband package available at this postcode. The average speed displayed is based on the download speeds of at least 50% of customers at peak time (8pm to 10pm). Fibre/cable services at the postcode are subject to availability and may differ between properties within a postcode. Speeds can be affected by a range of technical and environmental factors. The speed at the property may be lower than that listed above. You can check the estimated speed and confirm availability to a property prior to purchasing on the broadband provider's website. Providers may increase charges. The information is provided and maintained by Decision Technologies Limited. **This is indicative only and based on a 2-person household with multiple devices and simultaneous usage. Broadband performance is affected by multiple factors including number of occupants and devices, simultaneous usage, router range etc. For more information speak to your broadband provider.
Map data ©OpenStreetMap contributors.







