Swan Street, Sileby
- PROPERTY TYPE
Commercial Property
- SIZE
2,896 sq ft
269 sq m
Key features
- FOR SALE - Commercial Investment
- A Large Character Property, Previously Used For Educational Purposes
- Located Near To Sileby Railway Station
- Total GIA: 2,896 SQFT (269 SQM)
- Originally Built In 1931 & Former Methodist Church
- A Mixture Of Reception Rooms, Classrooms, Offices, Kitchen, WCs & Stores
- Courtyard To The Front & Side
- Planning Granted For The Conversion To 4 Large Apartments
- Previously Let at £16,000 PAX
Description
Location
This property is located on Swan Street, which is off Ratcliffe Road and in the sought after area of Sileby. Nearby amenities include Sileby Railway Station, convenience stores, eateries and much more. The area is serviced by frequent bus links to and from Leicester City Centre and surrounding areas.
Description
Originally built in 1931, this property was a former Methodist Church and has previously been used as an educational facility. The property offers spacious accommodation over two floors totalling approximately 2,896 sqft (269 sqm) and briefly comprises of a mixture of reception rooms, classrooms, offices, kitchen, WCs and stores and boasts a number of period features throughout, including stone mullion windows and exposed timbers. Externally, there are courtyards to the front and side of the property.
Planning permission has been granted for the conversion to 4 large apartments (3x2 beds) and (1x1 bed).
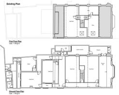
Accommodation
All measurements are approximate:
Ground Floor
Entrance Hall
29' 9'' x 13' 6'' (9.06m x 4.11m)
Reception Room
17' 2'' x 8' 1'' (5.23m x 2.46m)
Classroom One
26' 6'' x 18' 2'' (8.07m x 5.53m)
Classroom Two
29' 9'' x 13' 7'' (9.06m x 4.14m)
Classroom Three
21' 7'' x 15' 0'' (6.57m x 4.57m)
Classroom Four
13' 6'' x 7' 9'' (4.11m x 2.36m)
Kitchen
13' 4'' x 13' 7'' (4.06m x 4.14m)
Store
WCs
First Floor
Office One
21' 5'' x 13' 5'' (6.52m x 4.09m)
Office Two
18' 3'' x 8' 9'' (5.56m x 2.66m)
Classroom Five
25' 9'' x 21' 9'' (7.84m x 6.62m)
Outside
Courtyard to the front and side.
Planning
Planning permission has been granted for the change of use and conversion of education facility with ancillary offices to four residential units.
Planning application no: P/23/1924/2 dated 17.01.2024.
The property currently has Class F use and is suitable for other uses subject to obtaining necessary planning consent. For all enquiries regarding planning, please contact Charnwood Borough Council on .
Tenure
Freehold.
EPC
Band G.
Services
The services, fittings and appliances (if any) have not been tested by the agents.
Local Authority
Charnwood Borough Council.
Viewings
Kal Sangra, Shonki Brothers Ltd
85 Granby Street, Leicester LE1 6FB
Tel:
Email:
Brochures
Full DetailsSwan Street, Sileby
NEAREST STATIONS
Distances are straight line measurements from the centre of the postcode- Sileby Station0.2 miles
- Barrow upon Soar Station2.0 miles
- Syston Station2.8 miles



Notes
Disclaimer - Property reference 12716114. The information displayed about this property comprises a property advertisement. Rightmove.co.uk makes no warranty as to the accuracy or completeness of the advertisement or any linked or associated information, and Rightmove has no control over the content. This property advertisement does not constitute property particulars. The information is provided and maintained by Kal Sangra Shonki Brothers, Leicester. Please contact the selling agent or developer directly to obtain any information which may be available under the terms of The Energy Performance of Buildings (Certificates and Inspections) (England and Wales) Regulations 2007 or the Home Report if in relation to a residential property in Scotland.
Map data ©OpenStreetMap contributors.