2 bedroom flat for sale
Lazio, Rome, Roma, Italy
- PROPERTY TYPE
Flat
- BEDROOMS
2
- BATHROOMS
2
- SIZE
1,184 sq ft
110 sq m
Key features
- 3 Rooms
- TV aerial Communal
- SAT TV Communal
- Conditioned air
- Parquet
- Electrical system In accordance
- Shower
- Wooden frames
- Alarm setup
Description
In one of the most exclusive areas of Rome, we offer for sale a refined and quiet apartment in Via Cassia 240, a few steps from Piazza dei Giuochi Delfici.
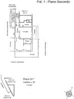
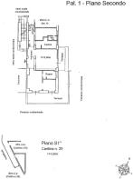
The property, registered as a second floor but with a partial ground floor view compared to the condominium separation, is located within an elegant residential complex, consisting of four curtain wall buildings, with concierge service and private access via automatic barrier: a well-kept and private context, ideal for those seeking tranquility and security.
The property comprises an entrance hall, a living room that opens onto a balcony and a perimeter terrace that surrounds part of the property and guarantees a pleasant outdoor vent, a bedroom with en suite bathroom, a further multifunctional room (ideal as a study, walk-in closet or third bedroom), kitchen, bedroom and a second bathroom with shower.
Additionally, it is possible to restore a second service entrance.
The property is completed by a convenient cellar.
The apartment does not have a parking space, but the complex offers unassigned condominium parking, both covered and uncovered.
The area, elegant and full of services, is perfectly connected and represents an ideal solution for those seeking comfort, privacy and prestige in one of the most sought-after residential areas of the Capital.
Lazio, Rome, Roma, Italy
NEAREST AIRPORTS
Distances are straight line measurements- Ciampino(International)12.4 miles
- Leonardo da Vinci(International)14.3 miles
Advice on buying Italian property
Learn everything you need to know to successfully find and buy a property in Italy.
Notes
This is a property advertisement provided and maintained by Coldwell Banker Gruppo Bodini, Italia (reference 280856_185818401005135) and does not constitute property particulars. Whilst we require advertisers to act with best practice and provide accurate information, we can only publish advertisements in good faith and have not verified any claims or statements or inspected any of the properties, locations or opportunities promoted. Rightmove does not own or control and is not responsible for the properties, opportunities, website content, products or services provided or promoted by third parties and makes no warranties or representations as to the accuracy, completeness, legality, performance or suitability of any of the foregoing. We therefore accept no liability arising from any reliance made by any reader or person to whom this information is made available to. You must perform your own research and seek independent professional advice before making any decision to purchase or invest in overseas property.





