
Northway, Sedgley

- PROPERTY TYPE
Detached
- BEDROOMS
3
- BATHROOMS
1
- SIZE
Ask agent
- TENUREDescribes how you own a property. There are different types of tenure - freehold, leasehold, and commonhold.Read more about tenure in our glossary page.
Freehold
Description
A Superbly Presented Detached Family Home in a Prime Northway Location
Perfectly positioned on the ever-popular Northway, this deceptively spacious and immaculately maintained detached residence offers the ideal blend of comfort, style, and practicality—making it a standout choice for growing families or discerning buyers.
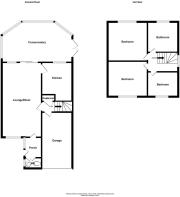
From the outset, the home impresses with its attractive frontage and ample driveway parking, leading into a welcoming entrance porch and convenient guest W/C. The heart of the home is the 21ft through-lounge, a bright and versatile space perfect for both relaxing and entertaining.
The modern fitted kitchen is equipped with a range of integrated appliances, seamlessly flowing into a stunning 19ft conservatory—bathed in natural light and offering delightful views of the garden, it’s the perfect spot for dining or unwinding.
An inner hallway leads to the first floor, where you'll find three well-proportioned bedrooms and an attractive family bathroom, all thoughtfully designed with comfort in mind.
Outside, the well-established rear garden provides a peaceful retreat, ideal for family life or summer gatherings. A garage adds further convenience, while gas central heating and UPVC double glazing ensure year-round efficiency and comfort.
EPC - TBA. Council Tax - D. Tenure – Freehold
Construction: Brick with a pitched interlocking tile roof. All mains services are connected. Broadband/Mobile coverage: checker.ofcom.org.uk/en-gb/broadbandcoverage/
Flood Risk - Less than 0.1% chance per annum.
SEDGLEY BRANCH
Brochures
Brochure 1- COUNCIL TAXA payment made to your local authority in order to pay for local services like schools, libraries, and refuse collection. The amount you pay depends on the value of the property.Read more about council Tax in our glossary page.
- Band: D
- PARKINGDetails of how and where vehicles can be parked, and any associated costs.Read more about parking in our glossary page.
- Garage,Driveway
- GARDENA property has access to an outdoor space, which could be private or shared.
- Private garden
- ACCESSIBILITYHow a property has been adapted to meet the needs of vulnerable or disabled individuals.Read more about accessibility in our glossary page.
- Ask agent
Northway, Sedgley
Add an important place to see how long it'd take to get there from our property listings.
__mins driving to your place
Get an instant, personalised result:
- Show sellers you’re serious
- Secure viewings faster with agents
- No impact on your credit score


Your mortgage
Notes
Staying secure when looking for property
Ensure you're up to date with our latest advice on how to avoid fraud or scams when looking for property online.
Visit our security centre to find out moreDisclaimer - Property reference S1430294. The information displayed about this property comprises a property advertisement. Rightmove.co.uk makes no warranty as to the accuracy or completeness of the advertisement or any linked or associated information, and Rightmove has no control over the content. This property advertisement does not constitute property particulars. The information is provided and maintained by Taylors Estate Agents, Sedgley. Please contact the selling agent or developer directly to obtain any information which may be available under the terms of The Energy Performance of Buildings (Certificates and Inspections) (England and Wales) Regulations 2007 or the Home Report if in relation to a residential property in Scotland.
*This is the average speed from the provider with the fastest broadband package available at this postcode. The average speed displayed is based on the download speeds of at least 50% of customers at peak time (8pm to 10pm). Fibre/cable services at the postcode are subject to availability and may differ between properties within a postcode. Speeds can be affected by a range of technical and environmental factors. The speed at the property may be lower than that listed above. You can check the estimated speed and confirm availability to a property prior to purchasing on the broadband provider's website. Providers may increase charges. The information is provided and maintained by Decision Technologies Limited. **This is indicative only and based on a 2-person household with multiple devices and simultaneous usage. Broadband performance is affected by multiple factors including number of occupants and devices, simultaneous usage, router range etc. For more information speak to your broadband provider.
Map data ©OpenStreetMap contributors.





