
5 bedroom detached house for sale
Gleneagles Close, Sutton Hill, Telford, Shropshire, TF7

- PROPERTY TYPE
Detached
- BEDROOMS
5
- BATHROOMS
2
- SIZE
Ask agent
- TENUREDescribes how you own a property. There are different types of tenure - freehold, leasehold, and commonhold.Read more about tenure in our glossary page.
Freehold
Key features
- Five Bedrooms
- Ground Floor Annex
- Two Conservatories
- Sought After Location
- Recently Re-Decorated
- Utility Room
- Ensuite Shower Room
- Enclosed Rear Garden
- Driveway To Front
Description
Boasting a bright, clean and well-maintained interior, this property offers a spacious living environment ideal for a growing family.
The house features a charming garden and patio, perfect for outdoor relaxation and entertaining guests. Additionally, the property includes an annexe, providing a versatile space that can be used as a guest suite or incorporated into the main living accommodation.
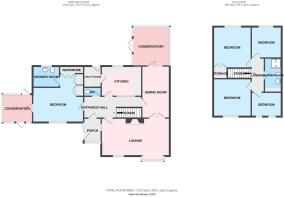
The ground floor comprises, entrance hall, guest cloaks w,c lounge, dining room, kitchen, utility, Annex bedroom complete with built in wardrobes, walk in wet room plus conservatory / sitting room.
The first floor boasts four comfortable bedrooms and modern family shower room.
With off-street parking available, convenience is key for residents, offering both comfort and style in a prime location.
Don't miss the opportunity to make this property your own and enjoy the lifestyle it has to offer.
Contact us today to arrange a viewing.
Mobile coverage from all four major networks available*
Ultrafast broadband available*
All services are mains connected
Driveway parking
*Results provided by Ofcom and correct at time of listing
Entrance Hall
Guest Cloaks w/c
Lounge
6.5m x 3.5m
Dining Room
4.8m x 2.7m
Conservatory
3.6m x 3.4m
Kitchen
3.7m x 2.9m
Utility Room
2m x 1.6m
Groundfloor Reception Bedroom
4.7m x 4.4m
Ensuite Shower Room
Conservatory / Sitting Room
2.7m x 2.6m
Stairs to First Floor
Bedroom One
3.5m x 3.3m
Bedroom Two
3.5m x 3.5m
Bedroom Three
2.9m x 2.9m
Bedroom Four
2.9m x 2.2m
Family Bathroom
Enclosed Rear Garden
Driveway to Front
Brochures
Particulars- COUNCIL TAXA payment made to your local authority in order to pay for local services like schools, libraries, and refuse collection. The amount you pay depends on the value of the property.Read more about council Tax in our glossary page.
- Band: D
- PARKINGDetails of how and where vehicles can be parked, and any associated costs.Read more about parking in our glossary page.
- Yes
- GARDENA property has access to an outdoor space, which could be private or shared.
- Yes
- ACCESSIBILITYHow a property has been adapted to meet the needs of vulnerable or disabled individuals.Read more about accessibility in our glossary page.
- Ask agent
Gleneagles Close, Sutton Hill, Telford, Shropshire, TF7
Add an important place to see how long it'd take to get there from our property listings.
__mins driving to your place
Get an instant, personalised result:
- Show sellers you’re serious
- Secure viewings faster with agents
- No impact on your credit score



Your mortgage
Notes
Staying secure when looking for property
Ensure you're up to date with our latest advice on how to avoid fraud or scams when looking for property online.
Visit our security centre to find out moreDisclaimer - Property reference TTC251419. The information displayed about this property comprises a property advertisement. Rightmove.co.uk makes no warranty as to the accuracy or completeness of the advertisement or any linked or associated information, and Rightmove has no control over the content. This property advertisement does not constitute property particulars. The information is provided and maintained by D B Roberts & Partners, Telford. Please contact the selling agent or developer directly to obtain any information which may be available under the terms of The Energy Performance of Buildings (Certificates and Inspections) (England and Wales) Regulations 2007 or the Home Report if in relation to a residential property in Scotland.
*This is the average speed from the provider with the fastest broadband package available at this postcode. The average speed displayed is based on the download speeds of at least 50% of customers at peak time (8pm to 10pm). Fibre/cable services at the postcode are subject to availability and may differ between properties within a postcode. Speeds can be affected by a range of technical and environmental factors. The speed at the property may be lower than that listed above. You can check the estimated speed and confirm availability to a property prior to purchasing on the broadband provider's website. Providers may increase charges. The information is provided and maintained by Decision Technologies Limited. **This is indicative only and based on a 2-person household with multiple devices and simultaneous usage. Broadband performance is affected by multiple factors including number of occupants and devices, simultaneous usage, router range etc. For more information speak to your broadband provider.
Map data ©OpenStreetMap contributors.





