Dentdale Close, Lostock, Bolton, BL1
- PROPERTY TYPE
Land
- SIZE
Ask agent
Key features
- Fabulous Plot in Sought After Lostock Location
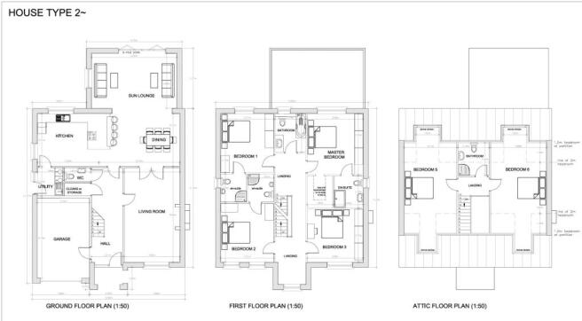
- Planning Approved for Three Detached Dwellings - 3000sq ft
- Option to Amend Planning and Add Extra Dwelling
- Access Installed by Owner - Ready for Building to Commence
- All Costs Calculated by QS
- Excellent Access to M61, Bolton School & Train Links
Description
Three Building Plots - Planning Approved for Large Detached Dwellings Over 3000 sq ft - Option to Change Planning - Access Installed Already - Sought After Location
A superb opportunity to acquire a generous plot of land in the highly sought-after Lostock area, with planning permission already approved for three spacious detached family homes offering over 3000 sq ft in accomodation. The site offers further potential, subject to planning, to accommodate a fourth property, making it an ideal investment for developers or self-build buyers.
Bolton Council planning application number -
15663/23
The current owner has already installed vehicular access, reducing initial groundwork requirements and allowing a smoother progression for the next stage of development.
Set within a popular and desirable residential location in Lostock, the plot benefits from excellent local amenities, reputable schools, and strong transport links, making it an attractive setting for future buyers.
Bolton Town Centre, is within 3 miles, and the M61 is accessible approximately 2 miles and Middlebrook retail park is a short drive making the development well placed for commuting to the wider region or within the local area. Train stations are located at Bolton or Lostock, with Lostock within walking distance for access into Manchester. The highly regarded independent Bolton School is within 2 miles.
This is a rare chance to secure prime land in Lostock with fantastic development potential.
Dentdale Close, Lostock, Bolton, BL1
NEAREST STATIONS
Distances are straight line measurements from the centre of the postcode- Lostock Station0.3 miles
- Westhoughton Station2.0 miles
- Horwich Parkway Station2.1 miles
Notes
Disclaimer - Property reference REG250312. The information displayed about this property comprises a property advertisement. Rightmove.co.uk makes no warranty as to the accuracy or completeness of the advertisement or any linked or associated information, and Rightmove has no control over the content. This property advertisement does not constitute property particulars. The information is provided and maintained by Regency Estates, Horwich. Please contact the selling agent or developer directly to obtain any information which may be available under the terms of The Energy Performance of Buildings (Certificates and Inspections) (England and Wales) Regulations 2007 or the Home Report if in relation to a residential property in Scotland.
Map data ©OpenStreetMap contributors.







