Willowside Grange, Withington, Cheltenham

- PROPERTY TYPE
Link Detached House
- BEDROOMS
4
- BATHROOMS
4
- SIZE
Ask agent
- TENUREDescribes how you own a property. There are different types of tenure - freehold, leasehold, and commonhold.Read more about tenure in our glossary page.
Freehold
Key features
- Tailormade Incentive Packages Worth £50,000 Available- Call Us For More Information!
- Nestled in the idyllic Cotswold village of Withington, just a short drive from Cheltenham
- This timeless stonework, echoed throughout the property, infuses the home with enduring character and traditional country charm-perfectly balanced with the luxuries of modern living
- At the heart of the home lies a spectacular kitchen/breakfast room, where exposed beams create a warm, rustic atmosphere
- The kitchen, styled in a contemporary shaker design, boasts high-spec integrated appliances
- The elegant living room features French doors to the garden and a charming log-burning stove, set upon one of the original stable flagstones
- Additional ground-floor spaces include a spacious dining room, a private front-facing study
- The exterior offers ample driveway parking behind electric timber gates, an attached single garage with EV charging point
Description
SUMMARY
Tailormade Incentive Packages Worth £50,000! Exceptional home in the idyllic Cotswold village of Withington, near Cheltenham. A spacious, welcoming hallway showcases a striking Cotswold stone wall, beautifully crafted from original materials.
DESCRIPTION
The Stirrups
An exceptional home in the sought-after Cotswold village of Withington, just a short drive from Cheltenham.
Beautifully blending Cotswold charm with modern comforts, it features original stonework, exposed Douglas Fir beams, and high-spec finishes throughout. At its heart is a stunning kitchen/breakfast room with central island, bi-fold doors to the garden, and integrated appliances. A utility and boot room offer added practicality.
The elegant living room has French doors and a log-burning stove set on original flagstones. Further ground floor rooms include a dining room, study, internal courtyard, family bathroom and a bedroom with an ensuite.
Upstairs, two further double bedrooms both feature built-in storage and ensuites, whilst the principal room boasts a dressing area, ensuit and a Juliet balcony.
Outside offers gated driveway parking, an EV-ready garage, and a west-facing garden with patio. Eco features include an air source heat pump, PV panels, and alarm system.
A rare blend of heritage and contemporary living in a truly idyllic location.
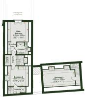
Kitchen 19' 6" x 20' 8" ( 5.94m x 6.30m )
Dining 17' 4" x 17' 6" ( 5.28m x 5.33m )
Living Room 17' 6" x 20' 9" ( 5.33m x 6.32m )
Home Office 12' 7" x 17' 6" ( 3.84m x 5.33m )
Bedroom 4 12' 6" x 13' 2" ( 3.81m x 4.01m )
Main Bedroom 13' 1" x 13' 7" ( 3.99m x 4.14m )
Bedroom 2 13' 4" x 13' 7" ( 4.06m x 4.14m )
Bedroom 3 11' 7" x 21' 4" ( 3.53m x 6.50m )
1. MONEY LAUNDERING REGULATIONS: Intending purchasers will be asked to produce identification documentation at a later stage and we would ask for your co-operation in order that there will be no delay in agreeing the sale.
2. General: While we endeavour to make our sales particulars fair, accurate and reliable, they are only a general guide to the property and, accordingly, if there is any point which is of particular importance to you, please contact the office and we will be pleased to check the position for you, especially if you are contemplating travelling some distance to view the property.
3. The measurements indicated are supplied for guidance only and as such must be considered incorrect.
4. Services: Please note we have not tested the services or any of the equipment or appliances in this property, accordingly we strongly advise prospective buyers to commission their own survey or service reports before finalising their offer to purchase.
5. THESE PARTICULARS ARE ISSUED IN GOOD FAITH BUT DO NOT CONSTITUTE REPRESENTATIONS OF FACT OR FORM PART OF ANY OFFER OR CONTRACT. THE MATTERS REFERRED TO IN THESE PARTICULARS SHOULD BE INDEPENDENTLY VERIFIED BY PROSPECTIVE BUYERS OR TENANTS. NEITHER SEQUENCE (UK) LIMITED NOR ANY OF ITS EMPLOYEES OR AGENTS HAS ANY AUTHORITY TO MAKE OR GIVE ANY REPRESENTATION OR WARRANTY WHATEVER IN RELATION TO THIS PROPERTY.
Brochures
PDF Property ParticularsFull Details- COUNCIL TAXA payment made to your local authority in order to pay for local services like schools, libraries, and refuse collection. The amount you pay depends on the value of the property.Read more about council Tax in our glossary page.
- Band: TBC
- PARKINGDetails of how and where vehicles can be parked, and any associated costs.Read more about parking in our glossary page.
- Yes
- GARDENA property has access to an outdoor space, which could be private or shared.
- Back garden
- ACCESSIBILITYHow a property has been adapted to meet the needs of vulnerable or disabled individuals.Read more about accessibility in our glossary page.
- Ask agent
Willowside Grange, Withington, Cheltenham
Add an important place to see how long it'd take to get there from our property listings.
__mins driving to your place
Get an instant, personalised result:
- Show sellers you’re serious
- Secure viewings faster with agents
- No impact on your credit score
Your mortgage
Notes
Staying secure when looking for property
Ensure you're up to date with our latest advice on how to avoid fraud or scams when looking for property online.
Visit our security centre to find out moreDisclaimer - Property reference WIT106194. The information displayed about this property comprises a property advertisement. Rightmove.co.uk makes no warranty as to the accuracy or completeness of the advertisement or any linked or associated information, and Rightmove has no control over the content. This property advertisement does not constitute property particulars. The information is provided and maintained by Allen & Harris, Witney. Please contact the selling agent or developer directly to obtain any information which may be available under the terms of The Energy Performance of Buildings (Certificates and Inspections) (England and Wales) Regulations 2007 or the Home Report if in relation to a residential property in Scotland.
*This is the average speed from the provider with the fastest broadband package available at this postcode. The average speed displayed is based on the download speeds of at least 50% of customers at peak time (8pm to 10pm). Fibre/cable services at the postcode are subject to availability and may differ between properties within a postcode. Speeds can be affected by a range of technical and environmental factors. The speed at the property may be lower than that listed above. You can check the estimated speed and confirm availability to a property prior to purchasing on the broadband provider's website. Providers may increase charges. The information is provided and maintained by Decision Technologies Limited. **This is indicative only and based on a 2-person household with multiple devices and simultaneous usage. Broadband performance is affected by multiple factors including number of occupants and devices, simultaneous usage, router range etc. For more information speak to your broadband provider.
Map data ©OpenStreetMap contributors.








