
Rhiwlas, Oswestry.

- PROPERTY TYPE
Equestrian Facility
- BEDROOMS
4
- BATHROOMS
3
- SIZE
7,100 sq ft
660 sq m
- TENUREDescribes how you own a property. There are different types of tenure - freehold, leasehold, and commonhold.Read more about tenure in our glossary page.
Freehold
Key features
- Beautifully modernised 4-bedroom detached country residence with fibre broadband
- Set in approximately 5.25 acres with far-reaching countryside views
- Well maintained olympic-sized manége
- Extensive equestrian facilities including stone built stables, tack room, two barns, and two field shelters
- Two reception rooms with grand multi-fuel burners and period features
- Carport, large parking/turning area, and practical outbuildings
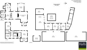
Description
Description - An exceptional equestrian property with Olympic-sized arena, stabling and paddocks, paired with a beautifully appointed country home in a scenic rural setting near Oswestry.
The Accommodation - The interior of the home is beautifully arranged with spacious, versatile accommodation that blends original character and quality modern enhancements.
A welcoming reception hall leads to three elegant reception rooms, including a garden room with vaulted ceiling and full-height glazing, a cosy sitting room with log burner and exposed beams, and a formal dining area. The bespoke Kenton Jones kitchen features granite worktops, a central island, NEFF integrated appliances, and links directly to the dining/snug area, perfect for family life and entertaining. A large utility/boot room with separate access is ideal for rural living.
Upstairs, four generously proportioned bedrooms are served by stylish bathrooms finished to a high specification, including twin sinks, a double-ended bath and walk-in rainfall showers. The principal suite enjoys dual-aspect countryside views and generous built-in storage.
Attention to detail is evident throughout, from solid oak doors and tiled floors, to the heritage profile sash style double-glazed windows. The home offers comfort, style, and practicality in equal measure. Externally, the property’s layout supports both domestic and equestrian functionality. The courtyard offers plenty of parking space and access to the stable yard, carport, garage/workshop and the house.
Gardens & Grounds - Set within approx. 5.25 acres, the grounds are perfectly arranged for both family enjoyment and equestrian use. Landscaped gardens offer sweeping lawns and stone terraces with far-reaching views, ideal for entertaining or quiet reflection.
The equestrian facilities are a true highlight, featuring an Olympic-sized manège with professional surface, a traditional stable block, double-height barn, tack room, two field shelters, and secure tool stores. Multiple paddocks are enclosed with high-quality fencing and benefit from multiple water tap points. The grounds are accessed via a private, gated entrance with ample turning space and courtyard parking. The layout ensures ease of access between home, stable yard, paddocks, workshop currently equipped for classic car maintenance and carport and garaging for three cars, creating a property designed for practical country living without compromise.
Directions -
W3w - ///flags.item.envoy
Situation - Tynygroes is positioned on the edge of the rural hamlet of Rhiwlas, enjoying far-reaching views over unspoilt countryside towards the Gyrn
mountain. The nearby village of Llansilin offers local amenities and a strong community feel, while Oswestry, just 6 miles away, provides a wide range of shops, schools and services. The surrounding landscape is ideal for equestrian pursuits, walking and rural living, with peaceful lanes and bridleways in every direction
Schooling - A range of public and private schools are nearby, including, Oswestry School, Moreton Hall, Ellesmere College, and The Marches Academy, all within easy reach.
Services - We understand that the property has the benefit of mains electricity, private borehole water supply (with filtration system), private drainage, oil-fired central heating, air source heat pump, and income-generating solar panels.
Tenure - We understand that the property is of freehold tenure and vacant possession will be given on completion of the purchase.
Local Authority - Powys County Council, Powys County Hall, Llandrindod Wells, Powys, LD1 5LG
Tel:
Council Tax - Council tax band - H.
Viewings - Viewings by appointment only via the agent Halls Oswestry.
Anti-Money Laundering (Aml) Checks - We are legally obligated to undertake anti-money laundering checks on all property purchasers. Whilst we are responsible for ensuring that these checks, and any ongoing monitoring, are conducted properly; the initial checks will be handled on our behalf by a specialist company, Movebutler, who will reach out to you once your offer has been accepted. The charge for these checks is £30 (including VAT) per purchaser, which covers the necessary data collection and any manual checks or monitoring that may be required. This cost must be paid in advance, directly to Movebutler, before a memorandum of sale can be issued, and is non-refundable. We thank you for your cooperation.
Brochures
Tynygroes Online.pdf- COUNCIL TAXA payment made to your local authority in order to pay for local services like schools, libraries, and refuse collection. The amount you pay depends on the value of the property.Read more about council Tax in our glossary page.
- Band: H
- PARKINGDetails of how and where vehicles can be parked, and any associated costs.Read more about parking in our glossary page.
- Yes
- GARDENA property has access to an outdoor space, which could be private or shared.
- Yes
- ACCESSIBILITYHow a property has been adapted to meet the needs of vulnerable or disabled individuals.Read more about accessibility in our glossary page.
- Ask agent
Rhiwlas, Oswestry.
Add an important place to see how long it'd take to get there from our property listings.
__mins driving to your place
Get an instant, personalised result:
- Show sellers you’re serious
- Secure viewings faster with agents
- No impact on your credit score
Your mortgage
Notes
Staying secure when looking for property
Ensure you're up to date with our latest advice on how to avoid fraud or scams when looking for property online.
Visit our security centre to find out moreDisclaimer - Property reference 34140088. The information displayed about this property comprises a property advertisement. Rightmove.co.uk makes no warranty as to the accuracy or completeness of the advertisement or any linked or associated information, and Rightmove has no control over the content. This property advertisement does not constitute property particulars. The information is provided and maintained by Halls Estate Agents, Oswestry. Please contact the selling agent or developer directly to obtain any information which may be available under the terms of The Energy Performance of Buildings (Certificates and Inspections) (England and Wales) Regulations 2007 or the Home Report if in relation to a residential property in Scotland.
*This is the average speed from the provider with the fastest broadband package available at this postcode. The average speed displayed is based on the download speeds of at least 50% of customers at peak time (8pm to 10pm). Fibre/cable services at the postcode are subject to availability and may differ between properties within a postcode. Speeds can be affected by a range of technical and environmental factors. The speed at the property may be lower than that listed above. You can check the estimated speed and confirm availability to a property prior to purchasing on the broadband provider's website. Providers may increase charges. The information is provided and maintained by Decision Technologies Limited. **This is indicative only and based on a 2-person household with multiple devices and simultaneous usage. Broadband performance is affected by multiple factors including number of occupants and devices, simultaneous usage, router range etc. For more information speak to your broadband provider.
Map data ©OpenStreetMap contributors.









