
4 bedroom detached house for sale
Hogg End, Chipping Warden, Banbury, Northamptonshire, OX17

- PROPERTY TYPE
Detached
- BEDROOMS
4
- BATHROOMS
3
- SIZE
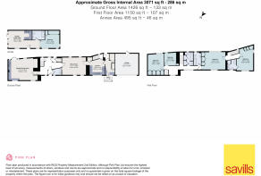
3,071 sq ft
285 sq m
- TENUREDescribes how you own a property. There are different types of tenure - freehold, leasehold, and commonhold.Read more about tenure in our glossary page.
Freehold
Key features
- Detached family home with potential
- Generous and versatile accommodation
- Charming period features
- Garden and terrace
- Outdoor swimming pool
- Separate one bedroom annexe
- Garage
- EPC Rating = D
Description
Description
Hogg End House is a lovely house situated in a quiet and pretty village lane in the heart of this conservation village.
The property is built of Hornton stone under a tiled roof and offers spacious family living.
Various period features include open fireplaces and wood block flooring.
To the rear is an extensive partly walled garden predominately laid to lawn planted up with numerous mature trees including maple, silver birch, walnut, lime and various fruit trees. The garden offers a high degree of privacy with established flower and shrub borders. Pergola with climbing roses. Paved terrace ideal for entertaining.
Outdoor heated swimming pool. Timber garden store/pool house. Vehicular access to the side.
Separate annexe of Hornton stone construction under a slate roof with covered walkway to the house. The annexe would be ideal for family, dependent relatives or working from home.
Whilst the property is in need of comprehensive modernisation, it offers the incoming purchaser the opportunity to create their own perfect home, style and level of finishes. Stone path leads to a rear gate which accesses back to Hogg End.
Location
Chipping Warden is a rural village situated north-east of Banbury on the border of North Oxfordshire and South Northamptonshire. The village comprises a cross section of modern and traditional period stone built houses and cottages situated in the village centre. The village has a local primary school and a public house. Village shops can be found approximately 3 miles away. Catholic Church and Catholic primary school can be found locally at Aston le Walls.
Independent schools in the area include prep:- Winchester House, (Brackley), Beachborough, (Westbury); Public schools are Bloxham and Tudor Hall, (Bloxham), Stowe and Rugby.
Transport connections include Junction 11 of the M40 Motorway about 6 miles to the south and Junction 16 of the M1 motorway approximately 13 miles to the North. Mainline train services from Banbury to London (Marylebone from 58 minutes) and to the North. Birmingham Airport is about 35 miles away.
Sporting activities in the area include an indoor sports and swimming pool complex in Banbury; golf at Cherwell Edge (Chacombe), Hellidon and Tadmarton Heath; horse-racing at Stratford upon Avon and Warwick; motor-racing at Silverstone.
All distances and times are approximate.
Square Footage: 3,071 sq ft
Additional Info
Mains water, gas and electricity are connected to the property.
Council Tax Bands: House - F, Annexe - A
Agents Note: There is a covenant that restricts the use to no more than two private dwellings for the occupation of one family.
Brochures
Web DetailsParticulars- COUNCIL TAXA payment made to your local authority in order to pay for local services like schools, libraries, and refuse collection. The amount you pay depends on the value of the property.Read more about council Tax in our glossary page.
- Band: F
- PARKINGDetails of how and where vehicles can be parked, and any associated costs.Read more about parking in our glossary page.
- Yes
- GARDENA property has access to an outdoor space, which could be private or shared.
- Yes
- ACCESSIBILITYHow a property has been adapted to meet the needs of vulnerable or disabled individuals.Read more about accessibility in our glossary page.
- Ask agent
Hogg End, Chipping Warden, Banbury, Northamptonshire, OX17
Add an important place to see how long it'd take to get there from our property listings.
__mins driving to your place
Get an instant, personalised result:
- Show sellers you’re serious
- Secure viewings faster with agents
- No impact on your credit score
Your mortgage
Notes
Staying secure when looking for property
Ensure you're up to date with our latest advice on how to avoid fraud or scams when looking for property online.
Visit our security centre to find out moreDisclaimer - Property reference CLV749128. The information displayed about this property comprises a property advertisement. Rightmove.co.uk makes no warranty as to the accuracy or completeness of the advertisement or any linked or associated information, and Rightmove has no control over the content. This property advertisement does not constitute property particulars. The information is provided and maintained by Savills, Banbury. Please contact the selling agent or developer directly to obtain any information which may be available under the terms of The Energy Performance of Buildings (Certificates and Inspections) (England and Wales) Regulations 2007 or the Home Report if in relation to a residential property in Scotland.
*This is the average speed from the provider with the fastest broadband package available at this postcode. The average speed displayed is based on the download speeds of at least 50% of customers at peak time (8pm to 10pm). Fibre/cable services at the postcode are subject to availability and may differ between properties within a postcode. Speeds can be affected by a range of technical and environmental factors. The speed at the property may be lower than that listed above. You can check the estimated speed and confirm availability to a property prior to purchasing on the broadband provider's website. Providers may increase charges. The information is provided and maintained by Decision Technologies Limited. **This is indicative only and based on a 2-person household with multiple devices and simultaneous usage. Broadband performance is affected by multiple factors including number of occupants and devices, simultaneous usage, router range etc. For more information speak to your broadband provider.
Map data ©OpenStreetMap contributors.





