
Orford, Suffolk
- PROPERTY TYPE
Plot
- SIZE
Ask agent
Description
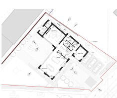
A building plot situated centrally within the riverside village that has planning permission for a 2,700 sq. ft contemporary house with south-west facing gardens and three parking spaces. The house will offer a reception hall, living/dining room/kitchen, utility room, larder, sitting room, home office, WC and shower room. On the first floor there will be four bedrooms, two with en-suites and a bathroom.
Location
The Seaforth House plot is situated in the heart of this highly sought after riverside village, just a short walk from the pubs, village shop, renowned Pump Street bakery and quay. Orford is considered one of East Suffolk’s most desirable destinations. It is well known for its 12th century castle and in addition, St Bartholomew’s Church. There is sailing on the River Ore. Within easy driving distant is Snape (6 miles), Aldeburgh (10 miles), Woodbridge (12 miles) and Wickham Market (10 miles). The county town of Ipswich lies 18 miles to the east. East coast trains from Wickham Market (Campsea Ashe), Melton, or Woodbridge connect to Ipswich and onto London’s Liverpool Street Station.
Directions
Proceeding into the village of Orford, pass the school on the right hand side. The plot will be found a short way along on the left hand side adjacent to Ferry Road.
What3Words app: ///gazes.choice.advice
Description
Planning permission was granted for the demolition of a dwelling and the replacement house by East Suffolk Council under reference DC/22/3527/FUL on the 25th of April 2023. This is now a bare site and the sellers are in the process of fulfilling the necessary conditions so that East Suffolk Council deem the development lawfully commenced. Some of the plans associated with the permission are included within these particulars.
The site offers an exciting opportunity to create a contemporary home of 250 sqm (2,700 sq. ft). The design offers red brick elevations and extensive glazing to allow plenty of light to flood into the accommodation. The property will provide a high degree of insulation and can be built with sustainability at its core. The accommodation will consist an entrance hall with stairs to the first floor, study (or ground floor bedroom), cloakroom, shower room, along with a fabulous open plan living room/dining room/kitchen with glazing on three sides and large sliding doors to the terrace. In addition will be a separate sitting room with roof lights and sliding doors to the terrace. On the first floor will be a principal bedroom with en-suite, along with three further bedrooms, one with an en-suite and family bathroom.
Outside
A new access driveway will lead to three parking spaces. The house is designed with a west facing terrace and garden to three sides.
Services
It is understood that there is water to the site and electricity on a pole immediately adjacent to the site. Mains sewage is also in the immediate vicinity. Interested parties will wish to carry out their own investigations with regard to services.
Viewing
At any reasonable hour from the edge of the site having informed Clarke and Simpson of your intention to view.
NOTES
1. Every care has been taken with the preparation of these particulars, but complete accuracy cannot be guaranteed. If there is any point, which is of particular importance to you, please obtain professional confirmation. Alternatively, we will be pleased to check the information for you. These Particulars do not constitute a contract or part of a contract. All measurements quoted are approximate. The Fixtures, Fittings & Appliances have not been tested and therefore no guarantee can be given that they are in working order. Photographs are reproduced for general information and it cannot be inferred that any item shown is included. No guarantee can be given that any planning permission or listed building consent or building regulations have been applied for or approved. The agents have not been made aware of any covenants or restrictions that may impact the property, unless stated otherwise. Any site plans used in the particulars are indicative only and buyers should rely on the Land Registry/transfer plan.
2. The Money Laundering, Terrorist Financing and Transfer of Funds (Information on the Payer) Regulations 2017 require all Estate Agents to obtain sellers’ and buyers’ identity.
3. As well as plans of the site, the particulars include CGI images which are for representation purposes only. September 2025
Brochures
Brochure 1Orford, Suffolk
NEAREST STATIONS
Distances are straight line measurements from the centre of the postcode- Wickham Market Station6.8 miles
Notes
Disclaimer - Property reference S1432558. The information displayed about this property comprises a property advertisement. Rightmove.co.uk makes no warranty as to the accuracy or completeness of the advertisement or any linked or associated information, and Rightmove has no control over the content. This property advertisement does not constitute property particulars. The information is provided and maintained by Clarke and Simpson, Framlingham. Please contact the selling agent or developer directly to obtain any information which may be available under the terms of The Energy Performance of Buildings (Certificates and Inspections) (England and Wales) Regulations 2007 or the Home Report if in relation to a residential property in Scotland.
Map data ©OpenStreetMap contributors.










