Montague Road, Rugby

- PROPERTY TYPE
Semi-Detached
- BEDROOMS
2
- BATHROOMS
1
- SIZE
Ask agent
- TENUREDescribes how you own a property. There are different types of tenure - freehold, leasehold, and commonhold.Read more about tenure in our glossary page.
Freehold
Key features
- Modern And Contemporary Semi-Detached Property
- Two Bedrooms
- Ground & First Floor WC and Washing Facilities.
- Principal Bedroom Suite
- Lounge
- Kitchen With 'Everhot 60' Range Cooker
- Parking To Front
- Garage/Workshop
- Well Stocked Rear Garden
- Must Be Viewed
Description
Frontage - Block paved parking for several vehicles.
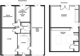
Kitchen - 4.54 x 2.33 (14'10" x 7'7") - Enter via double glazed composite door. Bespoke wooden kitchen with granite worktops. Fitted 'Everhot 60' range cooker. Fitted dishwasher. Space for Fridge/Freezer. Window to side. Door to Garage.
Lounge - 5.76 x 3.10 (18'10" x 10'2") - Full length window to front. Modern wall mounted, electric fire. Wooden flooring.
Inner Lobby - Wooden flooring. Doors to:
Bedroom/Dining Room - 4.75 x 2.72 (15'7" x 8'11") - Wooden flooring. French doors leading to outside rear garden and patio area.
Bathroom - 1.63 x 1.93 (5'4" x 6'3") - Opaque window to side. P-shaped, shower style bath with mains shower fitted over. WC and washbasin.
Access To Principal Bedroom Suite - 2.63 x 3.51 (8'7" x 11'6") - This room could be used as another reception room. It has wooden flooring, stairs to first floor and French doors leading to outside rear garden and patio area.
Principal Bedroom Suite - 5.40 x 4.93 (17'8" x 16'2") - This beautiful first floor space was designed and created by the current owners in 2019. It has a 'Juliet Balcony' with remote control blinds over looking the rear garden, a further window to the side and access to a WC and washbasin.
Walk-In Wardrobe/Dressing Area - sloped ceilings 3.60 x 4.25 = floor space (sloped - (This room could be converted into a third bedroom) Two 'Velux' windows. Dressing and storage area.
Rear Garden - Landscaped rear garden with slate patio area, lawned area and well stocked shrub borders.
Garage/Utility Area - 10.11 x 2.35 (33'2" x 7'8") - Roller door for vehicular access. Belfast sink with mains tap. Plumbing and space for washing machine and tumble dryer. French doors open up at the rear into the rear garden.
Market Appraisal - If you are considering selling your property, we would be delighted to give you a free no obligation market appraisal. Our experience, knowledge and marketing with local and internet advertising will get your property seen and stand out from the crowd. Please contact us to arrange your property appraisal.
Mortgage Services - Crowhurst Gale can offer Panda Mortgage Services for professional mortgage advice and will help to find the right product that will suit your budget and needs from virtually the whole of the mortgage market.
Conveyancing Services - Our solicitors work on a no sale, no fee basis. They work longer hours than the conventional solicitor and are available weekends. Please contact us for more information on our conveyancing services.
Tax Band - Tax Band: C
Tenure - Freehold
Local Authority - Rugby Borough Council
Viewing - By appointment only through Crowhurst Gale Estate Agents
Brochures
Montague Road, RugbyBrochure- COUNCIL TAXA payment made to your local authority in order to pay for local services like schools, libraries, and refuse collection. The amount you pay depends on the value of the property.Read more about council Tax in our glossary page.
- Band: C
- PARKINGDetails of how and where vehicles can be parked, and any associated costs.Read more about parking in our glossary page.
- Garage
- GARDENA property has access to an outdoor space, which could be private or shared.
- Yes
- ACCESSIBILITYHow a property has been adapted to meet the needs of vulnerable or disabled individuals.Read more about accessibility in our glossary page.
- Ask agent
Montague Road, Rugby
Add an important place to see how long it'd take to get there from our property listings.
__mins driving to your place
Get an instant, personalised result:
- Show sellers you’re serious
- Secure viewings faster with agents
- No impact on your credit score



Your mortgage
Notes
Staying secure when looking for property
Ensure you're up to date with our latest advice on how to avoid fraud or scams when looking for property online.
Visit our security centre to find out moreDisclaimer - Property reference 34144600. The information displayed about this property comprises a property advertisement. Rightmove.co.uk makes no warranty as to the accuracy or completeness of the advertisement or any linked or associated information, and Rightmove has no control over the content. This property advertisement does not constitute property particulars. The information is provided and maintained by Crowhurst Gale Estate Agents, Rugby. Please contact the selling agent or developer directly to obtain any information which may be available under the terms of The Energy Performance of Buildings (Certificates and Inspections) (England and Wales) Regulations 2007 or the Home Report if in relation to a residential property in Scotland.
*This is the average speed from the provider with the fastest broadband package available at this postcode. The average speed displayed is based on the download speeds of at least 50% of customers at peak time (8pm to 10pm). Fibre/cable services at the postcode are subject to availability and may differ between properties within a postcode. Speeds can be affected by a range of technical and environmental factors. The speed at the property may be lower than that listed above. You can check the estimated speed and confirm availability to a property prior to purchasing on the broadband provider's website. Providers may increase charges. The information is provided and maintained by Decision Technologies Limited. **This is indicative only and based on a 2-person household with multiple devices and simultaneous usage. Broadband performance is affected by multiple factors including number of occupants and devices, simultaneous usage, router range etc. For more information speak to your broadband provider.
Map data ©OpenStreetMap contributors.




