Wolseley Road, PLYMOUTH
- PROPERTY TYPE
Land
- SIZE
Ask agent
Key features
- PLANNING SUBMITTED FOR A FOUR BEDROOM DETACHED HOME
- SELF BUILD OPPORTUNITY
- GREAT LOCATION CLOSE TO THE RIVER TAMAR
- GOOD SIZE PLOT
- CLOSE TO LOCAL AMENITIES
Description
SUMMARY
**LAND FOR SALE**
Located close to the River Tamar in Plymouth and in close proximity of amenities and transport links to the inner/outer city and Cornwall
Four bedroom self build plot of land opportunity not to be missed!
**£170,000**
DESCRIPTION
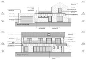
This is an excellent opportunity to acquire a building plot located on the edge of St Budeaux close to the River Tamar. The plot comes with the added advantage of a live planning application for a four bedroom detached home, circa 2000 Sq Ft, complete with balcony, gardens and parking. Enjoying stunning panoramic views of the surrounding area and stretching towards the River, this plot offers an ideal setting for those looking to create their dream home.
Planning Details: The planning reference can be explored via the local council's planning portal. Interested parties are encouraged to review the full application documents and strain any relevant conditions. Reference Number - (25/00560/CDM)
1. MONEY LAUNDERING REGULATIONS: Intending purchasers will be asked to produce identification documentation at a later stage and we would ask for your co-operation in order that there will be no delay in agreeing the sale.
2. General: While we endeavour to make our sales particulars fair, accurate and reliable, they are only a general guide to the property and, accordingly, if there is any point which is of particular importance to you, please contact the office and we will be pleased to check the position for you, especially if you are contemplating travelling some distance to view the property.
3. The measurements indicated are supplied for guidance only and as such must be considered incorrect.
4. Services: Please note we have not tested the services or any of the equipment or appliances in this property, accordingly we strongly advise prospective buyers to commission their own survey or service reports before finalising their offer to purchase.
5. THESE PARTICULARS ARE ISSUED IN GOOD FAITH BUT DO NOT CONSTITUTE REPRESENTATIONS OF FACT OR FORM PART OF ANY OFFER OR CONTRACT. THE MATTERS REFERRED TO IN THESE PARTICULARS SHOULD BE INDEPENDENTLY VERIFIED BY PROSPECTIVE BUYERS OR TENANTS. NEITHER SEQUENCE (UK) LIMITED NOR ANY OF ITS EMPLOYEES OR AGENTS HAS ANY AUTHORITY TO MAKE OR GIVE ANY REPRESENTATION OR WARRANTY WHATEVER IN RELATION TO THIS PROPERTY.
Brochures
Full DetailsWolseley Road, PLYMOUTH
NEAREST STATIONS
Distances are straight line measurements from the centre of the postcode- Saltash Station0.5 miles
- St. Budeaux Victoria Road Station0.5 miles
- St. Budeaux Ferry Road Station0.6 miles
Notes
Disclaimer - Property reference SBX106730. The information displayed about this property comprises a property advertisement. Rightmove.co.uk makes no warranty as to the accuracy or completeness of the advertisement or any linked or associated information, and Rightmove has no control over the content. This property advertisement does not constitute property particulars. The information is provided and maintained by Fox & Sons, St. Budeaux. Please contact the selling agent or developer directly to obtain any information which may be available under the terms of The Energy Performance of Buildings (Certificates and Inspections) (England and Wales) Regulations 2007 or the Home Report if in relation to a residential property in Scotland.
Map data ©OpenStreetMap contributors.









