
Barkers Lane, Wythall

- PROPERTY TYPE
Detached
- BEDROOMS
4
- BATHROOMS
3
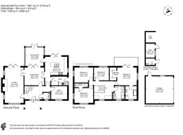
- SIZE
2,143 sq ft
199 sq m
- TENUREDescribes how you own a property. There are different types of tenure - freehold, leasehold, and commonhold.Read more about tenure in our glossary page.
Freehold
Key features
- Over 1.7 acre plot with good sized front & rear gardens
- Spacious, detached four bedroom home
- Three reception rooms
- Fitted kitchen with Rangemaster cooker
- Three bathrooms plus a guest cloakroom
- Patio plus decking area with additional outside WC and store
- Separate utility room
- Double garage and gated driveway
- Additional 2.7 acre paddock available by separate negotiation
- Excellently located for local schools, amenities and travel links
Description
Approached via a long private driveway and set securely behind gates, this impressive family home offers generous living space, versatile accommodation, and a wonderful sense of privacy within 1.7 acres of beautifully maintained grounds.
Currently comprising a large hallway, 3 reception rooms, a fitted kitchen family area, separate utility, four bedrooms and 3 bathrooms as well as a guest cloakroom, patio, decking and outdoor WC.
The property also benefits from a lengthy rear garden, off road parking for multiple cars and a double garage, all set behind electric gates.
A spacious, 4 bedroom modern property set within almost 2 acres of grounds.
Approached via a long private driveway and set securely behind gates, this impressive family home offers generous living space, versatile accommodation, and a wonderful sense of privacy within 1.7 acres of beautifully maintained grounds.
Currently comprising a large hallway, 3 reception rooms, a fitted kitchen family area, separate utility, four bedrooms and 3 bathrooms as well as a guest cloakroom, patio, decking and outdoor WC.
The property also benefits from a lengthy rear garden, off road parking for multiple cars and a double garage, all set behind electric gates.
The ground floor provides excellent living and entertaining space. A spacious lounge with log burning fireplace flows into a separate dining room, while a conservatory and dedicated home office or playroom add further flexibility.
The kitchen, with double doors opening directly to the garden is complemented by a practical utility room. The kitchen also benefits from integrated fridge/freezer, dishwasher and freestanding gas/electric Rangemaster.
There is underfloor heating to all rooms on the ground floor.
Stairs lead from the hallway to the first floor and onto a gallery-style landing.
The principle bedroom suite is a true retreat, featuring its own dressing area with fitted wardrobes, a luxurious en-suite and a private balcony overlooking the mature, secluded woodland garden.
Bedroom 2 also benefits from an en-suite, while bedrooms three and four are served by a well-appointed family bathroom with bath and walk-in shower.
Externally the property continues to impress with a large detached double garage with electric door to the front of the property. The extensive grounds surrounding this home offer both open lawns and established woodland, providing a tranquil setting and plenty of space for outdoor enjoyment.
There is a large patio area directly off the family area and kitchen, leading to an impressive decking with water feature. An outbuilding lends itself as a useful store, plus outside WC, log store and natural clay pond beyond.
Adjacent additional 2.7 acre paddock available by separate negotiation.
This exceptional property combines rural seclusion with generous accommodation, making it a perfect choice for family living.
Location - Wythall is a sought after semi-rural village, offering an excellent balance of countryside living and city accessibility. Situated just south of Birmingham and close to Solihull, the area is ideal for families, professionals and commuters alike.
Wythall benefits from outstanding transport links. The M42 motorway and A435 provide easy access to Birmingham, Solihull, Stratford upon Avon and the wider Midlands. Wythall and Whitlocks End railway stations offer regular services into Birmingham Moor Street and Snow Hill, while Birmingham Airport is only a short drive away.
The village offers a range of everyday amenities including local shops, services and eateries. Families are particularly well catered for with a number of highly regarded primary and secondary schools in the area.
Wythall Park provides sports pitches, children’s play areas and community events while the surrounding countryside is perfect for walking and outdoor pursuits.
Local attractions include golf courses, sports clubs and the popular Wythall Transport Museum.
General Information - Tenure: Freehold
Services: LPG Gas | Mains water and drainage | Mains Electric | Public footpath along side of land
Local Authority: Bromsgrove District Council | Council Tax Band F
EPC: Rating D
Postcode: B47 6BS
Agents Note - We have not tested any of the electrical, central heating or sanitaryware appliances. Purchasers should make their own investigations as to the workings of the relevant items. Floor plans are for identification purposes only and not to scale. All room measurements and mileages quoted in these sales details are approximate. Subjective comments in these details imply the opinion of the selling agent at the time these details were prepared. Naturally, the opinions of purchasers may differ. These sales details are produced in good faith to offer a guide only and do not constitute any part of a contract or offer. We would advise that fixtures and fittings included within the sale are confirmed by the purchaser at the point of offer. Images used within these details are under copyright to EB&P and under no circumstances are to be reproduced by a third party without prior permission.
Anti Money Laundering (Aml) - We will appreciate your co-operation in fulfilling our requirements to comply with anti-money laundering regulations. As well as traditional methods of producing photographic ID and proof of address, EB&P as the Agent may also use an electronic verification system to meet compliance obligations for AML. This system allows us to verify you from basic details. You understand that we will undertake this search for the purpose of verifying your identity. Any personal data we receive from you for the purpose of money laundering checks will be processed only for the purposes of preventing money laundering. There will be a nominal charge to each buyer for EB&P to conduct the AML checks.
Brochures
Greenways Barkers Lane Wythall-2-96999-3.pdfProperty link- COUNCIL TAXA payment made to your local authority in order to pay for local services like schools, libraries, and refuse collection. The amount you pay depends on the value of the property.Read more about council Tax in our glossary page.
- Band: F
- PARKINGDetails of how and where vehicles can be parked, and any associated costs.Read more about parking in our glossary page.
- Garage
- GARDENA property has access to an outdoor space, which could be private or shared.
- Yes
- ACCESSIBILITYHow a property has been adapted to meet the needs of vulnerable or disabled individuals.Read more about accessibility in our glossary page.
- Ask agent
Barkers Lane, Wythall
Add an important place to see how long it'd take to get there from our property listings.
__mins driving to your place
Get an instant, personalised result:
- Show sellers you’re serious
- Secure viewings faster with agents
- No impact on your credit score
Your mortgage
Notes
Staying secure when looking for property
Ensure you're up to date with our latest advice on how to avoid fraud or scams when looking for property online.
Visit our security centre to find out moreDisclaimer - Property reference 34145403. The information displayed about this property comprises a property advertisement. Rightmove.co.uk makes no warranty as to the accuracy or completeness of the advertisement or any linked or associated information, and Rightmove has no control over the content. This property advertisement does not constitute property particulars. The information is provided and maintained by EB&P, Knowle. Please contact the selling agent or developer directly to obtain any information which may be available under the terms of The Energy Performance of Buildings (Certificates and Inspections) (England and Wales) Regulations 2007 or the Home Report if in relation to a residential property in Scotland.
*This is the average speed from the provider with the fastest broadband package available at this postcode. The average speed displayed is based on the download speeds of at least 50% of customers at peak time (8pm to 10pm). Fibre/cable services at the postcode are subject to availability and may differ between properties within a postcode. Speeds can be affected by a range of technical and environmental factors. The speed at the property may be lower than that listed above. You can check the estimated speed and confirm availability to a property prior to purchasing on the broadband provider's website. Providers may increase charges. The information is provided and maintained by Decision Technologies Limited. **This is indicative only and based on a 2-person household with multiple devices and simultaneous usage. Broadband performance is affected by multiple factors including number of occupants and devices, simultaneous usage, router range etc. For more information speak to your broadband provider.
Map data ©OpenStreetMap contributors.






