
4 bedroom detached house for sale
Folly Hill, Thornton Road, North Owersby, Market Rasen

- PROPERTY TYPE
Detached
- BEDROOMS
4
- BATHROOMS
3
- SIZE
Ask agent
- TENUREDescribes how you own a property. There are different types of tenure - freehold, leasehold, and commonhold.Read more about tenure in our glossary page.
Freehold
Key features
- Stunning Detached House
- Rural Village Location
- High Specification Finish
- 4 Bedrooms, 3 Bathrooms
- Open Plan Living
- Balcony to Enjoy Countryside Views
- Landscaped Gardens
- Garage & Driveway
- Choice of Premium Kitchens, Bathrooms & Flooring
- Structural Warranty Included
Description
Brand New Detached House - Tailored to Your Lifestyle. Secure Your Dream Home - Personalise the Layout, Fixtures & Finishes! Welcome to an exciting opportunity to purchase a stunning and unique new build home.
A stunning modern future build, designed with reverse living to maximise light, views, and space. On the first floor, a spectacular open-plan living area combines a sleek, fully fitted kitchen with premium appliances, a generous dining area, an entertainment space and a stylish lounge. A gallery feature adds architectural interest, while doors open onto a private balcony—perfect for entertaining or relaxing in the sun. The ground floor offers four well-proportioned bedrooms, including a luxurious master suite with a walk-in dressing room and a contemporary en-suite. Bedroom 2 also benefits from its own en-suite, while Bedroom 3 is served by a high-quality family bathroom. A versatile office/bedroom 4, utility room, and integral garage add practicality to the home’s stylish design. Every detail reflects quality, from the modern fixtures and premium finishes to the energy-efficient construction and thoughtful layout. Outside, landscaped gardens provide an inviting space to enjoy year-round.
EPC rating: A. Tenure: Freehold,To Summarise
Open Plan Living,
Fitted Kitchen,
Gallery, Dining, entertainment and lounge areas,
Balcony,
Dressing Room and ensuite to master bedroom,
3-further bedrooms (one with ensuite),
Family bathroom,
Utility room,
Integeral garage
Location
North Owersby, Market Rasen a rural farming village in the civil parish of Owersby on the edge of the breath- taking Lincolnshire Wolds, an area of outstanding natural beauty. The property is adjacent to the Kingerby Beck Meadows Nature Reserve, offering a serene and scenic environment perfect for nature enthusiasts and those seeking tranquility. Local shopping facilities are available nearby, with a post office and general store situated in Osgodby, just a five minute drive away. For larger shopping needs, a range of supermarkets and retail outlets can be found in Market Rasen, approximately four miles away, as well as in Caistor. Medical provision is also well served, with doctors’ surgeries and dental practices close at hand, alongside major NHS hospitals and medical centres within easy reach.
Connectivity
The village boasts excellent connectivity with convenient road links via the A46, A16, and A18, providing easy access to major motorways including the M180, A1(M), and M1. Larger cities such as Lincoln, Hull, Sheffield, Leeds and Manchester are all within easy reach. For international travel, Humberside Airport, East Midlands Airport, and Leeds Bradford Airport are a short drive away. Additionally, direct train services to London are available from Lincoln.
Education
The property is located within the catchment area for the prestigious Caistor Grammar School, Osgodby
Primary School and the Caistor Yarborough Academy ensuring top-quality education opportunities for families. Further and higher education needs are served by Lincoln College of Further Education and Lincoln University, whilst the Russell Group Universitas of Sheffield, Leeds and Manchester are within easy commuting distance.
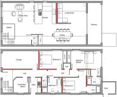
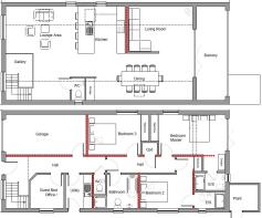
Ground Floor
Entrance Hall, Bedroom 1, Ensuite 1, Bedroom 2, Ensuite 2, Bedroom 3, Bedroom 4 / Office, Bathroom, WC / Cloakroom, Utility Room
First Floor
Open Plan Lounge, Kitchen Dining Room, Living Room
Outside
Gardens, Garage & Driveway
Agents Notes
These particulars are for guidance only. Lovelle Estate Agency, their clients and any joint agents give notice that:- They have no authority to give or make representation/warranties regarding the property, or comment on the SERVICES, TENURE and RIGHT OF WAY of any property.
These particulars do not form part of any contract and must not be relied upon as statements or representation of fact. All measurements/areas are approximate. The particulars including photographs and plans are for guidance only and are not necessarily comprehensive.
Next Steps
Successful buyers will be required to complete anti-money laundering checks. Our partner, Hipla, will carry out the initial checks on our behalf. The current non-refundable cost is £24 inc. VAT per person. You’ll need to pay this and complete all checks before we can issue a memorandum of sale. The cost includes obtaining relevant data and any manual checks and monitoring that might be required.
Brochures
Brochure- COUNCIL TAXA payment made to your local authority in order to pay for local services like schools, libraries, and refuse collection. The amount you pay depends on the value of the property.Read more about council Tax in our glossary page.
- Ask agent
- PARKINGDetails of how and where vehicles can be parked, and any associated costs.Read more about parking in our glossary page.
- Garage
- GARDENA property has access to an outdoor space, which could be private or shared.
- Private garden
- ACCESSIBILITYHow a property has been adapted to meet the needs of vulnerable or disabled individuals.Read more about accessibility in our glossary page.
- Ask agent
Energy performance certificate - ask agent
Folly Hill, Thornton Road, North Owersby, Market Rasen
Add an important place to see how long it'd take to get there from our property listings.
__mins driving to your place
Get an instant, personalised result:
- Show sellers you’re serious
- Secure viewings faster with agents
- No impact on your credit score
Your mortgage
Notes
Staying secure when looking for property
Ensure you're up to date with our latest advice on how to avoid fraud or scams when looking for property online.
Visit our security centre to find out moreDisclaimer - Property reference P2576. The information displayed about this property comprises a property advertisement. Rightmove.co.uk makes no warranty as to the accuracy or completeness of the advertisement or any linked or associated information, and Rightmove has no control over the content. This property advertisement does not constitute property particulars. The information is provided and maintained by Lovelle Estate Agency, Market Rasen. Please contact the selling agent or developer directly to obtain any information which may be available under the terms of The Energy Performance of Buildings (Certificates and Inspections) (England and Wales) Regulations 2007 or the Home Report if in relation to a residential property in Scotland.
*This is the average speed from the provider with the fastest broadband package available at this postcode. The average speed displayed is based on the download speeds of at least 50% of customers at peak time (8pm to 10pm). Fibre/cable services at the postcode are subject to availability and may differ between properties within a postcode. Speeds can be affected by a range of technical and environmental factors. The speed at the property may be lower than that listed above. You can check the estimated speed and confirm availability to a property prior to purchasing on the broadband provider's website. Providers may increase charges. The information is provided and maintained by Decision Technologies Limited. **This is indicative only and based on a 2-person household with multiple devices and simultaneous usage. Broadband performance is affected by multiple factors including number of occupants and devices, simultaneous usage, router range etc. For more information speak to your broadband provider.
Map data ©OpenStreetMap contributors.





