Leaholme Terrace, Blackhall Colliery, Hartlepool, Durham, TS27 4AB

Letting details
- Let available date:
- Ask agent
- Deposit:
- £725A deposit provides security for a landlord against damage, or unpaid rent by a tenant.Read more about deposit in our glossary page.
- Min. Tenancy:
- Ask agent How long the landlord offers to let the property for.Read more about tenancy length in our glossary page.
- Furnish type:
- Furnished
- Council Tax:
- Ask agent
- PROPERTY TYPE
Terraced
- BEDROOMS
3
- BATHROOMS
1
- SIZE
Ask agent
Key features
- 3-Bedroom Mid-Terraced Home
- Prime Location
- Two reception rooms
- Ready to rent
- Managed by Pattinsons
- Cosy well maintained home
- Costal Location
Description
This charming three-bedroom mid-terraced property is now available to rent in a highly desirable location, just a short walk from the beach at Blackhall Rocks and ideally positioned for commuters.
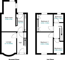
Brimming with character and generous living space, the home features a welcoming entrance hallway, two well-proportioned reception rooms including an extended dining area, and a fitted kitchen. Upstairs offers two spacious double bedrooms, a comfortable single bedroom, and a family bathroom with a white suite.
Externally, the property boasts an enclosed garden to the front and a low-maintenance courtyard to the rear, ideal for relaxing or entertaining. Additional benefits include gas central heating and double glazing, making it a perfect choice for families or professionals seeking a well-situated home.
Tenant Referencing Criteria:
Pattinson will undertake referencing checks on all applicants over the age of 18 wishing to move into a rental property. As part of this process, we will undertake:
• A credit check to ensure each applicant does not have any adverse credit such as CCJs (County Court Judgements).
• An affordability assessment to ensure applicant’s income will sufficiently cover the rental payments.
• To pass the affordability check, each applicant’s gross annual basic income (including benefits and pensions) must be at least 30 times the monthly rental amount (36 times for Ellinson properties). EG If the rent is £500 PCM, applicants would need to earn £15,000 as an annual pension or basic salary (excluding commission/bonus) before tax or other deductions were made.
• Each applicant’s affordability is assessed individually against the criteria. However, couples who have previously co-habited, are married or are in a civil partnership will have their incomes combined and assessed jointly.
• Self-employed applicants will require an accountant’s reference and should have accounts for a minimum of two years.
• Employment checks to confirm your start date, salary and if your position is permanent.
• Homeownership checks (only if you are a homeowner) confirming your mortgage payments are up to date.
• A Landlord reference (if you are currently residing in rented accommodation) confirming you have abided by the terms of the lease. This will check that the rent was paid on time and in full, there was no antisocial behaviour and the property was looked after in an appropriate manner.
• ‘Right to rent’ ID checks.
Applicants (including those that are students, are unemployed, receive or Universal Credit) that don't have a gross annual basic income (excluding commission/bonus) of 30 times the monthly rent, have adverse credit, have not been in their current employment for 6 months or it is not a permanent position WILL REQUIRE A HOMEOWNER GUARANTOR.
Council Tax Band: A
Deposit: £725.00
Length Of Tenancy: 6/12 month
Brochures
Brochure- COUNCIL TAXA payment made to your local authority in order to pay for local services like schools, libraries, and refuse collection. The amount you pay depends on the value of the property.Read more about council Tax in our glossary page.
- Band: A
- PARKINGDetails of how and where vehicles can be parked, and any associated costs.Read more about parking in our glossary page.
- On street
- GARDENA property has access to an outdoor space, which could be private or shared.
- Yes
- ACCESSIBILITYHow a property has been adapted to meet the needs of vulnerable or disabled individuals.Read more about accessibility in our glossary page.
- Ask agent
Leaholme Terrace, Blackhall Colliery, Hartlepool, Durham, TS27 4AB
Add an important place to see how long it'd take to get there from our property listings.
__mins driving to your place
Notes
Staying secure when looking for property
Ensure you're up to date with our latest advice on how to avoid fraud or scams when looking for property online.
Visit our security centre to find out moreDisclaimer - Property reference 491127. The information displayed about this property comprises a property advertisement. Rightmove.co.uk makes no warranty as to the accuracy or completeness of the advertisement or any linked or associated information, and Rightmove has no control over the content. This property advertisement does not constitute property particulars. The information is provided and maintained by Pattinson Estate Agents, Peterlee. Please contact the selling agent or developer directly to obtain any information which may be available under the terms of The Energy Performance of Buildings (Certificates and Inspections) (England and Wales) Regulations 2007 or the Home Report if in relation to a residential property in Scotland.
*This is the average speed from the provider with the fastest broadband package available at this postcode. The average speed displayed is based on the download speeds of at least 50% of customers at peak time (8pm to 10pm). Fibre/cable services at the postcode are subject to availability and may differ between properties within a postcode. Speeds can be affected by a range of technical and environmental factors. The speed at the property may be lower than that listed above. You can check the estimated speed and confirm availability to a property prior to purchasing on the broadband provider's website. Providers may increase charges. The information is provided and maintained by Decision Technologies Limited. **This is indicative only and based on a 2-person household with multiple devices and simultaneous usage. Broadband performance is affected by multiple factors including number of occupants and devices, simultaneous usage, router range etc. For more information speak to your broadband provider.
Map data ©OpenStreetMap contributors.





