
4 bedroom detached house for sale
Longlands, Repton, Derbyshire

- PROPERTY TYPE
Detached
- BEDROOMS
4
- BATHROOMS
2
- SIZE
1,289 sq ft
120 sq m
- TENUREDescribes how you own a property. There are different types of tenure - freehold, leasehold, and commonhold.Read more about tenure in our glossary page.
Freehold
Key features
- Impressive Head of Estate Location with Views
- Ideal Family Home
- Well-Appointed Throughout
- Hall, WC, Good Size Lounge & Study
- Open Plan Dining Kitchen with Utility off
- Principle Bedroom with En-Suite Shower Room
- Three Further Bedrooms & Bathroom
- Pleasant Landscaped Rear Garden
- Driveway & Garage
- Close to Excellent Transport Links
Description
The property is tucked away on a good sized plot with well-established fore-garden and landscaped rear garden featuring patio, wood chipped child's play area and lawn surrounded by wood edged borders.
Internally the property is double glazed and gas central heated and features entrance hall, fitted guest cloakroom, good sized lounge with bay window, study and open plan dining kitchen with utility off. The first floor landing leads to a principle bedroom with en-suite shower room, three further bedrooms and a main bathroom.
The Location - Repton is a popular village with a good range of amenities including its famous public school, St Wystan's school, Repton primary school and Repton Preparatory in nearby Milton. It is a charming, characterful village with period architecture, pleasant walks in the surrounding open countryside, a good range of restaurants and pubs, village shop and it is conveniently located for easy access to major transport links.
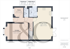
Accommodation -
Ground Floor -
Entrance Hall - 4.05 x 1.18 (13'3" x 3'10") - A panelled and double glazed entrance door provides access to hallway with central heating radiator and staircase to first floor.
Fitted Guest Cloakroom - 2.08 x 1.13 (6'9" x 3'8") - Partly tiled with a suite comprising low flush WC, wash handbasin, central heating radiator and double glazed window to side.
Lounge - 4.54 x 3.65 (14'10" x 11'11") - A very pleasant room courtesy of a wide double glazed canted bay window to front which overlooks mature hedgerow and fields beyond and two central heating radiators.
Study - 2.16 x 2.11 (7'1" x 6'11") - With central heating radiator, bespoke fitted storage incorporating desk, shoe storage and open bookcase with panelled surround and double glazed window to front again with pleasant open outlook.
Open Plan Dining Kitchen - 7.12 x 3.88 (23'4" x 12'8") - Comprising woodblock effect preparation surfaces with glazed tiled surrounds, inset stainless steel sink unit with mixer tap, fitted base cupboards and drawers, complementary wall mounted cupboards, inset gas hob with extractor hood over, double oven with grill, integrated dishwasher, appliance space suitable for fridge freezer, central heating radiator, useful storage cupboard, double glazed window and French doors to rear.
Utility Room - 2.07 x 1.66 (6'9" x 5'5") - Comprising wood block effect preparation surfaces with matching upstands, inset sink unit, fitted base cupboards, appliance space suitable for washing machine and tumble dryer, wall mounted gas boiler, central heating radiator and panelled and glazed door to garden.
First Floor Landing - 4.30 x 1.02 (14'1" x 3'4") - A semi-galleried landing with feature balustrade, central heating radiator, access to loft space, airing cupboard and double glazed window to side.
Bedroom One - 4.58 x 3.22 (15'0" x 10'6") - Having a central heating radiator, double glazed window to front with fabulous open aspect and door to en-suite.
En-Suite Shower Room - 2.07 x 1.61 (6'9" x 5'3") - Partly tiled with a white suite comprising low flush WC, half pedestal wash handbasin, shower cubicle, chrome towel radiator and double glazed window to front.
Bedroom Two - 3.81 x 2.74 (12'5" x 8'11") - With central heating radiator and double glazed window to rear.
Bedroom Three - 3.26 x 2.76 (10'8" x 9'0") - Having a central heating radiator and double glazed window to rear.
Bedroom Four - 3.20 x 2.14 (10'5" x 7'0") - With central heating radiator and double glazed window to front again with fabulous views.
Bathroom - 2.06 x 1.70 (6'9" x 5'6") - Well-appointed and partly tiled with a white suite comprising low flush WC, half pedestal wash handbasin, bath with shower over, central heating radiator and double glazed window to side.
Outside - The property is positioned on a corner plot with trees and shrubs to the front and hedgerow to the side incorporating a pathway and side gate giving access to the garden from the driveway. The driveway sits in front of a single garage.
The rear garden has been landscaped and incorporates an extensive patio area and woodchip bed (ideal for a children's climbing frame). Steps lead up to a lawned garden with sleeper edged herbaceous borders containing shrubs and trees.
Council Tax Band E -
Management Fees - Please note, we have been informed by the vendor that there is an estate service charge of £123.34 per 6 months (2025 fees). Should you proceed with the purchase of this property this must be verified by your solicitor.
Brochures
Longlands, Repton, Derbyshire Brochure- COUNCIL TAXA payment made to your local authority in order to pay for local services like schools, libraries, and refuse collection. The amount you pay depends on the value of the property.Read more about council Tax in our glossary page.
- Band: E
- PARKINGDetails of how and where vehicles can be parked, and any associated costs.Read more about parking in our glossary page.
- Yes
- GARDENA property has access to an outdoor space, which could be private or shared.
- Yes
- ACCESSIBILITYHow a property has been adapted to meet the needs of vulnerable or disabled individuals.Read more about accessibility in our glossary page.
- Ask agent
Longlands, Repton, Derbyshire
Add an important place to see how long it'd take to get there from our property listings.
__mins driving to your place
Get an instant, personalised result:
- Show sellers you’re serious
- Secure viewings faster with agents
- No impact on your credit score


Your mortgage
Notes
Staying secure when looking for property
Ensure you're up to date with our latest advice on how to avoid fraud or scams when looking for property online.
Visit our security centre to find out moreDisclaimer - Property reference 34146477. The information displayed about this property comprises a property advertisement. Rightmove.co.uk makes no warranty as to the accuracy or completeness of the advertisement or any linked or associated information, and Rightmove has no control over the content. This property advertisement does not constitute property particulars. The information is provided and maintained by Fletcher & Company, Willington. Please contact the selling agent or developer directly to obtain any information which may be available under the terms of The Energy Performance of Buildings (Certificates and Inspections) (England and Wales) Regulations 2007 or the Home Report if in relation to a residential property in Scotland.
*This is the average speed from the provider with the fastest broadband package available at this postcode. The average speed displayed is based on the download speeds of at least 50% of customers at peak time (8pm to 10pm). Fibre/cable services at the postcode are subject to availability and may differ between properties within a postcode. Speeds can be affected by a range of technical and environmental factors. The speed at the property may be lower than that listed above. You can check the estimated speed and confirm availability to a property prior to purchasing on the broadband provider's website. Providers may increase charges. The information is provided and maintained by Decision Technologies Limited. **This is indicative only and based on a 2-person household with multiple devices and simultaneous usage. Broadband performance is affected by multiple factors including number of occupants and devices, simultaneous usage, router range etc. For more information speak to your broadband provider.
Map data ©OpenStreetMap contributors.






