Windmill Hill, Hailsham, BN27
- PROPERTY TYPE
- Land 
- SIZE
- Ask agent 
Description
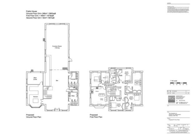
Comprehensive Planning Permission: The site comes with approved plans for a new-build public house, including manager's accommodation and letting rooms spread across three floors.
Nestled in the heart of Windmill Hill, a charming village in Wealden, East Sussex, the Horseshoe Inn presents an unparalleled opportunity for investors and entrepreneurs alike. This leisure/retail property, spanning an impressive 5,349 sq ft, is primed for transformation into a bustling public house, complete with manager's accommodation and additional letting rooms.
Key Features:
Strategic Location: Situated just 9 miles south of Eastbourne and 48 miles north of London, the property offers easy access to major cities while retaining its village charm.
Comprehensive Planning Permission: The site comes with approved plans for a new-build public house, including manager's accommodation and letting rooms spread across three floors.
Versatile Space: The ground floor is designed for the public house (2,863 sq ft), the first floor for manager's accommodation and letting rooms (1,819 sq ft), and the second floor exclusively for additional letting rooms (667 sq ft).
Ample Parking: With 24 dedicated parking spaces, the property ensures convenience for both staff and patrons.
Brochures
Property BrochureWindmill Hill, Hailsham, BN27
NEAREST STATIONS
Distances are straight line measurements from the centre of the postcode- Normans Bay Station4.5 miles
- Pevensey Bay Station4.6 miles
- Pevensey & Westham Station4.8 miles
Notes
Disclaimer - Property reference ee8a41d1-044c-4adf-a6c1-6b0d49e924e7. The information displayed about this property comprises a property advertisement. Rightmove.co.uk makes no warranty as to the accuracy or completeness of the advertisement or any linked or associated information, and Rightmove has no control over the content. This property advertisement does not constitute property particulars. The information is provided and maintained by Ashton Stripp, Battle. Please contact the selling agent or developer directly to obtain any information which may be available under the terms of The Energy Performance of Buildings (Certificates and Inspections) (England and Wales) Regulations 2007 or the Home Report if in relation to a residential property in Scotland.
Map data ©OpenStreetMap contributors.







