
3 bedroom terraced house for sale
Roman Road, Failsworth, Manchester

- PROPERTY TYPE
Terraced
- BEDROOMS
3
- BATHROOMS
1
- SIZE
937 sq ft
87 sq m
- TENUREDescribes how you own a property. There are different types of tenure - freehold, leasehold, and commonhold.Read more about tenure in our glossary page.
Freehold
Key features
- CHAIN FREE
- MID TERRACE
- THREE BEDROOMS
- TWO RECEPTION ROOMS
- OFF ROAD PARKING TO THE REAR
- IN NEED OF SOME MODERNISING
- HUGE POTENTIAL
- SPACIOUS
- FREEHOLD
Description
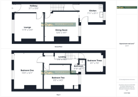
The property compromises of upvc double glazing entrance hallway, lounge, 2nd reception/dining room, kitchen, stairs to three bedroom and shower room.
Externally this mid terrace benefits from a rear paved gated drive and to the front is a small walled garden.
If you are looking for a project to invest in then this property is just that, Please be advised the property needs some modernising but has the potential to be a beautiful home.
Roman Road is well served with nearby local amenities and transport links with direct access for buses on Roman Road. Within easy reach you will find well regarded Primary and Secondary Schools with Hollinwood Metrolink and M60 motorway just a short 3 minute drive. Viewing highly recommended.
Entrance Hallway - 1.09m x 4.72m (3'7 x 15'6) - Entrance hallway, carpeted, radiator, neutral decor, doors leading into lounge and 2nd reception/dining room, stairs off.
Lounge - 3.58m x 3.73m (11'9 x 12'3) - Front facing, carpeted, radiator, electric fire with surround and hearth, neutral decor.
2nd Reception Room/Dining Room - 3.81m x 4.29m (12'6 x 14'1) - Rear facing, carpeted, radiator, neutral decor, leading into kitchen.
Kitchen - 2.41m x 3.02m (7'11 x 9'11) - Rear facing, range of fitted wall and base units in cream finish with complimentary grey worktops. Inset sink and drainer with mixer taps over, radiator, partly tiled walls, vinyl flooring, neutral decor, under stairs storage door to the side leading to rear garden.
Stairs And Landing - Carpeted, neutral decor, landing - carpeted, neutral decor, storage cupboard, loft access.
Bedroom One - 4.80m x 3.68m (15'9 x 12'1) - Front facing, two windows, carpeted, radiator.
Bedroom Two - 2.82m x 4.34m (9'3 x 14'3) - Rear facing, carpeted, radiator.
Bedroom Three - 2.46m x 2.29m (8'1 x 7'6) - Rear facing, radiator.
Bathroom - 2.46m x 2.29m (8'1 x 7'6) - Rear facing, three piece bathroom suite in white comprising sink and toilet, shower cubicle, tiled shower area, radiator, vinyl flooring.
External - To the front a small garden, and private rear garden with lawned area and paved area.
Tenure - We have been advised by the vendors that the property is Freehold.
Stamp Duty - Residential property rates
You usually pay Stamp Duty Land Tax (SDLT) on increasing portions of the property price when you buy residential property, for example a house or flat.
The amount you pay depends on:
• when you bought the property
• how much you paid for it
• whether you’re eligible for relief or an exemption
Rates for a single property
You pay SDLT at these rates if, after buying the property, it is the only residential property you own.
You will usually pay 5% on top of these rates if you own another residential property.
Rates from 1 April 2025
Property or lease premium or transfer value SDLT rate
Up to £125,000 Zero
The next £125,000 (the portion from £125,001 to £250,000) 2%
The next £675,000 (the portion from £250,001 to £925,000) 5%
The next £575,000 (the portion from £925,001 to £1.5 million) 10%
The remaining amount (the portion above £1.5 million) 12%
Example
In April 2025 you buy a house for £295,000. The SDLT you owe will be calculated as follows:
• 0% on the first £125,000 = £0
• 2% on the second £125,000 = £2,500
• 5% on the final £45,000 = £2,250
• total SDLT = £4,750
Brochures
Roman Road, Failsworth, ManchesterMcdermott & Co property link- COUNCIL TAXA payment made to your local authority in order to pay for local services like schools, libraries, and refuse collection. The amount you pay depends on the value of the property.Read more about council Tax in our glossary page.
- Band: A
- PARKINGDetails of how and where vehicles can be parked, and any associated costs.Read more about parking in our glossary page.
- Yes
- GARDENA property has access to an outdoor space, which could be private or shared.
- Yes
- ACCESSIBILITYHow a property has been adapted to meet the needs of vulnerable or disabled individuals.Read more about accessibility in our glossary page.
- Ask agent
Roman Road, Failsworth, Manchester
Add an important place to see how long it'd take to get there from our property listings.
__mins driving to your place
Get an instant, personalised result:
- Show sellers you’re serious
- Secure viewings faster with agents
- No impact on your credit score
Your mortgage
Notes
Staying secure when looking for property
Ensure you're up to date with our latest advice on how to avoid fraud or scams when looking for property online.
Visit our security centre to find out moreDisclaimer - Property reference 34146723. The information displayed about this property comprises a property advertisement. Rightmove.co.uk makes no warranty as to the accuracy or completeness of the advertisement or any linked or associated information, and Rightmove has no control over the content. This property advertisement does not constitute property particulars. The information is provided and maintained by Mcdermott & Co Property Agents, Failsworth. Please contact the selling agent or developer directly to obtain any information which may be available under the terms of The Energy Performance of Buildings (Certificates and Inspections) (England and Wales) Regulations 2007 or the Home Report if in relation to a residential property in Scotland.
*This is the average speed from the provider with the fastest broadband package available at this postcode. The average speed displayed is based on the download speeds of at least 50% of customers at peak time (8pm to 10pm). Fibre/cable services at the postcode are subject to availability and may differ between properties within a postcode. Speeds can be affected by a range of technical and environmental factors. The speed at the property may be lower than that listed above. You can check the estimated speed and confirm availability to a property prior to purchasing on the broadband provider's website. Providers may increase charges. The information is provided and maintained by Decision Technologies Limited. **This is indicative only and based on a 2-person household with multiple devices and simultaneous usage. Broadband performance is affected by multiple factors including number of occupants and devices, simultaneous usage, router range etc. For more information speak to your broadband provider.
Map data ©OpenStreetMap contributors.





