96 The Quays, Salford Quays, Salford, M50

- PROPERTY TYPE
Penthouse
- BEDROOMS
3
- BATHROOMS
2
- SIZE
Ask agent
Key features
- Penthouse Apartment
- Large Terrace
- Open Plan living
- Spacious Layout
- Parking
- Concierge
Description
Welcome to this stunning three-bedroom apartment in the prestigious NV Buildings, offering an unparalleled living experience in the heart of Salford Quays. This property combines spacious, contemporary design with breathtaking waterfront views, making it a truly exceptional home.
Upon entering, a bright and inviting hallway with stylish wallpaper and light wood flooring sets the tone for the rest of the apartment. This central space provides easy access to the main living areas and bedrooms, ensuring a seamless flow throughout the home.
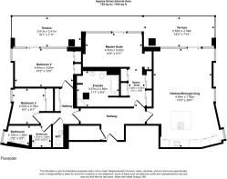
Kitchen/Dining/Living Room
The heart of this apartment is the expansive open-plan kitchen, dining, and living area, measuring 4.64m x 7.92m (15’3” x 26’0”). This space is perfect for modern living and entertaining. The sleek, dark kitchen features high-quality integrated appliances and a striking central island with a breakfast bar, providing a great focal point. The light wood flooring continues into the living area, which is bathed in natural light from the large windows.
Bedrooms and Bathrooms
The apartment boasts three well-proportioned bedrooms. The master suite, at 4.50m x 3.02m (14’9” x 9’11”), is a serene retreat with a built-in wardrobe and a luxurious en-suite bathroom (3.37m x 2.85m / 11’1” x 9’4”) featuring a large walk-in shower.
The second bedroom, measuring 4.64m x 3.05m (15’3” x 10’0”), and the third bedroom, at 2.55m x 2.78m (8’4” x 9’1”), are also generously sized with ample space for storage. The property also includes a separate family bathroom (2.19m x 1.59m / 7’2” x 5’3”) and a convenient W/C (1.51m x 1.60m / 4’11” x 5’11”). The bathrooms are finished to a high standard with elegant, neutral tiling and modern fixtures.
Outdoor Space and Views
A key feature of this apartment is the two private terraces. The larger terrace, accessible from the living area, measures 5.51m x 2.41m (18’1” x 7’11”), and offers stunning, panoramic views of the water. It’s an ideal spot for morning coffee or evening drinks. The second terrace is located off the main bedroom.
Key Features and Location
This apartment is a rare opportunity to acquire a spacious, high-quality home in one of Salford Quays’ most sought-after developments. The NV Buildings are perfectly positioned for enjoying the vibrant waterfront lifestyle, with a fantastic selection of shops, bars, and restaurants nearby. Excellent transport links, including the MediaCityUK Metrolink station, provide easy access to Manchester city centre and beyond, making this an ideal choice for professionals and those seeking a cosmopolitan lifestyle.
EPC rating: B. Tenure: Leasehold,- COUNCIL TAXA payment made to your local authority in order to pay for local services like schools, libraries, and refuse collection. The amount you pay depends on the value of the property.Read more about council Tax in our glossary page.
- Band: F
- PARKINGDetails of how and where vehicles can be parked, and any associated costs.Read more about parking in our glossary page.
- Off street,Private
- GARDENA property has access to an outdoor space, which could be private or shared.
- Ask agent
- ACCESSIBILITYHow a property has been adapted to meet the needs of vulnerable or disabled individuals.Read more about accessibility in our glossary page.
- Ask agent
Energy performance certificate - ask agent
96 The Quays, Salford Quays, Salford, M50
Add an important place to see how long it'd take to get there from our property listings.
__mins driving to your place
Get an instant, personalised result:
- Show sellers you’re serious
- Secure viewings faster with agents
- No impact on your credit score
Your mortgage
Notes
Staying secure when looking for property
Ensure you're up to date with our latest advice on how to avoid fraud or scams when looking for property online.
Visit our security centre to find out moreDisclaimer - Property reference P1526. The information displayed about this property comprises a property advertisement. Rightmove.co.uk makes no warranty as to the accuracy or completeness of the advertisement or any linked or associated information, and Rightmove has no control over the content. This property advertisement does not constitute property particulars. The information is provided and maintained by Northwood, Sale. Please contact the selling agent or developer directly to obtain any information which may be available under the terms of The Energy Performance of Buildings (Certificates and Inspections) (England and Wales) Regulations 2007 or the Home Report if in relation to a residential property in Scotland.
*This is the average speed from the provider with the fastest broadband package available at this postcode. The average speed displayed is based on the download speeds of at least 50% of customers at peak time (8pm to 10pm). Fibre/cable services at the postcode are subject to availability and may differ between properties within a postcode. Speeds can be affected by a range of technical and environmental factors. The speed at the property may be lower than that listed above. You can check the estimated speed and confirm availability to a property prior to purchasing on the broadband provider's website. Providers may increase charges. The information is provided and maintained by Decision Technologies Limited. **This is indicative only and based on a 2-person household with multiple devices and simultaneous usage. Broadband performance is affected by multiple factors including number of occupants and devices, simultaneous usage, router range etc. For more information speak to your broadband provider.
Map data ©OpenStreetMap contributors.







