Embankment House, Brighton

Letting details
- Let available date:
- Now
- Deposit:
- £1,557A deposit provides security for a landlord against damage, or unpaid rent by a tenant.Read more about deposit in our glossary page.
- Min. Tenancy:
- Ask agent How long the landlord offers to let the property for.Read more about tenancy length in our glossary page.
- Let type:
- Long term
- Furnish type:
- Unfurnished
- Council Tax:
- Ask agent
- PROPERTY TYPE
Apartment
- BEDROOMS
1
- BATHROOMS
1
- SIZE
527 sq ft
49 sq m
Key features
- Unfurnished
- Available NOW
- No deposit option available
- Good sized balcony
- EPC B rating
- Close to Brighton Mainline station
- 1 weeks holding deposit required to secure
- Council Tax band C
Description
Situated on the 5th floor of a modern development adjacent to Brighton Station, this luxury one-bedroom apartment offers the perfect blend of style and convenience – ideal for commuters or anyone seeking contemporary living in the heart of the city.
The apartment features a spacious open-plan living area, complete with a sleek fitted kitchen boasting high-gloss white wall units, contrasting grey base cabinets, and a stylish worktop. Integrated appliances include a ceramic hob, fridge freezer, microwave, dishwasher, and washing machine.
The double bedroom comes with built-in wardrobes, and the property is completed by a modern bathroom finished to a high standard.
Additional highlights include a generous balcony with sea views, perfect for enjoying Brighton’s vibrant atmosphere.
Available from 1st November 2025
Unfurnished
EPC Rating: B
Luxury 1-Bedroom Apartment Next to Brighton Train Station – Available NOW
This stylish fifth-floor one-bedroom apartment offers the perfect combination of modern living and unbeatable convenience, located right next to Brighton Train Station. Ideal for commuters or anyone seeking a contemporary home in the heart of Brighton.
The property features a bright open-plan living space with a sleek, modern kitchen fitted with high-gloss white wall cabinets, grey base units, and a countertop. Appliances include a ceramic hob, integrated fridge freezer, washing machine, microwave, and dishwasher – perfect for hassle-free living.
The double bedroom includes built-in wardrobes, while the modern bathroom completes this elegant apartment.
Other highlights include a good-sized balcony, providing a relaxing spot to unwind.
Unfurnished
EPC Rating: B
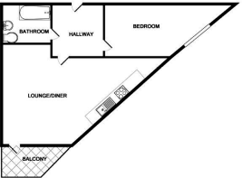
Bedroom - 686 x 296 - Spacious Double Bedroom (22' 6" x 9' 9" / 6.86m x 2.96m)
A generously sized double bedroom featuring built-in wardrobes for ample storage. The east-facing windows fill the room with natural morning light, creating a bright and inviting space.
Open Plan Kitchen And Living Area - 674 x 479 - Open-Plan Living/Dining Area (22' 1" x 15' 9" / 6.74m x 4.79m)
A bright and spacious open-plan living area featuring double doors leading to the balcony, perfect for enjoying the views and fresh air. The room benefits from elegant wooden flooring throughout, creating a modern and inviting atmosphere.
The contemporary kitchen is fitted with high-gloss white wall cabinets, grey base units, and a white countertop, and includes integrated appliances such as a fridge freezer, microwave, dishwasher, and washing machine. Cooking is effortless with a ceramic electric hob, telescopic extractor hood, and electric oven.
Bathroom - 225 x 204 - Modern Bathroom (7' 5" x 6' 8" / 2.25m x 2.04m)
A contemporary bathroom featuring a wash hand basin, WC, and bath with a thermostatic shower. Additional fittings include a heated towel rail and a wall cabinet for convenient storage, combining style and practicality in a compact space.
Communal Entrance - Secure Entrance & Lobby
Access to the building is via a secure front door, leading into a well-maintained lobby area. The lobby includes letterboxes for all apartments, providing a safe and convenient space for mail delivery.
Balcony - Balcony
Accessible from the living room via patio doors, the balcony offers stunning views of Brighton, providing the perfect spot to relax and enjoy the surroundings.
Other Information - EPC Rating: B
Council Tax Band: C (Brighton & Hove Council)
Holding Deposit: £311.54 (1 week’s rent)
Security Deposit: £1,557.69 (5 weeks’ rent)
Brochures
Embankment House, Brighton- COUNCIL TAXA payment made to your local authority in order to pay for local services like schools, libraries, and refuse collection. The amount you pay depends on the value of the property.Read more about council Tax in our glossary page.
- Band: C
- PARKINGDetails of how and where vehicles can be parked, and any associated costs.Read more about parking in our glossary page.
- Permit
- GARDENA property has access to an outdoor space, which could be private or shared.
- Ask agent
- ACCESSIBILITYHow a property has been adapted to meet the needs of vulnerable or disabled individuals.Read more about accessibility in our glossary page.
- Ask agent
Embankment House, Brighton
Add an important place to see how long it'd take to get there from our property listings.
__mins driving to your place
Explore area BETA
Brighton
Get to know this area with AI-generated guides about local green spaces, transport links, restaurants and more.
About Callaways Estate & Letting Agents, Hove
North & South Studios, 3 Wilbury Grove, Hove, East Sussex, BN3 3JQ


Notes
Staying secure when looking for property
Ensure you're up to date with our latest advice on how to avoid fraud or scams when looking for property online.
Visit our security centre to find out moreDisclaimer - Property reference 34146706. The information displayed about this property comprises a property advertisement. Rightmove.co.uk makes no warranty as to the accuracy or completeness of the advertisement or any linked or associated information, and Rightmove has no control over the content. This property advertisement does not constitute property particulars. The information is provided and maintained by Callaways Estate & Letting Agents, Hove. Please contact the selling agent or developer directly to obtain any information which may be available under the terms of The Energy Performance of Buildings (Certificates and Inspections) (England and Wales) Regulations 2007 or the Home Report if in relation to a residential property in Scotland.
*This is the average speed from the provider with the fastest broadband package available at this postcode. The average speed displayed is based on the download speeds of at least 50% of customers at peak time (8pm to 10pm). Fibre/cable services at the postcode are subject to availability and may differ between properties within a postcode. Speeds can be affected by a range of technical and environmental factors. The speed at the property may be lower than that listed above. You can check the estimated speed and confirm availability to a property prior to purchasing on the broadband provider's website. Providers may increase charges. The information is provided and maintained by Decision Technologies Limited. **This is indicative only and based on a 2-person household with multiple devices and simultaneous usage. Broadband performance is affected by multiple factors including number of occupants and devices, simultaneous usage, router range etc. For more information speak to your broadband provider.
Map data ©OpenStreetMap contributors.




