
6 bedroom detached house for sale
Netherton of Craigie, Craigiebarn Road, Dundee, DD4 7PL

- PROPERTY TYPE
Detached
- BEDROOMS
6
- BATHROOMS
4
- SIZE
Ask agent
- TENUREDescribes how you own a property. There are different types of tenure - freehold, leasehold, and commonhold.Read more about tenure in our glossary page.
Freehold
Key features
- Beautifully Presented Arts And Crafts Villa
- 1 Acre Plot With A South Facing Lawn
- Set Over Three Levels
- Six Double Bedrooms
- Master Bedroom With Walk-In Wardrobe
- Three South Facing Reception Rooms
- Beautiful Contemporary Decor Throughout
- GCH
- Large Timber Garage
Description
A truly special home and a unique opportunity for those with a love for the very best Arts and Crafts architecture in Dundee. This substantial detached property, set within attractive mature gardens, has seen significant refurbishment in recent years and is brought to the market in fantastic condition. Set over three levels and extending to around 370 sq. m., the home sits within a private, not-overlooked 1-acre plot that includes a south-facing lawn, a large driveway with space for multiple cars, and a substantial timber garage. Netherton of Craigie is ideally situated for easy access into central Dundee and Broughty Ferry with its excellent range of amenities including primary and secondary schools, supermarkets, beachfront and well-loved bars and restaurants.
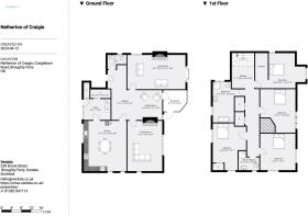
The property has been beautifully cared for over the years and retains much of its original decorative woodwork and detailing, along with four working fireplaces. A broad reception hallway sets the tone, with a number of useful cloak and storage cupboards. The kitchen offers a wide range of modern appliances and connects to a practical utility room. Three impressive south-facing reception rooms make up the majority of the ground floor, complemented by a fully-glassed sunroom that floods the space with natural light.
On the first floor, four double bedrooms can be found, each benefitting from integrated storage, while the master features a generous walk-in dresser. A luxury bathroom with a bathtub and a separate shower room are both finished to a high standard. The second floor provides independent accommodation with a further two well-proportioned bedrooms, a bathroom and a W.C.
With its scale, layout, four fireplaces and extensive gardens, this is an ideal home for a large family — offering space to gather together as well as quiet corners to retreat to. Practical specification is equally impressive, with gas central heating and contemporary décor throughout.
- COUNCIL TAXA payment made to your local authority in order to pay for local services like schools, libraries, and refuse collection. The amount you pay depends on the value of the property.Read more about council Tax in our glossary page.
- Band: G
- LISTED PROPERTYA property designated as being of architectural or historical interest, with additional obligations imposed upon the owner.Read more about listed properties in our glossary page.
- Listed
- PARKINGDetails of how and where vehicles can be parked, and any associated costs.Read more about parking in our glossary page.
- Yes
- GARDENA property has access to an outdoor space, which could be private or shared.
- Private garden
- ACCESSIBILITYHow a property has been adapted to meet the needs of vulnerable or disabled individuals.Read more about accessibility in our glossary page.
- Ask agent
Energy performance certificate - ask agent
Netherton of Craigie, Craigiebarn Road, Dundee, DD4 7PL
Add an important place to see how long it'd take to get there from our property listings.
__mins driving to your place
Get an instant, personalised result:
- Show sellers you’re serious
- Secure viewings faster with agents
- No impact on your credit score
Your mortgage
Notes
Staying secure when looking for property
Ensure you're up to date with our latest advice on how to avoid fraud or scams when looking for property online.
Visit our security centre to find out moreDisclaimer - Property reference 9425ad41-653e-4f52-98f5-b114ac1eabd5. The information displayed about this property comprises a property advertisement. Rightmove.co.uk makes no warranty as to the accuracy or completeness of the advertisement or any linked or associated information, and Rightmove has no control over the content. This property advertisement does not constitute property particulars. The information is provided and maintained by Verdala, Dundee. Please contact the selling agent or developer directly to obtain any information which may be available under the terms of The Energy Performance of Buildings (Certificates and Inspections) (England and Wales) Regulations 2007 or the Home Report if in relation to a residential property in Scotland.
*This is the average speed from the provider with the fastest broadband package available at this postcode. The average speed displayed is based on the download speeds of at least 50% of customers at peak time (8pm to 10pm). Fibre/cable services at the postcode are subject to availability and may differ between properties within a postcode. Speeds can be affected by a range of technical and environmental factors. The speed at the property may be lower than that listed above. You can check the estimated speed and confirm availability to a property prior to purchasing on the broadband provider's website. Providers may increase charges. The information is provided and maintained by Decision Technologies Limited. **This is indicative only and based on a 2-person household with multiple devices and simultaneous usage. Broadband performance is affected by multiple factors including number of occupants and devices, simultaneous usage, router range etc. For more information speak to your broadband provider.
Map data ©OpenStreetMap contributors.







