Plane Street, London, SE26

- PROPERTY TYPE
Terraced
- BEDROOMS
3
- BATHROOMS
1
- SIZE
Ask agent
- TENUREDescribes how you own a property. There are different types of tenure - freehold, leasehold, and commonhold.Read more about tenure in our glossary page.
Freehold
Key features
- Three Double Bedrooms
- Modern Terraced Family Home
- Freehold
- Off Street Parking
- Pleasant Rear Garden
- Double Glazing
- Wood Flooring Where Stated
- Ample Storage
- Contemporary Designed
- Ideal for Sydenham Station
Description
Beautifully presented and set within a quiet cul-de-sac, this bright and airy three-bedroom terraced home offers the perfect blend of modern comfort and convenience. The property features three generously sized double bedrooms, off-street parking, and a pleasant rear garden ideal for relaxing or entertaining.
Inside, you’ll find wood flooring throughout, double glazing, and ethernet access points in multiple rooms—perfect for modern living and working from home. The home also benefits from a new roof installed within the last five years and ample built-in storage.
Ideally located for Sydenham Station, the property is within easy reach of local high street shops, cafes, and amenities, as well as the green open spaces of Wells Park, Sydenham Hill Wood, and Cox's Walk.
Exterior
Off street parking to front
Garden to rear mainly laid to lawn
Key Terms
Double glazing
Central heating
Wood flooring where stated
Ample storage
Freehold
Contemporary designed
Ideal for Sydenham Station
Conveniently located for local high street shops and amenities, Wells Park and Sydenham Hill Wood & Cox 's Walk
Owners Comment
We have loved living in this house for the last three and a half years, we have made it our own home. The thing that sold the property to us was the large kitchen diner as we love cooking and entertaining and this space really lends itself to socialising.
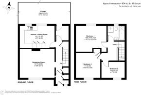
Entrance Porch
Entrance Hall
Double glazed window to front, built in cupboard, under-stairs storage, wood flooring, radiator
Lounge
Double glazed window to front, wood flooring, radiator
Kitchen/Diner
Two double glazed windows to rear, range of wall and base units, butler sink unit, integrated oven, hob and extractor, integrated washing machine and dishwasher, space for fridge/freezer, tiled flooring, radiator
Study Area
Wood Flooring, door to rear, ethernet point
Master Bedroom
Double glazed window to rear, fitted shelves, carpet, radiator, ethernet point
Bedroom Two
Double glazed window to front, built in cupboard, carpet, radiator, ethernet point
Bedroom Three
Double glazed window to front, carpet, radiator, ethernet point
Bathroom
Double glazed window to rear, corner shower cubicle, panelled bath, mixer tap and shower attachment, pedestal wash hand basin, low flush WC, tiled flooring, heated towel rail
Brochures
Particulars- COUNCIL TAXA payment made to your local authority in order to pay for local services like schools, libraries, and refuse collection. The amount you pay depends on the value of the property.Read more about council Tax in our glossary page.
- Band: C
- PARKINGDetails of how and where vehicles can be parked, and any associated costs.Read more about parking in our glossary page.
- Yes
- GARDENA property has access to an outdoor space, which could be private or shared.
- Yes
- ACCESSIBILITYHow a property has been adapted to meet the needs of vulnerable or disabled individuals.Read more about accessibility in our glossary page.
- Ask agent
Plane Street, London, SE26
Add an important place to see how long it'd take to get there from our property listings.
__mins driving to your place
Get an instant, personalised result:
- Show sellers you’re serious
- Secure viewings faster with agents
- No impact on your credit score
Your mortgage
Notes
Staying secure when looking for property
Ensure you're up to date with our latest advice on how to avoid fraud or scams when looking for property online.
Visit our security centre to find out moreDisclaimer - Property reference SYD240710. The information displayed about this property comprises a property advertisement. Rightmove.co.uk makes no warranty as to the accuracy or completeness of the advertisement or any linked or associated information, and Rightmove has no control over the content. This property advertisement does not constitute property particulars. The information is provided and maintained by Robinson Jackson, Sydenham. Please contact the selling agent or developer directly to obtain any information which may be available under the terms of The Energy Performance of Buildings (Certificates and Inspections) (England and Wales) Regulations 2007 or the Home Report if in relation to a residential property in Scotland.
*This is the average speed from the provider with the fastest broadband package available at this postcode. The average speed displayed is based on the download speeds of at least 50% of customers at peak time (8pm to 10pm). Fibre/cable services at the postcode are subject to availability and may differ between properties within a postcode. Speeds can be affected by a range of technical and environmental factors. The speed at the property may be lower than that listed above. You can check the estimated speed and confirm availability to a property prior to purchasing on the broadband provider's website. Providers may increase charges. The information is provided and maintained by Decision Technologies Limited. **This is indicative only and based on a 2-person household with multiple devices and simultaneous usage. Broadband performance is affected by multiple factors including number of occupants and devices, simultaneous usage, router range etc. For more information speak to your broadband provider.
Map data ©OpenStreetMap contributors.





