Residential development for sale
High Road & 9-10 Johnston Road, Woodford Green
- SIZE AVAILABLE
2,605 sq ft
242 sq m
- SECTOR
Residential development for sale
Key features
- Unique development opportunity
- Prominent corner property overlooking The Green/Duckpond
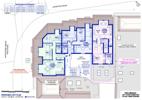
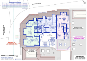
- Comprising loft space totalling approx 2,605 sq ft
- Planning consent granted for 3 apartments (1 x 1 bedroom & 2 x 2 bedroom)
- High Road location
Description
Location - The property is located prominently on the corner of Johnston Road and High Road, Woodford Green (A104). This particular section of the High Road consists of a variety of shops, restaurants, offices and flats. Woodford Underground Station is on the Central Line and provides a regular service into Central London. Access to the motorway network is via Junction 26 of the M25 at Waltham Abbey or via the North Circular Road (A406) at The Waterworks roundabout and local buses serve this location.
Description - Comprising the loft space above a commercial building consisting of shops and offices. Above the 1st floor offices is vacant loft space with a total approximate gross internal area of 2,605 sq ft (242 sq m).
All measurements quoted are approximate only.
Planning - Planning consent has been granted (Ref no 0513/22) to convert the loft space into 3 self-contained apartments (one x 1-bedroom & two x 2-bedroom) with balconies/terraces, associated amenity space, landscaping, together with cycle and refuse storage. Once the development is finished, the accommodation will be more particularly described as follows:
Flat A: 517 sq ft (48 sq m).
Flat B: 667 sq ft (62 sq m).
Flat C: 786 sq ft (73 sq m).
All measurements quoted are approximate and on the basis of Gross Internal Area.
Terms - The premises are available by way of long lease, with the benefit of the planning consent, for £650,000.
Viewings - Strictly via sole agents Clarke Hillyer, tel .
Epc - 384 High Road has an Energy Performance Certificate rating of C.
Energy Performance Certificates
EE RatingBrochures
High Road & 9-10 Johnston Road, Woodford Green
NEAREST STATIONS
Distances are straight line measurements from the centre of the postcode- Woodford Station0.6 miles
- Highams Park Station0.9 miles
- Roding Valley Station1.1 miles
Notes
Disclaimer - Property reference 34148151. The information displayed about this property comprises a property advertisement. Rightmove.co.uk makes no warranty as to the accuracy or completeness of the advertisement or any linked or associated information, and Rightmove has no control over the content. This property advertisement does not constitute property particulars. The information is provided and maintained by Clarke Hillyer Limited, Loughton. Please contact the selling agent or developer directly to obtain any information which may be available under the terms of The Energy Performance of Buildings (Certificates and Inspections) (England and Wales) Regulations 2007 or the Home Report if in relation to a residential property in Scotland.
Map data ©OpenStreetMap contributors.





