
Clapham Park Marketing Suite, 107 Clarence Avenue, London, SW4 8FR

- PROPERTY TYPE
Apartment
- BEDROOMS
2
- SIZE
Ask developer
Description
ENJOY A 5% DEPOSIT BOOST!
Home 162 | Leasehold | £680,000
Home 162 is a spacious fifth floor apartment. It benefits from floor to ceiling windows, an open plan living/kitchen/dining area, complete with integrated appliances. Situated in a highly sought after location, this residence offers both aesthetic appeal and strong rental potential.
The open-plan kitchen, dining, and living space flows naturally onto the balcony, offering a light-filled, flexible environment that suits both entertaining and everyday living.
You can walk to nearby Clapham South tube station in 13 minutes, giving you access to the Northern line, meaning you have swift access into Central London and beyond! There is an eclectic mix of shops, bars and eateries as well as local parks & recreational facilities all with in walking distance.
Find a home you love in a place where you'll want to stay forever. Contact our Sales Team to find out more!
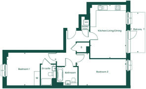
Room Dimensions
- Kitchen/Living/Dining - 5.86m x 3.91m 19'3" x 12'10"
- Bedroom 1 - 5.35m x 3.61m 17'7" x 11'0"
- Bedroom 2 - 5.37m x 3.55 17'7" x 11'8"
- Balcony - 3.26m x 1.57m 10'8" x 5'2"
- COUNCIL TAXA payment made to your local authority in order to pay for local services like schools, libraries, and refuse collection. The amount you pay depends on the value of the property.Read more about council Tax in our glossary page.
- Ask developer
- PARKINGDetails of how and where vehicles can be parked, and any associated costs.Read more about parking in our glossary page.
- Ask developer
- GARDENA property has access to an outdoor space, which could be private or shared.
- Ask developer
- ACCESSIBILITYHow a property has been adapted to meet the needs of vulnerable or disabled individuals.Read more about accessibility in our glossary page.
- Ask developer
Energy performance certificate - ask developer
Clapham Park Marketing Suite, 107 Clarence Avenue, London, SW4 8FR
Add an important place to see how long it'd take to get there from our property listings.
__mins driving to your place
Get an instant, personalised result:
- Show sellers you’re serious
- Secure viewings faster with agents
- No impact on your credit score
About Vistry West London (Countryside)
What's my budget? Check your affordability
CLICK HERE
Your mortgage
Notes
Staying secure when looking for property
Ensure you're up to date with our latest advice on how to avoid fraud or scams when looking for property online.
Visit our security centre to find out moreDisclaimer - Property reference 2_162. The information displayed about this property comprises a property advertisement. Rightmove.co.uk makes no warranty as to the accuracy or completeness of the advertisement or any linked or associated information, and Rightmove has no control over the content. This property advertisement does not constitute property particulars. The information is provided and maintained by Vistry West London (Countryside). Please contact the selling agent or developer directly to obtain any information which may be available under the terms of The Energy Performance of Buildings (Certificates and Inspections) (England and Wales) Regulations 2007 or the Home Report if in relation to a residential property in Scotland.
*This is the average speed from the provider with the fastest broadband package available at this postcode. The average speed displayed is based on the download speeds of at least 50% of customers at peak time (8pm to 10pm). Fibre/cable services at the postcode are subject to availability and may differ between properties within a postcode. Speeds can be affected by a range of technical and environmental factors. The speed at the property may be lower than that listed above. You can check the estimated speed and confirm availability to a property prior to purchasing on the broadband provider's website. Providers may increase charges. The information is provided and maintained by Decision Technologies Limited. **This is indicative only and based on a 2-person household with multiple devices and simultaneous usage. Broadband performance is affected by multiple factors including number of occupants and devices, simultaneous usage, router range etc. For more information speak to your broadband provider.
Map data ©OpenStreetMap contributors.





