Aveiro, Aveiro, Portugal
- PROPERTY TYPE
Apartment
- BEDROOMS
2
- BATHROOMS
2
- SIZE
947 sq ft
88 sq m
Description
When the excellence of the construction is combined with the excellence of its location, we obtain a unique and exceptional premium real estate product, which guarantees an investment with increased asset value.
Barrocas is a very quiet and welcoming residential area, with easy access to all services and the heart of the city, as well as to the main roads.
The apartment is part of a modern and spacious building, distinguished by its large balconies with abundant natural light, which provide additional leisure space and stunning views of the Ria de Aveiro and the iconic São Roque Canal, to the west. With apartment types ranging from one-bedroom to four-bedroom apartments, it is built with premium materials and features modern architecture that prioritizes the well-being and security of its residents, ideal for those seeking comfort, sophistication, and quality of life.
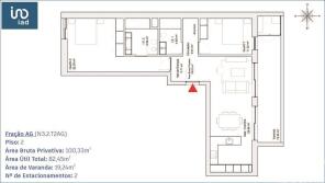
See the attached floor plan for more details, and contact us for more information, including available alternatives, delivery times, and clarification on construction and equipment details.
SOME CONSTRUCTION DETAILS:
STRUCTURE
Soil improved by piles to ensure stability and safety.
Sofa foundations.
Seismic-resistant reinforced concrete structure, designed according to the latest national and European standards.
COMMON AREAS
Ventilated facade with mineral wool insulation and high-quality porcelain stoneware cladding.
Fully decorated entrance lobby, providing an elegant welcome.
Wood veneer technical cabinets, combining functionality and design.
Multifunctional condominium rooms for various social activities.
Highly energy-efficient elevators, ensuring convenience and savings.
Circulation areas with composite flooring and high-quality porcelain tile.
Garages with epoxy resin floors and the possibility of installing individual electric chargers.
FINISHES
Minimalist frames with thermal break, ensuring energy efficiency.
Glasses with solar gain control and internal blackout protection. High-quality vinyl flooring, free of volatile substances, meets European environmental standards.
Bathrooms clad in high-quality composite materials or porcelain stoneware.
"Roca" wall-hung sanitary ware with cushioned countertops.
"Ofa" faucets and shower columns, combining sophistication and functionality.
Anti-intrusion, fire-rated entrance doors with acoustic attenuation.
Direct and indirect LED lighting, providing a modern and efficient environment.
Lacquered joinery and built-in cabinets.
Fully equipped kitchens with "Dekton" countertops.
Plasterboard walls and ceilings with mineral wool acoustic insulation, and “Aquapanel” lining in wet areas.
Acoustic damping screen between floors.
EQUIPMENT
"Daikin" air conditioning and heat pump.
High-end appliances from the "Küppersbusch" brand.
Integrated automation for greater comfort and home automation.
Mechanical ventilation for sanitary facilities.
_______________________
WHY CHOOSE AVEIRO?
Aveiro is a very welcoming and even romantic city, with a very small urban center whose municipality was founded in 1515 (and of which there are references since the 10th century). It is the capital of the district and includes 10 parishes that include around 55 thousand citizens who are very spread out over the territory, largely because it is a very flat area.
The city is only 10 km from the coastal strip, where the beaches of Barra, Costa Nova, and São Jacinto are the delights of bathers and sportsmen. Separating the city from the ocean, is the Ria de Aveiro, a lagoon about 32 km long, associated with the sea and the mouth of several rivers, which make it a unique habitat, always connected to people and the local economy.
Aveiro is closely linked to Fisheries and has an important Commercial and Naval Port, but it is also a city that involves important industrial and technological centers, which work closely with its fantastic University, an international reference for its research work.
It is, therefore, a very calm region with a very mild climate, an excellent bet for living, and raising your family.
If you want to vary, its centrality is masterful, with the city of Porto (2nd largest in the country) and the Sá Carneiro airport less than an hour's drive away, as well as the city of Coimbra and Viseu!
For about 2 hours, you will find, for example, the city of Lisbon and the highest point in mainland Portugal with 1993m of altitude, in Estrela mountain.
Come meet! Contact me!
____________________________________
IAD-Portugal, a Reference Brand!
Schedule your visit with IAD-Portugal now and benefit from the support of competent and available professionals, who will guide you not only in your search for the property that best suits you, but also throughout the entire purchase process, right up to the deed.
Trusting an IAD consultant means benefiting from the strength of a large network that works on a shared basis, with over 1,000 consultants in Portugal (including a vast team also represented in France, Spain, Germany, the United Kingdom, Italy, Mexico, and Florida, with over 18,000 professionals), and offers agile and efficient service.
#ref: 146952
Aveiro, Aveiro, Portugal
NEAREST AIRPORTS
Distances are straight line measurements- Porto(International)40.8 miles
Advice on buying Portuguese property
Learn everything you need to know to successfully find and buy a property in Portugal.
Notes
This is a property advertisement provided and maintained by IAD, Porto (reference 146952) and does not constitute property particulars. Whilst we require advertisers to act with best practice and provide accurate information, we can only publish advertisements in good faith and have not verified any claims or statements or inspected any of the properties, locations or opportunities promoted. Rightmove does not own or control and is not responsible for the properties, opportunities, website content, products or services provided or promoted by third parties and makes no warranties or representations as to the accuracy, completeness, legality, performance or suitability of any of the foregoing. We therefore accept no liability arising from any reliance made by any reader or person to whom this information is made available to. You must perform your own research and seek independent professional advice before making any decision to purchase or invest in overseas property.





