3 bedroom detached house for sale
Westerkirk, Southfield Lea, Cramlington

- PROPERTY TYPE
Detached
- BEDROOMS
3
- BATHROOMS
1
- SIZE
Ask agent
- TENUREDescribes how you own a property. There are different types of tenure - freehold, leasehold, and commonhold.Read more about tenure in our glossary page.
Freehold
Description
The property offers spacious, well planned accommodation offered for sale in excellent order and complimented by the addition of a large double glazed conservatory overlooking the rear garden.
Viewing highly recommended
Freehold
Council Tax Band "C"
EPC Rating "D"
Cloaksroom
White coloured washbasin and low level w.c. set, radiator, half tiled walls
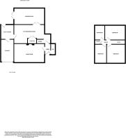
Living Room 5.56m (18'3") x 3.51m (11'6")
Feature fireplace with fitted Living flame gas fire, radiator, t.v. point, wall light fittings, double glazed bow window
Dining Room/Kitchen 6.96m (22'10") x 3.51m (11'6")
(Overall) three designer radiators, open plan oak staircase with cupboard under. The kitchen area is fitted with an extensive range of high gloss grey base and wall units with soft closed drawers and cupboards, laminate work tops and breakfast bar, colour co-ordinated sink unit with two bowls and mixer tap, integrated dishwasher, split level cooker with ceramic hob, concealed cooker hood, double oven and grill, t.v. wall mount, glazed doors to conservatory
Conservatory 5.64m (18'6") x 3.40m (11'2")
Double glazed upvc framed windows to three sides overlooking the rear garden, brick base walls, glazed roof, t.v.. point, double radiator, fitted blinds
Utility Room 2.51m (8'3") x 2.13m (7'0")
Fitted wall cupboard, work bench, plumbing for washing machine, radiator
Bedroom 1 3.40m (11'2") x 3.38m (11'1")
Radiator, built in wardrobes with sliding mirrored doors
Bedroom 2 3.73m (12'3") x 2.44m (8'0")
Radiator, built in cupboard, built in wardrobes
Bedroom 3 3.53m (11'7") x 2.06m (6'9")
T.v. wall mount, radiator
Bathroom
White suite of panelled bath with mains shower over, folding glazed shower screen, washbasin and low level w,.c. set in vanity unit with enclosed cistern, chromium ladder radiator, electric extractor fan, fully tiled walls
Externally
Attached Garage with electric roller door, wall mounted Baxi Platinum gas fired combi central heating boiler, electric light and sockets. To the front of the house there is a lawned garden with mature shrubs and a driveway with space to park several cars. The west facing rear garden with lawn, pebbled borders, shed and timber fencing.
Tenure
Freehold
- COUNCIL TAXA payment made to your local authority in order to pay for local services like schools, libraries, and refuse collection. The amount you pay depends on the value of the property.Read more about council Tax in our glossary page.
- Ask agent
- PARKINGDetails of how and where vehicles can be parked, and any associated costs.Read more about parking in our glossary page.
- Yes
- GARDENA property has access to an outdoor space, which could be private or shared.
- Yes
- ACCESSIBILITYHow a property has been adapted to meet the needs of vulnerable or disabled individuals.Read more about accessibility in our glossary page.
- Ask agent
Westerkirk, Southfield Lea, Cramlington
Add an important place to see how long it'd take to get there from our property listings.
__mins driving to your place
Get an instant, personalised result:
- Show sellers you’re serious
- Secure viewings faster with agents
- No impact on your credit score
Your mortgage
Notes
Staying secure when looking for property
Ensure you're up to date with our latest advice on how to avoid fraud or scams when looking for property online.
Visit our security centre to find out moreDisclaimer - Property reference REN1005856. The information displayed about this property comprises a property advertisement. Rightmove.co.uk makes no warranty as to the accuracy or completeness of the advertisement or any linked or associated information, and Rightmove has no control over the content. This property advertisement does not constitute property particulars. The information is provided and maintained by Renown Estate Agents, Cramlington. Please contact the selling agent or developer directly to obtain any information which may be available under the terms of The Energy Performance of Buildings (Certificates and Inspections) (England and Wales) Regulations 2007 or the Home Report if in relation to a residential property in Scotland.
*This is the average speed from the provider with the fastest broadband package available at this postcode. The average speed displayed is based on the download speeds of at least 50% of customers at peak time (8pm to 10pm). Fibre/cable services at the postcode are subject to availability and may differ between properties within a postcode. Speeds can be affected by a range of technical and environmental factors. The speed at the property may be lower than that listed above. You can check the estimated speed and confirm availability to a property prior to purchasing on the broadband provider's website. Providers may increase charges. The information is provided and maintained by Decision Technologies Limited. **This is indicative only and based on a 2-person household with multiple devices and simultaneous usage. Broadband performance is affected by multiple factors including number of occupants and devices, simultaneous usage, router range etc. For more information speak to your broadband provider.
Map data ©OpenStreetMap contributors.




