Bow Road, Wateringbury, Maidstone, Kent, ME18

- PROPERTY TYPE
End of Terrace
- BEDROOMS
5
- BATHROOMS
3
- SIZE
Ask agent
- TENUREDescribes how you own a property. There are different types of tenure - freehold, leasehold, and commonhold.Read more about tenure in our glossary page.
Freehold
Key features
- Five spacious double bedrooms
- Luxurious main bedroom en-suite
- Modern open-plan kitchen with island
- Three generous reception rooms
- Charming fireplace in main room
- Direct access to private garden
- Beautifully appointed spa-like bathroom
- Abundance of natural light throughout
- Highly sought-after quiet location
- Excellent schools and transport nearby
Description
Welcome to this truly exceptional Victorian residence, offering a rare blend of period charm and modern living, set in the heart of Wateringbury, a sought-after village with excellent amenities and transport links. This spacious five double bedroom home is filled
with character. Thoughtfully updated throughout, it features: Five generously sized bedrooms, three stylish bathrooms, including a show-stopping main bathroom with a beautiful freestanding tub, a light-filled open-plan kitchen, dining and family space – perfect for modern living and entertaining, two separate lounges, ideal for relaxing or working from home.
For those seeking extra storage or workspace, the property also includes a well-sized, fully powered outbuilding, comprising a utility room and additional storage space. Step outside and fall in love with the expansive garden, backing onto open countryside with stunning panoramic views. At the rear of the garden, a gentle stream meanders through the landscape - a truly tranquil escape. The garden also benefits from a fully powered cabin, perfect as a studio, guest room or garden retreat.
The additional benefits don't stop here... The property has a large driveway for parking multiple vehicles. Homes like this rarely come to market – a unique blend of history, space, and extensive countryside walks.
IMPORTANT NOTE TO POTENTIAL PURCHASERS & TENANTS:
We endeavour to make our particulars accurate and reliable, however, they do not constitute or form part of an offer or any contract and none is to be relied upon as statements of representation or fact. The services, systems and appliances listed in this specification have not been tested by us and no guarantee as to their operating ability or efficiency is given. All photographs and measurements have been taken as a guide only and are not precise. Floor plans where included are not to scale and accuracy is not guaranteed. If you require clarification or further information on any points, please contact us, especially if you are traveling some distance to view. POTENTIAL PURCHASERS: Fixtures and fittings other than those mentioned are to be agreed with the seller. POTENTIAL TENANTS: All properties are available for a minimum length of time, with the exception of short term accommodation. Please contact the branch for details. A security deposit of at least one month’s rent is required. Rent is to be paid one month in advance. It is the tenant’s responsibility to insure any personal possessions. Payment of all utilities including water rates or metered supply and Council Tax is the responsibility of the tenant in most cases.
MAI250680/2
Description
Welcome to this truly exceptional Victorian residence, offering a rare blend of period charm and modern living, set in the heart of Wateringbury, a sought-after village with excellent amenities and transport links. This spacious five double bedroom home is filled with character. Thoughtfully updated throughout, it features: Five generously sized bedrooms, three stylish bathrooms, including a show-stopping main bathroom with a beautiful freestanding tub, a light-filled open-plan kitchen, dining and family space – perfect for modern living and entertaining, two separate lounges, ideal for relaxing or working from home. For those seeking extra storage or workspace, the property also includes a well-sized, fully powered outbuilding, comprising a utility room and additional storage space. Step outside and fall in love with the expansive garden, backing onto open countryside with stunning panoramic views. At the rear of the garden, a gentle stream meanders through the landscape (truncated)
Location
Nestled in the heart of the Kent countryside, Wateringbury offers the perfect blend of rural charm and convenience. This picturesque village is known for its tranquil atmosphere. The property is ideally located within the catchment area of some of the most sought-after secondary schools in Kent, including those in Maidstone, Tonbridge, and Tunbridge Wells. Families will benefit from access to highly regarded grammar and comprehensive schools. Wateringbury boasts a friendly community and a range of everyday conveniences. From local shops, pubs, cafes and a play park - everything you need is within easy reach. For commuters, the village benefits from excellent public transport links. The Wateringbury railway station is just a short walk away, providing direct services to London, making it an ideal choice for those working in the capital but craving a quieter lifestyle. The nearby road network also offers convenient access to major towns like Maidstone, Tunbridge Wells, and (truncated)
Internal
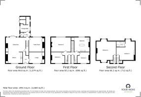
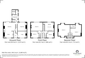
Ground Floor
Entrance Hall
Lounge
4.2m x 3.6m
Kitchen
3.8m x 3.2m
Dining Area
5.2m x 3.6m
Family Room
3.8m x 3.5m
Utility/Storage
3m x 3m
W.C
1m x 1.4m
First Floor
Landing
Bedroom 3
4.01m x 5.7m
Bedroom 4
3.2m x 3.1m
Bedroom 5
3.5m x 3.2m
Bathroom
3.8m x 3.5m
Second Floor
Bedroom 1
5.4m x 2.6m
Ensuite
2.5m x 1.6m
Bedroom 2
4.6m x 4.4m
External
Driveway
Garden
Summer House
Brochures
Web DetailsFull Brochure PDF- COUNCIL TAXA payment made to your local authority in order to pay for local services like schools, libraries, and refuse collection. The amount you pay depends on the value of the property.Read more about council Tax in our glossary page.
- Band: F
- PARKINGDetails of how and where vehicles can be parked, and any associated costs.Read more about parking in our glossary page.
- Yes
- GARDENA property has access to an outdoor space, which could be private or shared.
- Yes
- ACCESSIBILITYHow a property has been adapted to meet the needs of vulnerable or disabled individuals.Read more about accessibility in our glossary page.
- Ask agent
Bow Road, Wateringbury, Maidstone, Kent, ME18
Add an important place to see how long it'd take to get there from our property listings.
__mins driving to your place
Explore area BETA
Maidstone
Get to know this area with AI-generated guides about local green spaces, transport links, restaurants and more.
Get an instant, personalised result:
- Show sellers you’re serious
- Secure viewings faster with agents
- No impact on your credit score
Your mortgage
Notes
Staying secure when looking for property
Ensure you're up to date with our latest advice on how to avoid fraud or scams when looking for property online.
Visit our security centre to find out moreDisclaimer - Property reference MAI250680. The information displayed about this property comprises a property advertisement. Rightmove.co.uk makes no warranty as to the accuracy or completeness of the advertisement or any linked or associated information, and Rightmove has no control over the content. This property advertisement does not constitute property particulars. The information is provided and maintained by Your Move, Maidstone. Please contact the selling agent or developer directly to obtain any information which may be available under the terms of The Energy Performance of Buildings (Certificates and Inspections) (England and Wales) Regulations 2007 or the Home Report if in relation to a residential property in Scotland.
*This is the average speed from the provider with the fastest broadband package available at this postcode. The average speed displayed is based on the download speeds of at least 50% of customers at peak time (8pm to 10pm). Fibre/cable services at the postcode are subject to availability and may differ between properties within a postcode. Speeds can be affected by a range of technical and environmental factors. The speed at the property may be lower than that listed above. You can check the estimated speed and confirm availability to a property prior to purchasing on the broadband provider's website. Providers may increase charges. The information is provided and maintained by Decision Technologies Limited. **This is indicative only and based on a 2-person household with multiple devices and simultaneous usage. Broadband performance is affected by multiple factors including number of occupants and devices, simultaneous usage, router range etc. For more information speak to your broadband provider.
Map data ©OpenStreetMap contributors.







