
Grove House, Padstow, PL28

- PROPERTY TYPE
House
- BEDROOMS
4
- BATHROOMS
3
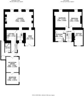
- SIZE
1,488 sq ft
138 sq m
- TENUREDescribes how you own a property. There are different types of tenure - freehold, leasehold, and commonhold.Read more about tenure in our glossary page.
Freehold
Key features
- Located in the Desirable Old Town of Padstow Yards from the Quayside
- Elegant Double Fronted Period Home with Striking Kerb Appeal
- Four Bedrooms & Two Modern Bathrooms
- Sash Windows & Wood Burning Stove
- Beautifully Presented Accommodation
- Private Rear Garden
- Proven Successful Holiday Let with Strong Rental History
Description
With front and rear outside space, two bathrooms and generous living spaces, Grove House offers an enviable lifestyle in one of Cornwall’s most desirable locations.
The beautifully presented galley kitchen is thoughtfully designed with integrated appliances, leading to a light-filled dining room where French doors open to the rear garden. Two elegant reception rooms
provide versatility: one centred around a wood-burning stove for cosy evenings, the other perfectly placed for entertaining.
Every room radiates individuality and authenticity, with period detailing and original features preserved throughout. The ground floor also offers a large double bedroom and a stylish family shower room, providing flexibility for guests.
Upstairs, the charm continues with three further bedrooms, each bathed in light from the sash windows and enriched by the patina of the original floorboards. An elegant family bathroom completes this floor, blending comfort with character.
At the rear, an unexpectedly spacious enclosed garden offers privacy and sunshine in equal measure - an idyllic spot for al fresco dining, barbecues or quiet relaxation. The front of the property enjoys a small courtyard-style garden, enclosed and gated with direct access onto Church Street, enhancing both convenience and kerb appeal.
With its sash windows, original floorboards, wood-burning stove and timeless character, Grove House is a truly individual home - as suited to elegant permanent living as it is to being a premier Cornish holiday retreat.
Until recently, Grove House has operated as a highly successful holiday let, underlining its desirability and strong investment potential. Full letting history can be provided on request.
Services to the property include mains gas, water, electricity and drainage. EPC rating D. Council tax band D. Ofcom indicate ultrafast broadband availability. Ofcom indicate 5G mobile coverage.
The historic harbour town of Padstow sits proudly on Cornwall’s dramatic North Coast, renowned for its timeless fishing heritage, picturesque streets and thriving culinary scene. The town is home to an enviable collection of cafés, bars and award-winning restaurants, including Paul Ainsworth’s Michelin-starred No.6, the stylish seafood bar Prawn on the Lawn, and Rick Stein’s world-famous Seafood Restaurant.
Surrounded by an Area of Outstanding Natural Beauty, Padstow is perfectly positioned for lovers of the outdoors. Within just a few miles lie some of Cornwall’s most celebrated sandy beaches, ideal for sailing, surfing and family days out, while Trevose Golf & Country Club offers a championship links course with breathtaking sea views. Padstow is also well connected. The nearest mainline railway station at Bodmin Parkway (approx. 20 miles) provides direct links to London, while Newquay Airport (approx. 14 miles) offers domestic and international flights.
To find Grove House, drive towards Padstow on the A389. Follow the road round the outskirts of the town passing the fire station and main carpark. Turn right at signs for Prideaux Place. Pass the entrance to Prideaux Place and continue down onto Church Street. Pass St Petroc’s Church and continue down the lane before turning right onto Ruthy’s Lane. Drive to the end of Ruthy’s Lane and then left onto Church Lane. Grove House can found along on the right hand side. The postcode for satellite navigation is PL28 8AY. What3words: nature.amount.generally
Brochures
Particulars- COUNCIL TAXA payment made to your local authority in order to pay for local services like schools, libraries, and refuse collection. The amount you pay depends on the value of the property.Read more about council Tax in our glossary page.
- Band: D
- PARKINGDetails of how and where vehicles can be parked, and any associated costs.Read more about parking in our glossary page.
- No parking
- GARDENA property has access to an outdoor space, which could be private or shared.
- Yes
- ACCESSIBILITYHow a property has been adapted to meet the needs of vulnerable or disabled individuals.Read more about accessibility in our glossary page.
- Ask agent
Grove House, Padstow, PL28
Add an important place to see how long it'd take to get there from our property listings.
__mins driving to your place
Get an instant, personalised result:
- Show sellers you’re serious
- Secure viewings faster with agents
- No impact on your credit score
Your mortgage
Notes
Staying secure when looking for property
Ensure you're up to date with our latest advice on how to avoid fraud or scams when looking for property online.
Visit our security centre to find out moreDisclaimer - Property reference JACKI_003062. The information displayed about this property comprises a property advertisement. Rightmove.co.uk makes no warranty as to the accuracy or completeness of the advertisement or any linked or associated information, and Rightmove has no control over the content. This property advertisement does not constitute property particulars. The information is provided and maintained by Jackie Stanley, Padstow. Please contact the selling agent or developer directly to obtain any information which may be available under the terms of The Energy Performance of Buildings (Certificates and Inspections) (England and Wales) Regulations 2007 or the Home Report if in relation to a residential property in Scotland.
*This is the average speed from the provider with the fastest broadband package available at this postcode. The average speed displayed is based on the download speeds of at least 50% of customers at peak time (8pm to 10pm). Fibre/cable services at the postcode are subject to availability and may differ between properties within a postcode. Speeds can be affected by a range of technical and environmental factors. The speed at the property may be lower than that listed above. You can check the estimated speed and confirm availability to a property prior to purchasing on the broadband provider's website. Providers may increase charges. The information is provided and maintained by Decision Technologies Limited. **This is indicative only and based on a 2-person household with multiple devices and simultaneous usage. Broadband performance is affected by multiple factors including number of occupants and devices, simultaneous usage, router range etc. For more information speak to your broadband provider.
Map data ©OpenStreetMap contributors.





