
Clive Road, Redditch, Worcestershire, B97 4BT

Letting details
- Let available date:
- Now
- Deposit:
- Ask agentA deposit provides security for a landlord against damage, or unpaid rent by a tenant.Read more about deposit in our glossary page.
- Furnish type:
- Unfurnished
- Council Tax:
- Ask agent
- PROPERTY TYPE
Retirement Property
- BEDROOMS
2
- SIZE
663 sq ft
62 sq m
Key features
- Dedicated House Manager
- Located in the heart of Redditch
- Close proximity of shops and amenities
- Coffee lounge for socialising with neighbours
- Private, gated development
- 0.2 mile walk to Redditch town centre
- En-suite
- North West facing
- 24/7 call system
- Camera entry system
Description
Milward Place is located in the heart of Redditch, just 15 miles south of Birmingham, featuring a selection of one and two bedroom stunning apartments, all equipped with modern day amenities and sitting in beautiful landscaped grounds for you to enjoy with your family, friends and new neighbours.
Enjoy all of the benefits of a McCarthy & Stone retirement community with our affordable and flexible assured periodic tenancies, so you can rent your property for as long as you want. Renting in retirement provides a wealth of benefits including one monthly fee, removing any worries you may have about the upkeep of your property and the grounds. You can move in at your pace, with some customer moving within just a couple of weeks and settle in to your new home with minimum fuss.
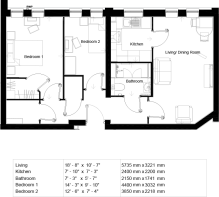
Apartment 15 is a modern north-west facing two-bedroom home on the ground floor.
The spacious entrance hall includes the 24-hour emergency response system, intercom, smoke detector, illuminated switches and two useful storage cupboards.
The bright living room features a large window, TV and Sky connection points, fitted carpets and raised power sockets, with a glazed door leading to the contemporary fitted kitchen complete with integrated appliances, waist-height oven, ceramic hob and fridge-freezer.
The double bedroom includes a walk-in wardrobe with shelving and hanging space. The fully tiled shower room offers a large walk-in shower, vanity unit, WC, heated towel rail and fitted mirror.
This property is let unfurnished.
- Council tax band: New build - Council Tax band to be determined
- Reservation deposit: £150 (to be offset against your initial payment and fully refundable should your Tenancy not proceed)
- Security deposit: £1,847 (equivalent to 5 weeks rent of the apartment only, excludes any parking space rent)
Brochures
Milward Place brochure- COUNCIL TAXA payment made to your local authority in order to pay for local services like schools, libraries, and refuse collection. The amount you pay depends on the value of the property.Read more about council Tax in our glossary page.
- Band: TBC
- PARKINGDetails of how and where vehicles can be parked, and any associated costs.Read more about parking in our glossary page.
- Yes
- GARDENA property has access to an outdoor space, which could be private or shared.
- Ask agent
- ACCESSIBILITYHow a property has been adapted to meet the needs of vulnerable or disabled individuals.Read more about accessibility in our glossary page.
- Ask agent
Clive Road, Redditch, Worcestershire, B97 4BT
Add an important place to see how long it'd take to get there from our property listings.
__mins driving to your place
Notes
Staying secure when looking for property
Ensure you're up to date with our latest advice on how to avoid fraud or scams when looking for property online.
Visit our security centre to find out moreDisclaimer - Property reference a230O0000025xctQAA. The information displayed about this property comprises a property advertisement. Rightmove.co.uk makes no warranty as to the accuracy or completeness of the advertisement or any linked or associated information, and Rightmove has no control over the content. This property advertisement does not constitute property particulars. The information is provided and maintained by McCarthy & Stone, Nationwide. Please contact the selling agent or developer directly to obtain any information which may be available under the terms of The Energy Performance of Buildings (Certificates and Inspections) (England and Wales) Regulations 2007 or the Home Report if in relation to a residential property in Scotland.
*This is the average speed from the provider with the fastest broadband package available at this postcode. The average speed displayed is based on the download speeds of at least 50% of customers at peak time (8pm to 10pm). Fibre/cable services at the postcode are subject to availability and may differ between properties within a postcode. Speeds can be affected by a range of technical and environmental factors. The speed at the property may be lower than that listed above. You can check the estimated speed and confirm availability to a property prior to purchasing on the broadband provider's website. Providers may increase charges. The information is provided and maintained by Decision Technologies Limited. **This is indicative only and based on a 2-person household with multiple devices and simultaneous usage. Broadband performance is affected by multiple factors including number of occupants and devices, simultaneous usage, router range etc. For more information speak to your broadband provider.
Map data ©OpenStreetMap contributors.





