
3 bedroom detached bungalow for sale
Dunheved Road, Launceston, Cornwall, PL15

- PROPERTY TYPE
Detached Bungalow
- BEDROOMS
3
- BATHROOMS
2
- SIZE
Ask agent
- TENUREDescribes how you own a property. There are different types of tenure - freehold, leasehold, and commonhold.Read more about tenure in our glossary page.
Freehold
Key features
- New build detached three bedroom bungalow.
- Architecturally designed to a high standard.
- Bright, sociable living spaces.
- Spacious, south facing gardens with landscaping potential.
- Stylish new kitchen with integrated appliances.
- Master bedroom with en-suite shower room.
- Air source heating and PV solar panels.
- Dual aspect lounge opening onto private garden.
- Contemporary family bathroom with soaker shower.
- New floor coverings, UPVC double glazing, and downlighting.
Description
This superb bungalow has a 10 year build zone warranty and offers great accommodation with plenty of space and a light, creating a welcoming atmosphere. Plot 2 is located towards the entrance of the development and has a plesant garden.
Internally, from the entrance hall, most people are drawn to the kitchen/breakfast room, which tends to be the hub of family life. The kitchen is fitted out with integrated appliances with plenty of storage, work surfaces, and bathed with natural light and far reaching views. The kitchen has ample room for a dining table for everyday use and bi-fold doors lead out to the garden. Adjoining the kitchen through double doors is the sitting room. A generous size, with patio doors leading to the garden.
There are three bedrooms, two doubles and a generous single, with the principal bedroom having an en suite shower room, with white suite. The family bathroom is also fitted in white, with a shower over the bath and glazed screen.
The parking and garage are to the side of the house, with an electric car charging point.
To the rear of the house is a balcony with far reaching views.
There is a fully enclosed rear garden with lawn and some shrubs and has scope for further landscaping to taste.
The rear roof has an array of photo voltaic (PV or 'solar') panels, producing a maximum of 6.4kW of electricity.
Offering a rare opportunity to enjoy comfortable, single-storey living in the heart of Launceston.
Discover Launceston: Gateway to Cornwall
Nestled in the heart of the Tamar Valley, Launceston is a historic market town that blends timeless charm with modern convenience. Once the capital of Cornwall, its rich heritage is etched into every cobbled street and stone façade, crowned by the iconic Norman hilltop castle that watches over the town.
Location & Lifestyle
Ideally positioned between Dartmoor and Bodmin Moor, offering easy access to both north and south Cornish coasts. Just off the A30 dual carriageway, with Exeter, Plymouth, and Truro all under an hour away
Surrounded by rolling countryside, perfect for walking, cycling, and outdoor pursuits
Town Amenities
A vibrant town centre filled with independent shops, artisan cafés, and national retailers like Marks & Spencer and Costa.
Regular markets and late-night Christmas shopping events add festive flair.
Home to award-winning local food producers and a thriving culinary scene.
Culture & Community
Steeped in history with attractions like Launceston Castle, Lawrence House Museum, and the Steam Railway. Host to the annual Charles Causley Festival, celebrating arts and literature.
Entertainment at Launceston Town Hall, featuring comedians, tribute acts, and live music.
Education, Recreation & Nature
Excellent primary, secondary, and sixth form schools.
Access to superfast broadband, modern healthcare, and leisure facilities.
Close to Trethorne Leisure Park and The Hidden Valley Puzzle Park.
Nearby golf courses, sports pitches, and clubs including the Cornish All Blacks rugby team.
Historical Significance
Dunheved was the Southwestern Brittonic name for Launceston during the West Saxon period. The area played a role in early Cornish history, even hosting a mint during the reign of Æthelred the Unready around the 10th century. The name "Dunheved" itself evokes the town?s ancient status as a strategic and administrative centre.
Victorian Development
Dunheved Road was laid out following the arrival of the railway in 1865. A syndicate led by Mayor John Dingley designed it to be one of Launceston?s more upmarket residential streets, lined with elegant townhouses offering sweeping views. Its creation marked a turning point in the town?s expansion and modernization.
Modern-Day Dunheved
Today, Dunheved Road is part of the Launceston South electoral ward, known for its affluence, safety, and proximity to local amenities. It?s home to Launceston College, a key educational institution located at the southern end of the road since the 19th century.
Situated just off the A30, Dunheved Road offers easy access to Cornwall?s scenic coastlines and Devon?s countryside. The area is popular with families and professionals seeking a blend of heritage charm and modern convenience.
From Launceston town centre proceed into Dunheved Road from the junction at Westgate Street. Continue along the road passing Manaton Court on the left hand side. After a short distance the entrance to Manaton Drive will be found on the left hand side. Head up this private drive where the entrance to the development at Dunheved Gardens will be found straight ahead.
what3words.com - ///following.asserts.beaks
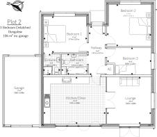
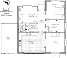
Kitchen/Diner
5.37m x 4.08m
Lounge
3.83m x 4.08m
Bedroom 1
3.77m max x 3.15m max
En-suite
1.44m x 1.83m
Bedroom 2
3.83m max x 3.63m max
Bedroom 3
3.83m max x 2.37m max
Bathroom/WC
2.23m x 1.83m
Garage
2.86m x 5.89m
FLOOR AREA
106 sqm / 1141 sq ft
SERVICES
Mains water, electricity and drainage.
BROADBAND
Super-fast 40Mbps *
COUNCIL TAX BAND
D*: Cornwall Council.
TENURE
Freehold.
VIEWING ARRANGEMENTS
Strictly by appointment with the selling agent.
- COUNCIL TAXA payment made to your local authority in order to pay for local services like schools, libraries, and refuse collection. The amount you pay depends on the value of the property.Read more about council Tax in our glossary page.
- Band: D
- PARKINGDetails of how and where vehicles can be parked, and any associated costs.Read more about parking in our glossary page.
- Garage,Driveway
- GARDENA property has access to an outdoor space, which could be private or shared.
- Yes
- ACCESSIBILITYHow a property has been adapted to meet the needs of vulnerable or disabled individuals.Read more about accessibility in our glossary page.
- Ask agent
Energy performance certificate - ask agent
Dunheved Road, Launceston, Cornwall, PL15
Add an important place to see how long it'd take to get there from our property listings.
__mins driving to your place
Get an instant, personalised result:
- Show sellers you’re serious
- Secure viewings faster with agents
- No impact on your credit score
Your mortgage
Notes
Staying secure when looking for property
Ensure you're up to date with our latest advice on how to avoid fraud or scams when looking for property online.
Visit our security centre to find out moreDisclaimer - Property reference LAU250220. The information displayed about this property comprises a property advertisement. Rightmove.co.uk makes no warranty as to the accuracy or completeness of the advertisement or any linked or associated information, and Rightmove has no control over the content. This property advertisement does not constitute property particulars. The information is provided and maintained by Webbers Property Services, Launceston. Please contact the selling agent or developer directly to obtain any information which may be available under the terms of The Energy Performance of Buildings (Certificates and Inspections) (England and Wales) Regulations 2007 or the Home Report if in relation to a residential property in Scotland.
*This is the average speed from the provider with the fastest broadband package available at this postcode. The average speed displayed is based on the download speeds of at least 50% of customers at peak time (8pm to 10pm). Fibre/cable services at the postcode are subject to availability and may differ between properties within a postcode. Speeds can be affected by a range of technical and environmental factors. The speed at the property may be lower than that listed above. You can check the estimated speed and confirm availability to a property prior to purchasing on the broadband provider's website. Providers may increase charges. The information is provided and maintained by Decision Technologies Limited. **This is indicative only and based on a 2-person household with multiple devices and simultaneous usage. Broadband performance is affected by multiple factors including number of occupants and devices, simultaneous usage, router range etc. For more information speak to your broadband provider.
Map data ©OpenStreetMap contributors.





