Downing Street, Ashton-under-lyne, Greater Manchester, OL7 9LX

- PROPERTY TYPE
Detached
- BEDROOMS
4
- BATHROOMS
3
- SIZE
Ask agent
- TENUREDescribes how you own a property. There are different types of tenure - freehold, leasehold, and commonhold.Read more about tenure in our glossary page.
Freehold
Key features
- Fantastic Detached Family Home
- Located in Quiet Cul-De-Sac Location
- Four Bedrooms and Three Bathrooms
- Move In Ready Condition, Fully Renovated
- Ample Parking to Front, Side and Rear
- Minutes Walk to Daisy Nook Country Park
- Active Planning Permission to Make it a Double Height Extension
- Please quote AS1006 when calling
Description
Fully Refurbished Four-Bedroom Detached Family Home – Quiet Cul-De-Sac Location Near Daisy Nook Country Park
Looking for a home that’s move-in ready, detached, and perfectly designed for modern family life? Look no further! This stunning property has been fully refurbished throughout to the highest standard, offering stylish interiors, versatile living space, and a fantastic location close to Daisy Nook Country Park. With no renovations required, you can simply move straight in and start enjoying everything this home has to offer.
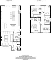
The property welcomes you via a bright entrance hallway, complete with two built-in storage cupboards for coats and shoes, and a convenient downstairs WC.
To the left, a spacious and airy family sitting room awaits, beautifully finished and complete with a feature fireplace that creates a warm and inviting focal point.
To the rear, the property truly comes to life with an incredible open-plan living space incorporating a high-spec kitchen complete with double oven as well as base and eye level units, dining area, and additional sitting area. This versatile space is bathed in natural light thanks to large patio doors opening onto the rear garden terrace, plus additional windows to the side and rear aspect.The kitchen has been designed with both style and practicality in mind, featuring modern fittings, integrated appliances, and plenty of workspace. Off the kitchen, there is also a luxurious shower room, finished to the same high spec as the rest of the home. A side door also provides direct access into the garage/car port for added convenience. There is also an active planning permission granted to make the rear extension double storey if the purchaser wished!
Upstairs, you’ll find four well-proportioned bedrooms. The primary bedroom benefits from fitted wardrobes and a sleek en-suite shower room. The second bedroom also includes fitted wardrobes, while the third bedroom offers additional built-in cupboard space, ensuring excellent storage throughout. The fourth bedroom is currently used as a home office but can easily be converted back into a bedroom or nursery, depending on your needs.
Completing this floor is a modern family bathroom, designed and finished to a superb standard, complementing the high-quality feel of the entire property.
The rear of the property has been cleverly designed for low maintenance, currently laid with artificial grass to create a practical and family-friendly outdoor space. There is ample parking for multiple vehicles, as well as access to the garage. The garage itself offers further versatility, with potential to be converted into a self-contained annex, gym, studio, or retained as excellent storage space.
Set within a quiet cul-de-sac, this property offers peace and privacy whilst being within easy reach of local schools, shops, and transport links. Daisy Nook Country Park is just a short walk away, providing beautiful green space and walking routes for the whole family to enjoy.
With its move-in ready condition, stunning refurbishment, and highly sought-after location, this detached family home is a rare opportunity not to be missed. Early viewing is strongly recommended to fully appreciate the quality and lifestyle on offer.
Please quote AS1006 when calling
Brochures
Brochure 1- COUNCIL TAXA payment made to your local authority in order to pay for local services like schools, libraries, and refuse collection. The amount you pay depends on the value of the property.Read more about council Tax in our glossary page.
- Band: E
- PARKINGDetails of how and where vehicles can be parked, and any associated costs.Read more about parking in our glossary page.
- Garage,Driveway
- GARDENA property has access to an outdoor space, which could be private or shared.
- Private garden
- ACCESSIBILITYHow a property has been adapted to meet the needs of vulnerable or disabled individuals.Read more about accessibility in our glossary page.
- Ask agent
Downing Street, Ashton-under-lyne, Greater Manchester, OL7 9LX
Add an important place to see how long it'd take to get there from our property listings.
__mins driving to your place
Get an instant, personalised result:
- Show sellers you’re serious
- Secure viewings faster with agents
- No impact on your credit score
Affordability
Notes
Staying secure when looking for property
Ensure you're up to date with our latest advice on how to avoid fraud or scams when looking for property online.
Visit our security centre to find out moreDisclaimer - Property reference S1435717. The information displayed about this property comprises a property advertisement. Rightmove.co.uk makes no warranty as to the accuracy or completeness of the advertisement or any linked or associated information, and Rightmove has no control over the content. This property advertisement does not constitute property particulars. The information is provided and maintained by eXp UK, North West. Please contact the selling agent or developer directly to obtain any information which may be available under the terms of The Energy Performance of Buildings (Certificates and Inspections) (England and Wales) Regulations 2007 or the Home Report if in relation to a residential property in Scotland.
*This is the average speed from the provider with the fastest broadband package available at this postcode. The average speed displayed is based on the download speeds of at least 50% of customers at peak time (8pm to 10pm). Fibre/cable services at the postcode are subject to availability and may differ between properties within a postcode. Speeds can be affected by a range of technical and environmental factors. The speed at the property may be lower than that listed above. You can check the estimated speed and confirm availability to a property prior to purchasing on the broadband provider's website. Providers may increase charges. The information is provided and maintained by Decision Technologies Limited. **This is indicative only and based on a 2-person household with multiple devices and simultaneous usage. Broadband performance is affected by multiple factors including number of occupants and devices, simultaneous usage, router range etc. For more information speak to your broadband provider.
Map data ©OpenStreetMap contributors.




