
Brownlow Road, London, N11

- PROPERTY TYPE
Apartment
- BEDROOMS
4
- BATHROOMS
2
- SIZE
Ask agent
Description
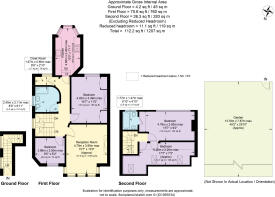
The property has its own front paved front garden ideal for bike storage etc and own front door . The property is in good condition throughout and benefits from a good size lounge , a modern kitchen diner, a modern family shower room and four good size bedrooms. the main bedroom benefiting from its own ensuite and views over the city of London. There is also ample storage under the eaves etc.
The garden at the rear is approx.45 with decking, paving and well stocked border plant beds' with lights and lighting in the shed. No Service charges and peppercorn ground rent.
Council tax band D
A rare opportunity to purchase this extremely versatile and unique maisonette with the huge benefit of its own private garden extending to 45ft. Currently offering four bedrooms, with en suite to the first floor master bedroom and stunning views, this property is in immaculate condition throughout and will easily lend itself to three double bedrooms and an office for those needing to work from home. Additionally, Bowes Green underground and Bowes Park overground stations are just a short walk away. Being bought to the market with NO ONWARD CHAIN!
Also ownership of the forecourt for storage of bikes & scooters etc.
The garden has lights in the shed and lights
Long Lease hold with no service charges or Ground rent
- COUNCIL TAXA payment made to your local authority in order to pay for local services like schools, libraries, and refuse collection. The amount you pay depends on the value of the property.Read more about council Tax in our glossary page.
- Band: D
- PARKINGDetails of how and where vehicles can be parked, and any associated costs.Read more about parking in our glossary page.
- Ask agent
- GARDENA property has access to an outdoor space, which could be private or shared.
- Yes
- ACCESSIBILITYHow a property has been adapted to meet the needs of vulnerable or disabled individuals.Read more about accessibility in our glossary page.
- Ask agent
Brownlow Road, London, N11
Add an important place to see how long it'd take to get there from our property listings.
__mins driving to your place
Get an instant, personalised result:
- Show sellers you’re serious
- Secure viewings faster with agents
- No impact on your credit score



Your mortgage
Notes
Staying secure when looking for property
Ensure you're up to date with our latest advice on how to avoid fraud or scams when looking for property online.
Visit our security centre to find out moreDisclaimer - Property reference BND240103. The information displayed about this property comprises a property advertisement. Rightmove.co.uk makes no warranty as to the accuracy or completeness of the advertisement or any linked or associated information, and Rightmove has no control over the content. This property advertisement does not constitute property particulars. The information is provided and maintained by Ellis & Co, Bounds Green. Please contact the selling agent or developer directly to obtain any information which may be available under the terms of The Energy Performance of Buildings (Certificates and Inspections) (England and Wales) Regulations 2007 or the Home Report if in relation to a residential property in Scotland.
*This is the average speed from the provider with the fastest broadband package available at this postcode. The average speed displayed is based on the download speeds of at least 50% of customers at peak time (8pm to 10pm). Fibre/cable services at the postcode are subject to availability and may differ between properties within a postcode. Speeds can be affected by a range of technical and environmental factors. The speed at the property may be lower than that listed above. You can check the estimated speed and confirm availability to a property prior to purchasing on the broadband provider's website. Providers may increase charges. The information is provided and maintained by Decision Technologies Limited. **This is indicative only and based on a 2-person household with multiple devices and simultaneous usage. Broadband performance is affected by multiple factors including number of occupants and devices, simultaneous usage, router range etc. For more information speak to your broadband provider.
Map data ©OpenStreetMap contributors.





