
Hidcote Road Ebrington Chipping Campden, Gloucestershire, GL55 6NA

- PROPERTY TYPE
Detached
- BEDROOMS
5
- BATHROOMS
4
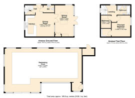
- SIZE
5,112 sq ft
475 sq m
- TENUREDescribes how you own a property. There are different types of tenure - freehold, leasehold, and commonhold.Read more about tenure in our glossary page.
Freehold
Key features
- Four reception rooms
- Four bedrooms with principal bedroom en-suite, shower room, dressing room & study, guest room en-suite, two further bedrooms
- Detached one-bedroom self-contained annexe
- Indoor heated swimming pool
- Detached garage & generous parking
- Long sweeping drive
- Delightful, landscaped gardens with far-reaching views
- No onward chain
Description
Approached by a long private drive, Rye Piece House sits gracefully within its grounds, a serene garden with vibrant lavender bushes stretches toward rolling fields and distant trees surrounded by a sweeping lawn, mature planting and uninterrupted views across Chipping Campden and the countryside.
Freehold | EPC Ratings E&C | Council Tax Band G
Services, Utilities and Property Information
Tenure: Freehold
Council Tax Band: G
Local Authority: Cotswold District Council
Property Construction: Standard (brick and tile)
Electricity Supply: Mains
Water Supply: Mains
Drainage and Sewerage – Septic tank and sewerage treatment plant
Heating: Oil-fired central heating
Broadband: Full fibre FTTH/FTTP – please check with your local supplier
Mobile Signal/Coverage – 4G and some 5G coverage – please check with your local supplier
Parking: Driveway parking for 8+ vehicles
Additional Information: For details on the covenant – please speak with the agent.
Disclaimer
All measurements are approximate and quoted in metric with imperial equivalents and for general guidance only and whilst every attempt has been made to ensure accuracy, they must not be relied on.
The fixtures, fittings and appliances referred to have not been tested and therefore no guarantee can be given and that they are in working order.
Internal photographs are reproduced for general information and it must not be inferred that any item shown is included with the property.
Whilst we carryout our due diligence on a property before it is launched to the market and we endeavour to provide accurate information, buyers are advised to conduct their own due diligence.
Our information is presented to the best of our knowledge and should not solely be relied upon when making purchasing decisions. The responsibility for verifying aspects such as flood risk, easements, covenants and other property related details rests with the buyer.
Brochures
Brochure 1- COUNCIL TAXA payment made to your local authority in order to pay for local services like schools, libraries, and refuse collection. The amount you pay depends on the value of the property.Read more about council Tax in our glossary page.
- Band: G
- PARKINGDetails of how and where vehicles can be parked, and any associated costs.Read more about parking in our glossary page.
- Yes
- GARDENA property has access to an outdoor space, which could be private or shared.
- Yes
- ACCESSIBILITYHow a property has been adapted to meet the needs of vulnerable or disabled individuals.Read more about accessibility in our glossary page.
- Ask agent
Hidcote Road Ebrington Chipping Campden, Gloucestershire, GL55 6NA
Add an important place to see how long it'd take to get there from our property listings.
__mins driving to your place
Get an instant, personalised result:
- Show sellers you’re serious
- Secure viewings faster with agents
- No impact on your credit score



Your mortgage
Notes
Staying secure when looking for property
Ensure you're up to date with our latest advice on how to avoid fraud or scams when looking for property online.
Visit our security centre to find out moreDisclaimer - Property reference RX609298. The information displayed about this property comprises a property advertisement. Rightmove.co.uk makes no warranty as to the accuracy or completeness of the advertisement or any linked or associated information, and Rightmove has no control over the content. This property advertisement does not constitute property particulars. The information is provided and maintained by Fine & Country, Leamington Spa. Please contact the selling agent or developer directly to obtain any information which may be available under the terms of The Energy Performance of Buildings (Certificates and Inspections) (England and Wales) Regulations 2007 or the Home Report if in relation to a residential property in Scotland.
*This is the average speed from the provider with the fastest broadband package available at this postcode. The average speed displayed is based on the download speeds of at least 50% of customers at peak time (8pm to 10pm). Fibre/cable services at the postcode are subject to availability and may differ between properties within a postcode. Speeds can be affected by a range of technical and environmental factors. The speed at the property may be lower than that listed above. You can check the estimated speed and confirm availability to a property prior to purchasing on the broadband provider's website. Providers may increase charges. The information is provided and maintained by Decision Technologies Limited. **This is indicative only and based on a 2-person household with multiple devices and simultaneous usage. Broadband performance is affected by multiple factors including number of occupants and devices, simultaneous usage, router range etc. For more information speak to your broadband provider.
Map data ©OpenStreetMap contributors.






