Baddesley Road, Chandlers Ford

- PROPERTY TYPE
Apartment
- BEDROOMS
2
- BATHROOMS
2
- SIZE
689 sq ft
64 sq m
Key features
- INVESTOR ONLY
- 2 Double bedrooms, Bathrooms
- Juliet balcony
- Allocated parking
- Communal garden
- Thornden school catchment
- Easy walking distance of local shops and amenities
- Walking distance of Hiltingbury Community Centre and Hiltingbury Lakes
- Close to train station and public transport links
- Good access to motorway links and Southampton International Airport
Description
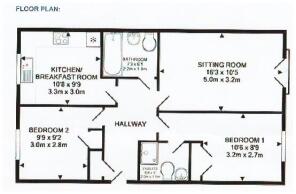
ENTRANCE A well presented communal area.
HALL 13'10" (3.96m) x 4'05" (1.21m) Includes intercom, BT point.
KITCHEN 10'08" (3.04m) x 9'09" (2.74m) Includes a modern range of wall and base units, Gas hob and built in electric oven, integrated dishwasher and fridge freezer, space for washing machine.
LOUNGE 16'03"(4.87m) x 10'.8" (3.04m) With Juliet balcony, TV aerial, BT point and Sky Point.
BATHROOM 7'03" (2.13m) x 6'01" (1.82m) Comprises a white suite with low level WC, wash basin, panel bath, monotap and shower hose. Includes heated towel rail and shaver socket.
BEDROOM 1 18'01" (5.48m) x 8'10" (2.43) Double room with fitted wardrobes rear aspect.
ENSUITE 6'08" (1.82m) x 5' (1.52m)
BEDROOM 2 9'08" (2.74m) x 9'03" (2.74m) Airing cupboard.
OUTSIDE
Communal gardens
PARKING
Allocated space
OTHER INFORMATION.
Telephone points: Hall, Lounge, Bedrooms 1, 2
Sky Point Yes
Terrestrial TV aerial Lounge, Bedrooms 1, 2
Broadband - subject to connection
Smoke alarms Yes
Security Alarm No
* GAS CENTRAL HEATING
* DOUBLE GLAZED
LOCAL AUTHORITY INFORMATION
TEST VALLEY COUNCIL BAND C
LEASEHOLD
LEASE YEARS REMAINING 979
SERVICE CHARGE PA. £2718.46
GROUND RENT PA. £200
Tenant in situ
Brochures
Sales Brochure - ...MAC Sales - A4 Wi...- COUNCIL TAXA payment made to your local authority in order to pay for local services like schools, libraries, and refuse collection. The amount you pay depends on the value of the property.Read more about council Tax in our glossary page.
- Band: C
- PARKINGDetails of how and where vehicles can be parked, and any associated costs.Read more about parking in our glossary page.
- Off street,Allocated
- GARDENA property has access to an outdoor space, which could be private or shared.
- Ask agent
- ACCESSIBILITYHow a property has been adapted to meet the needs of vulnerable or disabled individuals.Read more about accessibility in our glossary page.
- Ask agent
Baddesley Road, Chandlers Ford
Add an important place to see how long it'd take to get there from our property listings.
__mins driving to your place
Get an instant, personalised result:
- Show sellers you’re serious
- Secure viewings faster with agents
- No impact on your credit score
Affordability
Notes
Staying secure when looking for property
Ensure you're up to date with our latest advice on how to avoid fraud or scams when looking for property online.
Visit our security centre to find out moreDisclaimer - Property reference 100683007637. The information displayed about this property comprises a property advertisement. Rightmove.co.uk makes no warranty as to the accuracy or completeness of the advertisement or any linked or associated information, and Rightmove has no control over the content. This property advertisement does not constitute property particulars. The information is provided and maintained by Martin & Co, Southampton. Please contact the selling agent or developer directly to obtain any information which may be available under the terms of The Energy Performance of Buildings (Certificates and Inspections) (England and Wales) Regulations 2007 or the Home Report if in relation to a residential property in Scotland.
*This is the average speed from the provider with the fastest broadband package available at this postcode. The average speed displayed is based on the download speeds of at least 50% of customers at peak time (8pm to 10pm). Fibre/cable services at the postcode are subject to availability and may differ between properties within a postcode. Speeds can be affected by a range of technical and environmental factors. The speed at the property may be lower than that listed above. You can check the estimated speed and confirm availability to a property prior to purchasing on the broadband provider's website. Providers may increase charges. The information is provided and maintained by Decision Technologies Limited. **This is indicative only and based on a 2-person household with multiple devices and simultaneous usage. Broadband performance is affected by multiple factors including number of occupants and devices, simultaneous usage, router range etc. For more information speak to your broadband provider.
Map data ©OpenStreetMap contributors.






