45 - 47 London Street, Southport, Merseyside, PR9
- SIZE
Ask agent
- SECTOR
Commercial property for sale
Key features
- Prime mixed-use investment in Southport town centre
- The property is offered for sale subject to the existing leases and tenancies
- Double-fronted, self-contained ground floor unit let to Ladbrokes Betting & Gaming Ltd until November 2031 at £12,800 per annum
- Upper floors comprise 6 self-contained residential flats, currently producing £29,400 per annum.
- Total current rental income: £42,200 per annum
- Residential rents considered concessionary, with potential to increase to market levels
- All flats have gas central heating (except Flat 1A with electric heating)
- Full supporting documentation: safety certs, HMO licence, EPCs
- Freehold title
Description
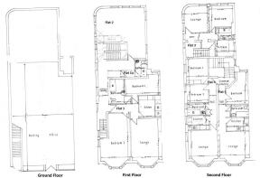
The ground floor comprises a double-fronted, self-contained commercial unit extending to approximately 143.5 sq.m (1,544 sq.ft) (source: VOA), currently occupied by Ladbrokes Betting & Gaming Ltd.
The upper floors provide six self-contained residential flats, accessed independently via a side entrance. The flats are separately metered for utilities, benefit from a valid HMO licence, and have appropriate safety certifications in place.
Brochures
45 - 47 London Street, Southport, Merseyside, PR9
NEAREST STATIONS
Distances are straight line measurements from the centre of the postcode- Southport Station0.0 miles
- Birkdale Station1.1 miles
- Meols Cop Station1.1 miles
Notes
Disclaimer - Property reference 2609FH. The information displayed about this property comprises a property advertisement. Rightmove.co.uk makes no warranty as to the accuracy or completeness of the advertisement or any linked or associated information, and Rightmove has no control over the content. This property advertisement does not constitute property particulars. The information is provided and maintained by Fitton Estates, Merseyside/Lancashire. Please contact the selling agent or developer directly to obtain any information which may be available under the terms of The Energy Performance of Buildings (Certificates and Inspections) (England and Wales) Regulations 2007 or the Home Report if in relation to a residential property in Scotland.
Map data ©OpenStreetMap contributors.





