
Rydal Court, Wrexham

- PROPERTY TYPE
Detached
- BEDROOMS
3
- BATHROOMS
1
- SIZE
1,033 sq ft
96 sq m
- TENUREDescribes how you own a property. There are different types of tenure - freehold, leasehold, and commonhold.Read more about tenure in our glossary page.
Freehold
Key features
- THREE BEDROOM DETACHED HOME
- CLOAKROOM W/C
- BRIGHT CONSERVATORY
- FITTED KITCHEN
- SOUTH-WESTERLY REAR GARDEN
- DETACHED GARAGE
- DOUBLE GLAZED WINDOWS AND GAS CENTRAL HEATING
- NO ONWARD CHAIN
Description
Outside, there’s a lawned front garden with block-paved parking and a garage, while the south-westerly facing rear garden is mainly lawn and patio.
Offered with no onward chain.
Description - Located within a quiet cul-de-sac offering convenient access to Wrexham City Centre, motorway links, and local amenities, this well-maintained three-bedroom home benefits from gas central heating and double-glazed windows. The accommodation includes an entrance vestibule, reception hall, cloakroom/WC, kitchen, living room, dining room, and conservatory. Upstairs offers three bedrooms and a family bathroom. Externally, the property features a lawned and shrubbed front garden with block-paved off-road parking leading to a single garage. The south-westerly facing rear garden is mainly lawned and paved, with external lighting, power, and water supply. Offered with no onward chain, this is an ideal opportunity for a variety of buyers.
Location - Forming part of a quiet cul-de-sac with convenient access to Wrexham City Centre, local motorway links, and a range of day-to-day amenities, this three-bedroom home is offered with no onward chain. Benefiting from gas central heating and double-glazed sealed unit windows, the property briefly comprises a vestibule, reception hall, cloakroom/WC, kitchen, living room, dining room, and conservatory. Upstairs, the first-floor landing leads to three bedrooms and a family bathroom.
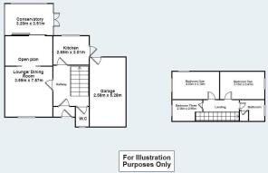
Vestibule - The property is entered via a UPVC front door, opening onto wood grain effect flooring and leading to a door that provides access to the reception hall.
Reception Hall - 3.00m x 1.68m (9'10 x 5'6) - The reception hall features a continuation of the wood grain effect flooring, a radiator, and stairs leading to the first-floor accommodation, with doors opening to the kitchen, living room, and cloakroom WC.
Cloakroom Wc - Fitted with a low-level WC and a wash hand basin, the cloakroom also features a ceramic tiled floor and an opaque window to the front elevation.
Living Room - 3.91m x 3.56m (12'10 x 11'8) - Featuring a window to the front elevation with a radiator beneath, this room also includes a living flame gas fire set on a marble hearth with an ornate Adam-style surround. An arched opening provides access to the dining room.
Dining Room - 2.79m x 2.59m (9'2 x 8'6) - Featuring wood grain effect flooring, a radiator, and a UPVC double glazed patio door that opens into the conservatory.
Conservatory - 3.89m x 3.10m (12'9 x 10'2) - Built on a low brick wall base with a UPVC double-glazed frame, an integrated skylight, French doors leading to the rear garden, and a ceramic tiled floor.
Kitchen - 2.79m x 2.57m (9'2 x 8'5) - Fitted with a range of white wall, base, and drawer units topped with work surfaces incorporating a stainless steel single drainer sink with mixer tap and tiled splashback. Integrated appliances include a stainless steel oven, hob, and extractor hood, with space and plumbing provided for a dishwasher. A window overlooks the rear elevation, and a single glazed door provides access to the rear garden.
First Floor Landing - Featuring a window to the side elevation and doors leading to all three bedrooms and the bathroom.
Bedroom One - 3.86m x 2.95m (12'8 x 9'8) - With windows to both the front and side elevations, and a radiator.
Bedroom Two - 3.25m x 3.00m (10'8 x 9'10) - Featuring a window to the rear elevation, a radiator, and access to the loft space.
Bedroom Three - 2.97m x 2.21m (9'9 x 7'3) - Includes an over-stairs storage cupboard with hanging space, a window to the front elevation, and a radiator.
Bathroom - 1.93m x 1.70m (6'4 x 5'7) - Featuring an airing cupboard and fitted with a three-piece suite comprising a panelled bath with electric shower over, low-level WC, and pedestal wash basin. The floor is finished with ceramic tiles, the walls are part-tiled, and there's a radiator and an opaque window to the rear elevation.
Externally Front - At the front of the property, there is a lawn and shrub garden complemented by brick block off-road parking, along with a canopy above the front door featuring a courtesy light.
Garage - 5.18m x 2.49m (17 x 8'2) - Accessed via a four-panel up-and-over garage door, the garage features pitched roof storage, power and lighting, along with a rear pedestrian access door.
Rear Garden - Enjoying a south-westerly aspect, the rear garden features both paved and lawned areas, enclosed by timber fence panels, and benefits from external lighting, power, and a water supply.
Viewings - Strictly by prior appointment with Town & Country Wrexham on .
To Make An Offer - If you would like to make an offer, please contact a member of our team who will assist you further.
Mortgage Advice - Town and Country can refer you to Gary Jones Mortgage Consultant who can offer you a full range of mortgage products and save you the time and inconvenience for trying to get the most competitive deal to meet your requirements. Gary Jones Mortgage Consultant deals with most major Banks and Building Societies and can look for the most competitive rates around to suit your needs. For more information contact the Wrexham office on .
Gary Jones Mortgage Consultant normally charges no fees, although depending on your circumstances a fee of up to 1.5% of the mortgage amount may be charged. Approval No. H110624
YOUR HOME MAY BE REPOSSESSED IF YOU DO NOT KEEP UP REPAYMENTS ON YOUR MORTGAGE.
Additional Information - We would like to point out that all measurements, floor plans and photographs are for guidance purposes only (photographs may be taken with a wide angled/zoom lens), and dimensions, shapes and precise locations may differ to those set out in these sales particulars which are approximate and intended for guidance purposes only.
Brochures
Rydal Court, WrexhamBrochure- COUNCIL TAXA payment made to your local authority in order to pay for local services like schools, libraries, and refuse collection. The amount you pay depends on the value of the property.Read more about council Tax in our glossary page.
- Band: D
- PARKINGDetails of how and where vehicles can be parked, and any associated costs.Read more about parking in our glossary page.
- Yes
- GARDENA property has access to an outdoor space, which could be private or shared.
- Yes
- ACCESSIBILITYHow a property has been adapted to meet the needs of vulnerable or disabled individuals.Read more about accessibility in our glossary page.
- Ask agent
Rydal Court, Wrexham
Add an important place to see how long it'd take to get there from our property listings.
__mins driving to your place
Explore area BETA
Wrexham
Get to know this area with AI-generated guides about local green spaces, transport links, restaurants and more.
Get an instant, personalised result:
- Show sellers you’re serious
- Secure viewings faster with agents
- No impact on your credit score



Your mortgage
Notes
Staying secure when looking for property
Ensure you're up to date with our latest advice on how to avoid fraud or scams when looking for property online.
Visit our security centre to find out moreDisclaimer - Property reference 34030107. The information displayed about this property comprises a property advertisement. Rightmove.co.uk makes no warranty as to the accuracy or completeness of the advertisement or any linked or associated information, and Rightmove has no control over the content. This property advertisement does not constitute property particulars. The information is provided and maintained by Town & Country Estate Agents, Wrexham. Please contact the selling agent or developer directly to obtain any information which may be available under the terms of The Energy Performance of Buildings (Certificates and Inspections) (England and Wales) Regulations 2007 or the Home Report if in relation to a residential property in Scotland.
*This is the average speed from the provider with the fastest broadband package available at this postcode. The average speed displayed is based on the download speeds of at least 50% of customers at peak time (8pm to 10pm). Fibre/cable services at the postcode are subject to availability and may differ between properties within a postcode. Speeds can be affected by a range of technical and environmental factors. The speed at the property may be lower than that listed above. You can check the estimated speed and confirm availability to a property prior to purchasing on the broadband provider's website. Providers may increase charges. The information is provided and maintained by Decision Technologies Limited. **This is indicative only and based on a 2-person household with multiple devices and simultaneous usage. Broadband performance is affected by multiple factors including number of occupants and devices, simultaneous usage, router range etc. For more information speak to your broadband provider.
Map data ©OpenStreetMap contributors.





