Manley Street, Ince, Wigan, WN3

- PROPERTY TYPE
Terraced
- BEDROOMS
2
- BATHROOMS
1
- SIZE
Ask agent
Key features
- TWO BEDROOMS
- CLOSE TO TOWN
- SOUGHT AFTER LOCATION
- FIRST TIME BUYERS
- INVESTORS
- NO CHAIN
- GARAGE
- EPC RATING D
Description
We are pleased to present this well-maintained two-bedroom mid-terraced property located on the popular Manley Street, Ince, Wigan – a fantastic opportunity for first-time buyers and investors alike.
Offered with no onward chain, this home is move-in ready and perfectly positioned close to local amenities, schools, and excellent transport links.
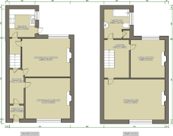
The ground floor comprises a welcoming entrance hallway, two spacious reception rooms, and a fitted kitchen. To the first floor, a central landing gives access to two generously sized double bedrooms and a modern family bathroom.
Externally, the property benefits from a rear yard with the added bonus of a garage, offering additional storage.
This is a fantastic opportunity to secure a ready-to-go property in a sought-after location – early viewing is highly recommended.
Ground Floor
Vestibule
1.03m x 0.95m
Laminate flooring, access into hallway.
Entrance Hallway
4.14m x 1.03m
Laminate flooring, central heating radiator, access into reception room one, access into reception room two, access to staircase to first floor.
Reception Room One
4.17m x 3.24m
UPVC Double glazed window, central heating radiator.
Reception Room Two
4.25m x 3.47m
UPVC Double glazed window, central heating radiator.
Kitchen
2.61m x 2.12m
UPVC Double glazed window, central heating radiator, vinyl flooring, door to rear yard. Kitchen is fitted with a mix of wall and base units with laminate surfaces and panel splash backs. integrated appliance include metallic sink with drainer and mixer tap, gas hob and oven.
First Floor
Landing
4.27m x 1.56m
Access into two bedrooms and family bathroom.
Bedroom One
4.41m x 4.2m
UPVC Double glazed window, central heating radiator.
Bedroom Two
4.25m x 2.71m
UPVC Double glazed window, central heating radiator.
Bathroom
2.65m x 2.1m
UPVC Double glazed window, central heating towel rail, vinyl flooring, walls partially tiled, boiler cupboard, bath with over head shower, wash basin and toilet.
External
Front
Front yard, on street parking.
Back
Enclosed rear yard, access to garage.
- COUNCIL TAXA payment made to your local authority in order to pay for local services like schools, libraries, and refuse collection. The amount you pay depends on the value of the property.Read more about council Tax in our glossary page.
- Band: A
- PARKINGDetails of how and where vehicles can be parked, and any associated costs.Read more about parking in our glossary page.
- Yes
- GARDENA property has access to an outdoor space, which could be private or shared.
- Yes
- ACCESSIBILITYHow a property has been adapted to meet the needs of vulnerable or disabled individuals.Read more about accessibility in our glossary page.
- Ask agent
Manley Street, Ince, Wigan, WN3
Add an important place to see how long it'd take to get there from our property listings.
__mins driving to your place
Get an instant, personalised result:
- Show sellers you’re serious
- Secure viewings faster with agents
- No impact on your credit score
Your mortgage
Notes
Staying secure when looking for property
Ensure you're up to date with our latest advice on how to avoid fraud or scams when looking for property online.
Visit our security centre to find out moreDisclaimer - Property reference KJY-24414896. The information displayed about this property comprises a property advertisement. Rightmove.co.uk makes no warranty as to the accuracy or completeness of the advertisement or any linked or associated information, and Rightmove has no control over the content. This property advertisement does not constitute property particulars. The information is provided and maintained by Thomas James Sales and Lettings, Wigan. Please contact the selling agent or developer directly to obtain any information which may be available under the terms of The Energy Performance of Buildings (Certificates and Inspections) (England and Wales) Regulations 2007 or the Home Report if in relation to a residential property in Scotland.
*This is the average speed from the provider with the fastest broadband package available at this postcode. The average speed displayed is based on the download speeds of at least 50% of customers at peak time (8pm to 10pm). Fibre/cable services at the postcode are subject to availability and may differ between properties within a postcode. Speeds can be affected by a range of technical and environmental factors. The speed at the property may be lower than that listed above. You can check the estimated speed and confirm availability to a property prior to purchasing on the broadband provider's website. Providers may increase charges. The information is provided and maintained by Decision Technologies Limited. **This is indicative only and based on a 2-person household with multiple devices and simultaneous usage. Broadband performance is affected by multiple factors including number of occupants and devices, simultaneous usage, router range etc. For more information speak to your broadband provider.
Map data ©OpenStreetMap contributors.




