
3 bedroom detached house for sale
Royle Road, Rochdale, OL11 3ET

- PROPERTY TYPE
Detached
- BEDROOMS
3
- SIZE
Ask developer
- TENUREDescribes how you own a property. There are different types of tenure - freehold, leasehold, and commonhold.Read more about tenure in our glossary page.
Freehold
Key features
- Open plan family/dining area with access to the garden
- Ready to move into
- Convenient downstairs cloakroom
- Nearby local schools
- Built-in storage space
- En-suite to bedroom 1
Description
The simply stunning three bedroom New Ashbourne features a master bedroom with ensuite shower room as well as two other well proportioned bedrooms. There is also a good sized family bathroom with a shower over the bath. Downstairs, you will find the stunning open plan kitchen/dining room with large French doors opening out onto the private rear garden. Over this room are three large skylight windows which bring in natural light whatever the weather. At the front of the house is a separate well proportioned living room featuring a large bay window with views to the side of the house. Adding to the convenience of this superb home is both a downstairs WC and under the stairs utility room with ample storage space. Adjoining the house is a very handy garage with full access to the rear garden.
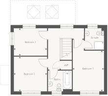
The floorplan has been produced for illustrative purposes only. Room sizes shown are between arrow points as indicated on plan. The dimensions have tolerances of + or -50mm and should not be used other than for general guidance. If specific dimensions are required, enquiries should be made to the sales consultant. The floorplans shown are not to scale. Measurements are based on the original drawings. Slight variations may occur during construction.
Room Dimensions
- Kitchen/Dining Room - 5.33M X 3.45M 17'6" X 11'4
- Living Room - 3.19M X 4.54M 10'5" X 14'11"
- Master Bedroom - 2.86M X 4.81M 9'5" X 15'9"
- Bedroom 2 - 3.06M X 3.20M 10' X 10'6"
- Bedroom 3 - 3.06M X 2.54M 10' X 8'4"
- COUNCIL TAXA payment made to your local authority in order to pay for local services like schools, libraries, and refuse collection. The amount you pay depends on the value of the property.Read more about council Tax in our glossary page.
- Ask developer
- PARKINGDetails of how and where vehicles can be parked, and any associated costs.Read more about parking in our glossary page.
- Yes
- GARDENA property has access to an outdoor space, which could be private or shared.
- Yes
- ACCESSIBILITYHow a property has been adapted to meet the needs of vulnerable or disabled individuals.Read more about accessibility in our glossary page.
- Ask developer
Energy performance certificate - ask developer
Royle Road, Rochdale, OL11 3ET
Add an important place to see how long it'd take to get there from our property listings.
__mins driving to your place
Get an instant, personalised result:
- Show sellers you’re serious
- Secure viewings faster with agents
- No impact on your credit score
About Vistry M & CE (Countryside)
Discover our stunning range of 3 and 4 bedroom homes in Rochdale.
Situated south of Rochdale town centre, this is a fantastic development of 96 high-specification 3 and 4 bedroom new build homes. It's excellently located, with convenient transport links to surrounding cities such as Manchester and Leeds, making this the perfect choice for professionals looking to commute as well as growing families and couples searching for the perfect new home.
Your mortgage
Notes
Staying secure when looking for property
Ensure you're up to date with our latest advice on how to avoid fraud or scams when looking for property online.
Visit our security centre to find out moreDisclaimer - Property reference 3_155. The information displayed about this property comprises a property advertisement. Rightmove.co.uk makes no warranty as to the accuracy or completeness of the advertisement or any linked or associated information, and Rightmove has no control over the content. This property advertisement does not constitute property particulars. The information is provided and maintained by Vistry M & CE (Countryside). Please contact the selling agent or developer directly to obtain any information which may be available under the terms of The Energy Performance of Buildings (Certificates and Inspections) (England and Wales) Regulations 2007 or the Home Report if in relation to a residential property in Scotland.
*This is the average speed from the provider with the fastest broadband package available at this postcode. The average speed displayed is based on the download speeds of at least 50% of customers at peak time (8pm to 10pm). Fibre/cable services at the postcode are subject to availability and may differ between properties within a postcode. Speeds can be affected by a range of technical and environmental factors. The speed at the property may be lower than that listed above. You can check the estimated speed and confirm availability to a property prior to purchasing on the broadband provider's website. Providers may increase charges. The information is provided and maintained by Decision Technologies Limited. **This is indicative only and based on a 2-person household with multiple devices and simultaneous usage. Broadband performance is affected by multiple factors including number of occupants and devices, simultaneous usage, router range etc. For more information speak to your broadband provider.
Map data ©OpenStreetMap contributors.






