
Millers Ford, Lower Bentham, Lancaster, North Yorkshire, LA2

- PROPERTY TYPE
Town House
- BEDROOMS
3
- BATHROOMS
2
- SIZE
1,302 sq ft
121 sq m
Key features
- Three bedroom townhouse
- Views to rear over River Wenning
- Dining kitchen with patio door out to garden
- Living room with patio door out to balcony
- House bathroom, master ensuite & downstairs wc
- Integral garage plus allocated parking & visitor parking
- Internal viewing highly advised to appreciate the size & setting
- Available with no onward chain
Description
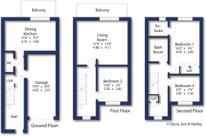
Entering through the part glazed front door is the main hallway, a welcoming space with space for coats and boots. The dining kitchen is straight ahead, a lovely light room with sliding patio door out to a balcony area and steps down to a private garden with drystone wall. The kitchen comes with a range of wall and base units, complementary worktop and a 1 1/2 stainless steel bowl sink with mixer tap. Appliances include a four ring gas hob, electric double oven and integrated fridge and dishwasher. There is ample space for a dining table and plumbing to house a washing machine. Space for further white goods can be found in the integral garage which has light, power and an up and over door to front. Also on the ground floor is a handy downstairs loo that is perfect for guest use.
Up on the first floor is the living room and one of three bedrooms. The living room faces the rear of the home and like the kitchen, has a sliding patio door leading out to a private balcony with glorious views over the River Wenning. Bedroom two is a good size double room with window to front.
Upstairs on the second floor are two further bedrooms, the house bathroom and a spacious landing with nook allowing space for storage of perhaps a home office. The master bedroom faces the rear of the home and benefits from those beautiful riverside views, built in wardrobes and an en suite comprising part tiled walls, shower cubicle, wash hand basin, wc and a frosted window to rear. Bedroom three is a good size single room with window to front. The house bathroom comprises part tiled walls, bath with shower over, wash hand basin, wc and extractor fan.
On the western edge of North Yorkshire, Low Bentham is well-located for Lancaster, Settle and Kirkby Lonsdale. The nearby market town of High Bentham offers an excellent range of amenities, including shops, bank, Post Office, pubs, bars and grocery stores, together with a Primary School, 18 hole golf course, Post Office and Doctors Surgery. Communication links are good with a railway station on the Leeds - Carnforth line, a bus service to Lancaster and Ingleton, the A65 is approximately 6 miles away and junction 34 of the M6 only 15 miles.
Services
Mains electricity, water, drainage and gas are installed. Domestic heating is from a gas central heating boiler.
Parking
Garage, allocated parking space plus visitor parking.
Tenure
Leasehold. 999 year lease from 1st January 2005.
Service charge payable of £113.00 per month which includes building insurance.
Council Tax
Band D
From the Settle office, enter Bentham and go up Main Street and onto Low Bentham. Go through Low Bentham Village, take a left turn over the bridge onto Mill Lane. Millers Ford is located on the left-hand side.
Brochures
Particulars- COUNCIL TAXA payment made to your local authority in order to pay for local services like schools, libraries, and refuse collection. The amount you pay depends on the value of the property.Read more about council Tax in our glossary page.
- Band: D
- PARKINGDetails of how and where vehicles can be parked, and any associated costs.Read more about parking in our glossary page.
- Off street,Allocated
- GARDENA property has access to an outdoor space, which could be private or shared.
- Yes
- ACCESSIBILITYHow a property has been adapted to meet the needs of vulnerable or disabled individuals.Read more about accessibility in our glossary page.
- Ask agent
Millers Ford, Lower Bentham, Lancaster, North Yorkshire, LA2
Add an important place to see how long it'd take to get there from our property listings.
__mins driving to your place
Get an instant, personalised result:
- Show sellers you’re serious
- Secure viewings faster with agents
- No impact on your credit score
Your mortgage
Notes
Staying secure when looking for property
Ensure you're up to date with our latest advice on how to avoid fraud or scams when looking for property online.
Visit our security centre to find out moreDisclaimer - Property reference SET250134. The information displayed about this property comprises a property advertisement. Rightmove.co.uk makes no warranty as to the accuracy or completeness of the advertisement or any linked or associated information, and Rightmove has no control over the content. This property advertisement does not constitute property particulars. The information is provided and maintained by Dacre Son & Hartley, Settle. Please contact the selling agent or developer directly to obtain any information which may be available under the terms of The Energy Performance of Buildings (Certificates and Inspections) (England and Wales) Regulations 2007 or the Home Report if in relation to a residential property in Scotland.
*This is the average speed from the provider with the fastest broadband package available at this postcode. The average speed displayed is based on the download speeds of at least 50% of customers at peak time (8pm to 10pm). Fibre/cable services at the postcode are subject to availability and may differ between properties within a postcode. Speeds can be affected by a range of technical and environmental factors. The speed at the property may be lower than that listed above. You can check the estimated speed and confirm availability to a property prior to purchasing on the broadband provider's website. Providers may increase charges. The information is provided and maintained by Decision Technologies Limited. **This is indicative only and based on a 2-person household with multiple devices and simultaneous usage. Broadband performance is affected by multiple factors including number of occupants and devices, simultaneous usage, router range etc. For more information speak to your broadband provider.
Map data ©OpenStreetMap contributors.






