
2 bedroom terraced house for sale
Dean Street, Crediton, EX17

- PROPERTY TYPE
Terraced
- BEDROOMS
2
- BATHROOMS
1
- SIZE
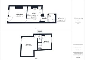
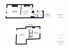
549 sq ft
51 sq m
- TENUREDescribes how you own a property. There are different types of tenure - freehold, leasehold, and commonhold.Read more about tenure in our glossary page.
Freehold
Key features
- Two bedroom town cottage
- Historic, characterful location
- Garden to rear
- Close to town amenities
- Ground floor bathroom
- Electric Fisher heaters and double glazing
- Council tax B
- No chain
Description
One of the oldest streets in the town, Dean Street is home to plenty of character cottages whilst having easy access to the town’s amenities. It’s ideally situated for schools, bus routes and the busy High Street.
The cottage is somewhat traditional with a two floor layout. The front door brings you into the cosy living room and through to the kitchen/breakfast room at the rear. The bathroom is also on the ground floor, not unusual for a cottage of this age. On the first floor are the two bedrooms. There’s electric fisher heaters (installed 2017), fully insulated loft, electric water heater with timer (located in the smaller bedroom), recently fitted double glazing and being terraced, it’s well insulated by its adjoining neighbours.
Outside to the rear, a pathway leads to a slightly off-set garden (it sits behind a neighbouring home) but gives excellent outside space with room to sit out, grow some veggies and there’s a garden shed too (needs replacing soon). There’s no parking with the cottage but there is parking available on the streets nearby and a footpath connects to Cockles Rise meaning more nearby parking without a huge walk.
Buyers' Compliance Fee Notice
Please note that a compliance check fee of £25 (inc. VAT) per person is payable once your offer is accepted. This non-refundable fee covers essential ID verification and anti-money laundering checks, as required by law.
Please see the floorplan for room sizes.
Current Council Tax: Band B – Mid Devon
Approx Age: 1800
Construction Notes: Cob/Stone
Utilities: Mains electric, water, telephone & broadband
Drainage: Mains
Heating: Electric Fisher heaters
Listed: No
Conservation Area: Yes
Tenure: Freehold
Crediton is a vibrant market town with a bustling high street full of independent shops, eateries, and pubs. In recent years a diverse arts scene has grown to include all manner of mediums, with the performing arts making use of the town’s market square where, in the summer months, a range of activities take place. The market square is also home to the town’s twice-monthly farmer’s market. The town has an equally significant past. It was originally the first Bishopric in Devon and the imposing Parish Church of The Holy Cross now stands where once stood Devon’s first Saxon cathedral (909-1050AD). It is also the birthplace of Saint Boniface, one of the founding fathers of the Christian church in Europe. Easily commutable to Exeter and with two primary schools, a secondary school with sixth form as well as a wide range of necessary amenities, it’s clear why the town is a firm favourite with locals and relocators alike.
DIRECTIONS : For sat-nav use EX17 3EW and the What3Words address is ///harshest.copycat.decimal but if you want the traditional directions, please read on.
From the High Street in Crediton, proceed as if heading to Exeter and turn right opposite the main church into Dean Street and the property will be found on your right.
EPC Rating: E
Brochures
Property Brochure- COUNCIL TAXA payment made to your local authority in order to pay for local services like schools, libraries, and refuse collection. The amount you pay depends on the value of the property.Read more about council Tax in our glossary page.
- Band: B
- PARKINGDetails of how and where vehicles can be parked, and any associated costs.Read more about parking in our glossary page.
- Ask agent
- GARDENA property has access to an outdoor space, which could be private or shared.
- Private garden
- ACCESSIBILITYHow a property has been adapted to meet the needs of vulnerable or disabled individuals.Read more about accessibility in our glossary page.
- Ask agent
Dean Street, Crediton, EX17
Add an important place to see how long it'd take to get there from our property listings.
__mins driving to your place
Get an instant, personalised result:
- Show sellers you’re serious
- Secure viewings faster with agents
- No impact on your credit score
Your mortgage
Notes
Staying secure when looking for property
Ensure you're up to date with our latest advice on how to avoid fraud or scams when looking for property online.
Visit our security centre to find out moreDisclaimer - Property reference c0214c4b-09b4-4f01-aaf2-9fa3a035f2d8. The information displayed about this property comprises a property advertisement. Rightmove.co.uk makes no warranty as to the accuracy or completeness of the advertisement or any linked or associated information, and Rightmove has no control over the content. This property advertisement does not constitute property particulars. The information is provided and maintained by Helmores, Crediton. Please contact the selling agent or developer directly to obtain any information which may be available under the terms of The Energy Performance of Buildings (Certificates and Inspections) (England and Wales) Regulations 2007 or the Home Report if in relation to a residential property in Scotland.
*This is the average speed from the provider with the fastest broadband package available at this postcode. The average speed displayed is based on the download speeds of at least 50% of customers at peak time (8pm to 10pm). Fibre/cable services at the postcode are subject to availability and may differ between properties within a postcode. Speeds can be affected by a range of technical and environmental factors. The speed at the property may be lower than that listed above. You can check the estimated speed and confirm availability to a property prior to purchasing on the broadband provider's website. Providers may increase charges. The information is provided and maintained by Decision Technologies Limited. **This is indicative only and based on a 2-person household with multiple devices and simultaneous usage. Broadband performance is affected by multiple factors including number of occupants and devices, simultaneous usage, router range etc. For more information speak to your broadband provider.
Map data ©OpenStreetMap contributors.







