Wentworth Terrace, Wakefield, West Yorkshire

Letting details
- Let available date:
- 01/12/2025
- Deposit:
- £1,961A deposit provides security for a landlord against damage, or unpaid rent by a tenant.Read more about deposit in our glossary page.
- Min. Tenancy:
- Ask agent How long the landlord offers to let the property for.Read more about tenancy length in our glossary page.
- Let type:
- Long term
- Furnish type:
- Unfurnished
- Council Tax:
- Ask agent
- PROPERTY TYPE
Town House
- BEDROOMS
3
- BATHROOMS
2
- SIZE
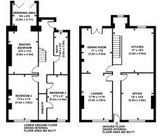
1,981 sq ft
184 sq m
Key features
- Prestigious St Johns Location
- Three Reception Rooms
- Electric Gates
- Parking for 2 Cars
- Stunning Kitchen with Built in Appliances
- Master Bedroom with Dressing Area
- Close to Wakefield Westgate Station
Description
The home is part of an elegant two-floor conversion, filled with character and period charm. Upon entering, an impressive hallway leads to a bright & spacious office, offering a peaceful space for working from home with stunning tree lined views. Beyond, a spacious through lounge and dining room provides a seamless flow, perfect for entertaining or relaxing in comfort, with an abundant of natural light.
The kitchen is well-appointed, featuring integrated appliances and ample workspace, making it both practical and stylish with a versatile island with integrated hob and dishwasher, complemented by breakfast bar seating.
The lower ground floor boasts a charming master bedroom, with a designated dressing area, and doors leading out to a terrace area. A contemporary bathroom adds a touch of luxury, and two generously sized bedrooms, one with ensuite perfectly finishes this stunning offering.
Externally the property can be accessed via electric gates and offers two parking spaces offering a high level of security and convenience in such a central location.
The Location
The property is perfectly located for access to Wakefield Westgate Station where you can be in London within 2 hours perfect for commuting. The central location means the property is perfectly placed for enjoying the vibrant social and dining scene of the area.
- COUNCIL TAXA payment made to your local authority in order to pay for local services like schools, libraries, and refuse collection. The amount you pay depends on the value of the property.Read more about council Tax in our glossary page.
- Ask agent
- PARKINGDetails of how and where vehicles can be parked, and any associated costs.Read more about parking in our glossary page.
- Yes
- GARDENA property has access to an outdoor space, which could be private or shared.
- Ask agent
- ACCESSIBILITYHow a property has been adapted to meet the needs of vulnerable or disabled individuals.Read more about accessibility in our glossary page.
- Ask agent
Wentworth Terrace, Wakefield, West Yorkshire
Add an important place to see how long it'd take to get there from our property listings.
__mins driving to your place
Notes
Staying secure when looking for property
Ensure you're up to date with our latest advice on how to avoid fraud or scams when looking for property online.
Visit our security centre to find out moreDisclaimer - Property reference TLG-35071920. The information displayed about this property comprises a property advertisement. Rightmove.co.uk makes no warranty as to the accuracy or completeness of the advertisement or any linked or associated information, and Rightmove has no control over the content. This property advertisement does not constitute property particulars. The information is provided and maintained by LET BY KATE, Covering Wakefield & Surrounding. Please contact the selling agent or developer directly to obtain any information which may be available under the terms of The Energy Performance of Buildings (Certificates and Inspections) (England and Wales) Regulations 2007 or the Home Report if in relation to a residential property in Scotland.
*This is the average speed from the provider with the fastest broadband package available at this postcode. The average speed displayed is based on the download speeds of at least 50% of customers at peak time (8pm to 10pm). Fibre/cable services at the postcode are subject to availability and may differ between properties within a postcode. Speeds can be affected by a range of technical and environmental factors. The speed at the property may be lower than that listed above. You can check the estimated speed and confirm availability to a property prior to purchasing on the broadband provider's website. Providers may increase charges. The information is provided and maintained by Decision Technologies Limited. **This is indicative only and based on a 2-person household with multiple devices and simultaneous usage. Broadband performance is affected by multiple factors including number of occupants and devices, simultaneous usage, router range etc. For more information speak to your broadband provider.
Map data ©OpenStreetMap contributors.




