Willenhall, Walsall
- PROPERTY TYPE
Land
- SIZE
Ask agent
Key features
- Full Planning Approval
- Surplus Domestic Land
- Contempory Residential Development Opportunity
- Freehold
- Direct vehicular and pedestrian access off Coltham Road
- Easy roadside viewing available
Description
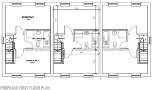
Planning Permission:
Planning permission has been granted for the construction of six high-quality residential dwellings, arranged in two blocks of three terraced houses. The scheme includes private parking and landscaping provisions.
Current Site:
The site covers an area of approximately 1006 sqm and is enclosed by residential properties on the flanks and rear. Vehicular and pedestrian access is from the south via Coltham Road. The land currently consists of surplus domestic garaging and amenity space, with a mixture of vegetation and hardstanding areas.
Location:
The site is situated 4.3 miles northwest of Walsall Town Centre. It lies near the district boundaries of South Staffordshire and Wolverhampton. With good access to the A4124 Lichfield Road and the A462, the site benefits from strong transport links, both public and private.
Viewings:
Easy roadside access for viewings.
Documents Available Upon Request:
Brochure
Link to Planning Documents
GDV (Gross Development Value)
Approval & Conditions
Design & Access Statement
Coal Mining & Borehole Report
Willenhall, Walsall
NEAREST STATIONS
Distances are straight line measurements from the centre of the postcode- Bloxwich Station1.3 miles
- Bloxwich North Station1.5 miles
- Walsall Station2.6 miles
Notes
Disclaimer - Property reference f79a904a-a2d4-4eaa-a01d-2b314d0ef20e. The information displayed about this property comprises a property advertisement. Rightmove.co.uk makes no warranty as to the accuracy or completeness of the advertisement or any linked or associated information, and Rightmove has no control over the content. This property advertisement does not constitute property particulars. The information is provided and maintained by Allen Heritage, Shirley. Please contact the selling agent or developer directly to obtain any information which may be available under the terms of The Energy Performance of Buildings (Certificates and Inspections) (England and Wales) Regulations 2007 or the Home Report if in relation to a residential property in Scotland.
Map data ©OpenStreetMap contributors.









