
5 bedroom detached house for sale
Leopard Lane, Purley On Thames, Reading
- PROPERTY TYPE
Detached
- BEDROOMS
5
- BATHROOMS
2
- SIZE
1,750 sq ft
163 sq m
- TENUREDescribes how you own a property. There are different types of tenure - freehold, leasehold, and commonhold.Read more about tenure in our glossary page.
Freehold
Key features
- Brand new home - Ready to move into!
- Sales Suite open Saturday and Sunday 10am to 5pm
- Last five bedroom home at Magna Gardens
- Kitchen with Siemens appliances included
- Landscaped front garden
- Solar PV panels for all water heating
- Underfloor heating to ground floor
- Electric car charging point
- Garage and 3 parking spaces
- EPC rating B
Description
Last opportunity to purchase a 5 bedroom home!
This house is an ideal family home, featuring an open-plan family, dining, and kitchen area with bi-fold doors leading out to a large garden boasting stunning views of the countryside hills, as well as a separate, spacious living room. On the first floor, three of the four bedrooms are generous doubles with built-in wardrobes, and bedroom one includes an en-suite shower room in addition to the main family bathroom. The second floor can serve as a fifth bedroom or a spacious study, complete with ample eaves storage. There is an attached garage to the side of the house.
Magna Gardens offers an enviable quality of life in the sought-after riverside village of Purley. Family-friendly facilities, stunning countryside on your doorstep and a welcoming community make Purley on Thames an idyllic location. Reading Station is a 14-minute drive away and offers both National Rail and Elizabeth Line services direct to London Paddington in as little as 23 minutes.
Weekday appointments available by appointment only.
*Subject to Terms and Conditions. Please note external image is digitally enhanced and some internal images are digitally dressed and others are of show home and all are for indicative purposes only.
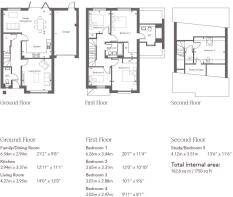
Family/Dining Room
6.53m x 2.95m
Open plan family/dining area with bi-fold doors out to the garden.
Kitchen
3.94m x 3.38m
Shaker style kitchen units featuring soft closing doors and drawers. Quartz worktops with matching quartz upstands and splashbacks. Gas hob. Glass and stainless steel extractor hood. Siemens fan assisted single oven, Siemens microwave, integrated full height fridge/freezer and integrated dishwasher. Stainless steel sink to kitchen with chrome mixer tap. Stylish LED feature lighting to the underside of the wall units. Recessed LED downlights to kitchen.
Living Room
4.27m x 3.96m
Front aspect living room on the ground floor.
Bedroom 1
6.25m x 3.43m
Rear aspect double bedroom located on the first floor with a fitted wardrobe and en suite shower room.
En suite
Ideal standard white porcelain sanitaryware with soft closing toilet seats. Contemporary chrome ironmongery throughout. Thermostatically controlled shower with a low profile shower tray. Toughened glass and stainless steel shower enclosures. Luxury Minoli tiles to floors and part feature walls. Mirror over basin. Chrome heated towel rail. Recessed LED downlights. Extractor fans with delayed cut off. Underfloor heating to en suite.
Bedroom 2
3.66m x 3.3m
Front aspect double bedroom with a fitted wardrobe located on the first floor.
Bedroom 3
3.07m x 2.87m
Rear aspect double bedroom located on the first floor.
Bedroom 4
3.02m x 2.46m
Front aspect single bedroom located on the first floor.
Bathroom
Ideal standard white porcelain sanitaryware with soft closing toilet seats. Contemporary chrome ironmongery throughout. Thermostatically controlled shower. Toughened glass and stainless steel shower enclosures. Luxury Minoli tiles to floors and part feature walls. Full height tiling around bath. Mirror over basin. Chrome heated towel rail. Recessed LED downlights. Extractor fans with delayed cut off.
Bedroom 5
4.11m x 3.5m
Double bedroom located on the second floor.
Brochures
Particulars- COUNCIL TAXA payment made to your local authority in order to pay for local services like schools, libraries, and refuse collection. The amount you pay depends on the value of the property.Read more about council Tax in our glossary page.
- Band: TBC
- PARKINGDetails of how and where vehicles can be parked, and any associated costs.Read more about parking in our glossary page.
- Yes
- GARDENA property has access to an outdoor space, which could be private or shared.
- Yes
- ACCESSIBILITYHow a property has been adapted to meet the needs of vulnerable or disabled individuals.Read more about accessibility in our glossary page.
- Ask agent
Leopard Lane, Purley On Thames, Reading
Add an important place to see how long it'd take to get there from our property listings.
__mins driving to your place
Get an instant, personalised result:
- Show sellers you’re serious
- Secure viewings faster with agents
- No impact on your credit score

Your mortgage
Notes
Staying secure when looking for property
Ensure you're up to date with our latest advice on how to avoid fraud or scams when looking for property online.
Visit our security centre to find out moreDisclaimer - Property reference NEW250423. The information displayed about this property comprises a property advertisement. Rightmove.co.uk makes no warranty as to the accuracy or completeness of the advertisement or any linked or associated information, and Rightmove has no control over the content. This property advertisement does not constitute property particulars. The information is provided and maintained by Romans, New Homes. Please contact the selling agent or developer directly to obtain any information which may be available under the terms of The Energy Performance of Buildings (Certificates and Inspections) (England and Wales) Regulations 2007 or the Home Report if in relation to a residential property in Scotland.
*This is the average speed from the provider with the fastest broadband package available at this postcode. The average speed displayed is based on the download speeds of at least 50% of customers at peak time (8pm to 10pm). Fibre/cable services at the postcode are subject to availability and may differ between properties within a postcode. Speeds can be affected by a range of technical and environmental factors. The speed at the property may be lower than that listed above. You can check the estimated speed and confirm availability to a property prior to purchasing on the broadband provider's website. Providers may increase charges. The information is provided and maintained by Decision Technologies Limited. **This is indicative only and based on a 2-person household with multiple devices and simultaneous usage. Broadband performance is affected by multiple factors including number of occupants and devices, simultaneous usage, router range etc. For more information speak to your broadband provider.
Map data ©OpenStreetMap contributors.





