
Clayhill Field, Wigston
- PROPERTY TYPE
Detached
- BEDROOMS
3
- BATHROOMS
2
- SIZE
1,045 sq ft
97 sq m
- TENUREDescribes how you own a property. There are different types of tenure - freehold, leasehold, and commonhold.Read more about tenure in our glossary page.
Freehold
Key features
- Detached 'Eskdale' Family Home
- Garage & Driveway
- Downstairs WC & Ensuite Shower Room
- Three Good Size Bedrooms
- Rear Garden With Mature Fruit Trees
- Sought After Location
- Viewings Highly Advised
- Council Tax Band - D
- Freehold Propery
- EPC Rating - B
Description
As you step inside, the entrance hall leads to a bright and airy lounge with patio doors opening directly onto the rear garden. This room feels spacious yet cosy, making it ideal for both family time and relaxation. On the opposite side, the spacious kitchen diner provides ample storage, integrated appliances and room for a large dining table. Patio doors from here also lead into the rear garden, creating a seamless flow between indoor and outdoor living. A modern downstairs WC completes the ground floor.
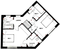
Upstairs, the home continues to impress with a spacious landing leading to three well-proportioned bedrooms. The main bedroom is generous in size and benefits from its own en-suite shower room. The second bedroom is another bright and spacious double, while the third bedroom is currently used as a home office but works equally well as a single bedroom or nursery.
The rear garden has been thoughtfully landscaped to feel like a private oasis. It features a sheltered seating area, a paved section and a lawn with fruit trees, offering a wonderful mix of relaxation and greenery. To the front of the property, there is excellent kerb appeal with a neat front garden, a driveway and a garage.
Life on Clayhill Field is about more than just the house. The development has a strong sense of community, with residents enjoying organised walks, runs, kayaking days and even a shared allotment where neighbours can meet and grow together.
This home combines modern family living with a fantastic location and a community feel, making it an excellent choice for anyone looking to settle in Wigston.
Clayhill Field enjoys a sought-after position in Wigston, just a few miles from Leicester city centre with excellent transport links via South Wigston station. The area is well served by a range of local shops, cafés and everyday amenities, along with highly regarded schools including Glenmere, Little Hill and Wigston Academy. For leisure, residents can enjoy picturesque countryside walks and scenic routes along the Grand Union Canal, making this a perfect location for families and professionals alike.
Entrance Hall -
Living Room - 5.23m x 3.33m (17'2 x 10'11) -
Kitchen Diner - 5.23m x 4.83m (17'2 x 15'10) -
Downstairs Wc - 1.42m x 1.47m (4'8 x 4'10) -
Bedroom One - 4.88m;3.35m x 4.01m (16;11 x 13'2) -
En-Suite - 2.49m x 1.93m (8'2 x 6'4) -
Bedroom Two - 3.96m x 3.78m (13 x 12'5) -
Bedroom Three - 2.31m x 2.21m (7'7 x 7'3) -
Family Bathroom - 1.85m x 2.11m (6'1 x 6'11) -
Detached Garage -
Brochures
Clayhill Field, Wigston- COUNCIL TAXA payment made to your local authority in order to pay for local services like schools, libraries, and refuse collection. The amount you pay depends on the value of the property.Read more about council Tax in our glossary page.
- Ask agent
- PARKINGDetails of how and where vehicles can be parked, and any associated costs.Read more about parking in our glossary page.
- Yes
- GARDENA property has access to an outdoor space, which could be private or shared.
- Yes
- ACCESSIBILITYHow a property has been adapted to meet the needs of vulnerable or disabled individuals.Read more about accessibility in our glossary page.
- Ask agent
Clayhill Field, Wigston
Add an important place to see how long it'd take to get there from our property listings.
__mins driving to your place
Get an instant, personalised result:
- Show sellers you’re serious
- Secure viewings faster with agents
- No impact on your credit score
Your mortgage
Notes
Staying secure when looking for property
Ensure you're up to date with our latest advice on how to avoid fraud or scams when looking for property online.
Visit our security centre to find out moreDisclaimer - Property reference 34157496. The information displayed about this property comprises a property advertisement. Rightmove.co.uk makes no warranty as to the accuracy or completeness of the advertisement or any linked or associated information, and Rightmove has no control over the content. This property advertisement does not constitute property particulars. The information is provided and maintained by Nestegg Properties, Wigston & Aylestone. Please contact the selling agent or developer directly to obtain any information which may be available under the terms of The Energy Performance of Buildings (Certificates and Inspections) (England and Wales) Regulations 2007 or the Home Report if in relation to a residential property in Scotland.
*This is the average speed from the provider with the fastest broadband package available at this postcode. The average speed displayed is based on the download speeds of at least 50% of customers at peak time (8pm to 10pm). Fibre/cable services at the postcode are subject to availability and may differ between properties within a postcode. Speeds can be affected by a range of technical and environmental factors. The speed at the property may be lower than that listed above. You can check the estimated speed and confirm availability to a property prior to purchasing on the broadband provider's website. Providers may increase charges. The information is provided and maintained by Decision Technologies Limited. **This is indicative only and based on a 2-person household with multiple devices and simultaneous usage. Broadband performance is affected by multiple factors including number of occupants and devices, simultaneous usage, router range etc. For more information speak to your broadband provider.
Map data ©OpenStreetMap contributors.