20 Crawriggs Avenue, Kirkintilloch, Glasgow, G66

- PROPERTY TYPE
Semi-Detached
- BEDROOMS
2
- BATHROOMS
1
- SIZE
Ask agent
- TENUREDescribes how you own a property. There are different types of tenure - freehold, leasehold, and commonhold.Read more about tenure in our glossary page.
Freehold
Key features
- Semi detached villa
- Large corner plot
- Two double bedrooms
- Large driveway
- Gardens to front, side and rear
- Close to local amenities
Description
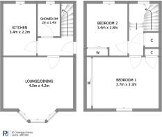
The property is entered via a side door through to an entrance hallway with stairway off to the upper landing and access off to all ground floor apartments. The lounge is an appealing room with a bay frontage, the room is comfortably large enough for both lounge and dining furniture. The property further features a stylish modern kitchen. The kitchen benefits of an electric oven, hob, cooker hood and fridge freezer. Also on the ground floor is a well-appointed shower room with vanity storage. The stairway leads to the upper landing with a hatch over to an attic storage space, additional fitted storage cupboard and access off to two generous double bedrooms.
Externally, the property benefits from a large corner plot with gardens to the front side and rear. The gardens are neatly presented and are largely laid to lawn with a patio in the rear gardens. A large driveway allows for off street parking.
The property sits in this quiet residential location close to all local amenities. Kirkintilloch town centre is only a short distance away and offers a wide range of amenities including schools at both primary and secondary levels, shop, supermarkets, parks, museum and a range of popular bars and restaurants. In addition to this, there are excellent road links close by giving easy access to Glasgow City Centre and the Central Belt motorway network system.
The Energy Performance Rating is C.
- COUNCIL TAXA payment made to your local authority in order to pay for local services like schools, libraries, and refuse collection. The amount you pay depends on the value of the property.Read more about council Tax in our glossary page.
- Ask agent
- PARKINGDetails of how and where vehicles can be parked, and any associated costs.Read more about parking in our glossary page.
- Driveway
- GARDENA property has access to an outdoor space, which could be private or shared.
- Yes
- ACCESSIBILITYHow a property has been adapted to meet the needs of vulnerable or disabled individuals.Read more about accessibility in our glossary page.
- Ask agent
Energy performance certificate - ask agent
20 Crawriggs Avenue, Kirkintilloch, Glasgow, G66
Add an important place to see how long it'd take to get there from our property listings.
__mins driving to your place
Get an instant, personalised result:
- Show sellers you’re serious
- Secure viewings faster with agents
- No impact on your credit score
Your mortgage
Notes
Staying secure when looking for property
Ensure you're up to date with our latest advice on how to avoid fraud or scams when looking for property online.
Visit our security centre to find out moreDisclaimer - Property reference 9a8e884a-4902-e359-ed5d-689cad30d533. The information displayed about this property comprises a property advertisement. Rightmove.co.uk makes no warranty as to the accuracy or completeness of the advertisement or any linked or associated information, and Rightmove has no control over the content. This property advertisement does not constitute property particulars. The information is provided and maintained by Pacitti Jones, Lenzie. Please contact the selling agent or developer directly to obtain any information which may be available under the terms of The Energy Performance of Buildings (Certificates and Inspections) (England and Wales) Regulations 2007 or the Home Report if in relation to a residential property in Scotland.
*This is the average speed from the provider with the fastest broadband package available at this postcode. The average speed displayed is based on the download speeds of at least 50% of customers at peak time (8pm to 10pm). Fibre/cable services at the postcode are subject to availability and may differ between properties within a postcode. Speeds can be affected by a range of technical and environmental factors. The speed at the property may be lower than that listed above. You can check the estimated speed and confirm availability to a property prior to purchasing on the broadband provider's website. Providers may increase charges. The information is provided and maintained by Decision Technologies Limited. **This is indicative only and based on a 2-person household with multiple devices and simultaneous usage. Broadband performance is affected by multiple factors including number of occupants and devices, simultaneous usage, router range etc. For more information speak to your broadband provider.
Map data ©OpenStreetMap contributors.