
4 bedroom detached house for sale
Leweston, Sherborne, Dorset

- PROPERTY TYPE
Detached
- BEDROOMS
4
- BATHROOMS
3
- SIZE
3,108 sq ft
289 sq m
- TENUREDescribes how you own a property. There are different types of tenure - freehold, leasehold, and commonhold.Read more about tenure in our glossary page.
Freehold
Key features
- Period origins with stunning contemporary extension
- Over 3000 sq ft of accommodation
- Fantastic far-reaching views to the west
- Private location
- Easy access to Sherborne
- PP to convert outbuilding to annexe
- Gardens of about 1.36 acres
Description
The Dwelling - White Roses occupies a fabulous elevated and secluded, rural position with glorious countryside views on the north western edge of the Leweston School grounds. The house which dates back to 1810 has spacious accommodation arranged over two floors and an appealing mix of character, period charm, together with a striking and substantial contemporary single storey extension. The house was recently rendered with Nano silicone render with 110-120mm external insulation added in 2024 with cement board. In November 2025 Planning Permission was granted for the conversion of outbuilding to a Granny annexe.
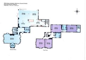
Accommodation - See floor plan
Ground floor - Hall, sitting room, office, Kitchen/dining/living room, cloakroom.
First floor - 4 double bedrooms, 2 bath/shower rooms.
Outside - The property is found at the end of a long drive in the grounds of Leweston School. Outside are circa 1.36 acres of landscaped gardens that wrap around the house, together with a private drive, parking and a useful barn with planning permission to convert to a Granny annexe - P/HOU/2025/02417.
Situation - White Roses sits at the end of the Leweston School drive and is very private and secure. The school offers a range of facilities for residents including a cafe, use of the swimming pool and many social events. The house looks out at the village of Lillington which has a pretty Church and excellent community. About 1.6 miles away lies the village of Longburton with The Rose and Crown pub and the pretty Church of St James. The village offers a strong community spirit with a pub, village hall, and parish church. Just four miles south of Sherborne, Longburton benefits from easy access to the town’s excellent amenities, including independent shops, supermarkets and well-regarded private schools. Sherborne also offers a direct train service to London Waterloo (2.5 hours), with a faster route to Paddington from Castle Cary (90 minutes). Yeovil (8 miles) and Dorchester (15 miles) provide further amenities, and Bournemouth, Bristol, and Exeter Airports are all within reach.
Directions - What 3 words ///overt.covert.lonely
Services - Mains electricity and water are connected to the property. Private drainage. Oil fired central heating.
Material Information - Standard & ultrafast broadband is available.
There is mobile coverage in the area, please refer to Ofcom’s website for more details.
(Ofcom
Council Tax Band: D
Rights of Way: Right of Access through Leweston School.
Brochures
White Roses - WEB.pdf- COUNCIL TAXA payment made to your local authority in order to pay for local services like schools, libraries, and refuse collection. The amount you pay depends on the value of the property.Read more about council Tax in our glossary page.
- Band: D
- PARKINGDetails of how and where vehicles can be parked, and any associated costs.Read more about parking in our glossary page.
- Yes
- GARDENA property has access to an outdoor space, which could be private or shared.
- Yes
- ACCESSIBILITYHow a property has been adapted to meet the needs of vulnerable or disabled individuals.Read more about accessibility in our glossary page.
- Ask agent
Leweston, Sherborne, Dorset
Add an important place to see how long it'd take to get there from our property listings.
__mins driving to your place
Get an instant, personalised result:
- Show sellers you’re serious
- Secure viewings faster with agents
- No impact on your credit score
About Symonds & Sampson, Sturminster Newton
Agriculture House, Market Place, Sturminster Newton, DT10 1AR




Your mortgage
Notes
Staying secure when looking for property
Ensure you're up to date with our latest advice on how to avoid fraud or scams when looking for property online.
Visit our security centre to find out moreDisclaimer - Property reference 34158002. The information displayed about this property comprises a property advertisement. Rightmove.co.uk makes no warranty as to the accuracy or completeness of the advertisement or any linked or associated information, and Rightmove has no control over the content. This property advertisement does not constitute property particulars. The information is provided and maintained by Symonds & Sampson, Sturminster Newton. Please contact the selling agent or developer directly to obtain any information which may be available under the terms of The Energy Performance of Buildings (Certificates and Inspections) (England and Wales) Regulations 2007 or the Home Report if in relation to a residential property in Scotland.
*This is the average speed from the provider with the fastest broadband package available at this postcode. The average speed displayed is based on the download speeds of at least 50% of customers at peak time (8pm to 10pm). Fibre/cable services at the postcode are subject to availability and may differ between properties within a postcode. Speeds can be affected by a range of technical and environmental factors. The speed at the property may be lower than that listed above. You can check the estimated speed and confirm availability to a property prior to purchasing on the broadband provider's website. Providers may increase charges. The information is provided and maintained by Decision Technologies Limited. **This is indicative only and based on a 2-person household with multiple devices and simultaneous usage. Broadband performance is affected by multiple factors including number of occupants and devices, simultaneous usage, router range etc. For more information speak to your broadband provider.
Map data ©OpenStreetMap contributors.





