
Panther Quay, Kingston Upon Thames, KT1

- PROPERTY TYPE
House Boat
- BEDROOMS
3
- BATHROOMS
2
- SIZE
1,472 sq ft
137 sq m
- TENUREDescribes how you own a property. There are different types of tenure - freehold, leasehold, and commonhold.Read more about tenure in our glossary page.
Freehold
Key features
- 3 Bedrooms
- 2 Bathrooms
- Private Deck
- Panoramic River Views
- Excellent Transport Links
Description
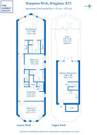
Finished to an excellent standard throughout, the interior features high-quality touches such as marble worktops in the kitchen and both bathrooms. The lower deck hosts a generous principal bedroom with a luxurious four-piece en-suite, a guest WC, and two further double bedrooms—one of which also benefits from an en-suite shower room. All bathrooms also benefit from underfloor heating.
The upper deck is designed for modern living, with a spacious open-plan kitchen and dining area. Bi-fold doors open directly onto a large private deck, offering panoramic river views—perfect for entertaining or relaxing. High ceilings and thoughtfully placed overhead windows flood the space with natural light, creating a bright and airy ambiance all year round.
Located in the desirable borough of Richmond, just moments from Hampton Wick and a short stroll across Kingston Bridge into Kingston town centre, you'll enjoy easy access to a wide range of shops, restaurants, cafes, cinemas, and the renowned Rose Theatre.
Commuters are well served with both Hampton Wick and Kingston train stations within easy walking distance, offering direct services to London Waterloo in approximately 25 minutes.
Brochures
Brochure 1- COUNCIL TAXA payment made to your local authority in order to pay for local services like schools, libraries, and refuse collection. The amount you pay depends on the value of the property.Read more about council Tax in our glossary page.
- Band: D
- PARKINGDetails of how and where vehicles can be parked, and any associated costs.Read more about parking in our glossary page.
- Ask agent
- GARDENA property has access to an outdoor space, which could be private or shared.
- Ask agent
- ACCESSIBILITYHow a property has been adapted to meet the needs of vulnerable or disabled individuals.Read more about accessibility in our glossary page.
- Ask agent
Energy performance certificate - ask agent
Panther Quay, Kingston Upon Thames, KT1
Add an important place to see how long it'd take to get there from our property listings.
__mins driving to your place
Get an instant, personalised result:
- Show sellers you’re serious
- Secure viewings faster with agents
- No impact on your credit score
Your mortgage
Notes
Staying secure when looking for property
Ensure you're up to date with our latest advice on how to avoid fraud or scams when looking for property online.
Visit our security centre to find out moreDisclaimer - Property reference RX627690. The information displayed about this property comprises a property advertisement. Rightmove.co.uk makes no warranty as to the accuracy or completeness of the advertisement or any linked or associated information, and Rightmove has no control over the content. This property advertisement does not constitute property particulars. The information is provided and maintained by The Agency Group, London. Please contact the selling agent or developer directly to obtain any information which may be available under the terms of The Energy Performance of Buildings (Certificates and Inspections) (England and Wales) Regulations 2007 or the Home Report if in relation to a residential property in Scotland.
*This is the average speed from the provider with the fastest broadband package available at this postcode. The average speed displayed is based on the download speeds of at least 50% of customers at peak time (8pm to 10pm). Fibre/cable services at the postcode are subject to availability and may differ between properties within a postcode. Speeds can be affected by a range of technical and environmental factors. The speed at the property may be lower than that listed above. You can check the estimated speed and confirm availability to a property prior to purchasing on the broadband provider's website. Providers may increase charges. The information is provided and maintained by Decision Technologies Limited. **This is indicative only and based on a 2-person household with multiple devices and simultaneous usage. Broadband performance is affected by multiple factors including number of occupants and devices, simultaneous usage, router range etc. For more information speak to your broadband provider.
Map data ©OpenStreetMap contributors.





