Shuttle Street, Kilbarchan, PA10

- PROPERTY TYPE
Terraced
- BEDROOMS
3
- BATHROOMS
2
- SIZE
Ask agent
- TENUREDescribes how you own a property. There are different types of tenure - freehold, leasehold, and commonhold.Read more about tenure in our glossary page.
Freehold
Description
Attractive traditional cottage set in this much sought after conservation village. One of the main features is the wonderful rear gardens which extend to approx 160ft in length. This lovely home offers spacious accommodation over 2 levels with the majority on the ground floor. There is gas central heating and most of the windows are double glazed. The property has been well maintained and features a newly fitted shower room. Lovely aspects to the rear overlooking the pretty garden and beyond over the village to woodland.
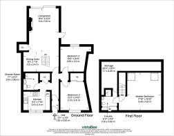
The ground floor comprises entrance vestibule, reception hall, large living room with broad patio doors opening to the rear gardens, open plan dining area, fitted kitchen, lovely new shower room and 2 double bedrooms. Upstairs is the large main bedroom with en suite shower room. Access to large storage space.
Kilbarchan is an historic conservation village which offers a range of local shops and facilities and is an ideal base for the commuting client, being adjacent to the by-pass which links up with the M8 motorway for connection to Glasgow International Airport, Paisley, Braehead shopping centre, Glasgow city centre and southwards to the Ayrshire coastline. Further shopping facilities can be found in the nearby town of Johnstone which will more than adequately cater for everyday needs and requirements. There is also a train station at Milliken Park, with additional park and ride facilities available at Johnstone and Howwood.
Early viewing is recommended of this charming cottage with fantastic gardens.
Brochures
Particulars- COUNCIL TAXA payment made to your local authority in order to pay for local services like schools, libraries, and refuse collection. The amount you pay depends on the value of the property.Read more about council Tax in our glossary page.
- Band: E
- PARKINGDetails of how and where vehicles can be parked, and any associated costs.Read more about parking in our glossary page.
- Ask agent
- GARDENA property has access to an outdoor space, which could be private or shared.
- Yes
- ACCESSIBILITYHow a property has been adapted to meet the needs of vulnerable or disabled individuals.Read more about accessibility in our glossary page.
- Ask agent
Shuttle Street, Kilbarchan, PA10
Add an important place to see how long it'd take to get there from our property listings.
__mins driving to your place
Get an instant, personalised result:
- Show sellers you’re serious
- Secure viewings faster with agents
- No impact on your credit score
About Slater Hogg & Howison, Bridge Of Weir
1 Windsor Place Windsor Place Main Street Bridge Of Weir PA11 3AF



Your mortgage
Notes
Staying secure when looking for property
Ensure you're up to date with our latest advice on how to avoid fraud or scams when looking for property online.
Visit our security centre to find out moreDisclaimer - Property reference BPG250206. The information displayed about this property comprises a property advertisement. Rightmove.co.uk makes no warranty as to the accuracy or completeness of the advertisement or any linked or associated information, and Rightmove has no control over the content. This property advertisement does not constitute property particulars. The information is provided and maintained by Slater Hogg & Howison, Bridge Of Weir. Please contact the selling agent or developer directly to obtain any information which may be available under the terms of The Energy Performance of Buildings (Certificates and Inspections) (England and Wales) Regulations 2007 or the Home Report if in relation to a residential property in Scotland.
*This is the average speed from the provider with the fastest broadband package available at this postcode. The average speed displayed is based on the download speeds of at least 50% of customers at peak time (8pm to 10pm). Fibre/cable services at the postcode are subject to availability and may differ between properties within a postcode. Speeds can be affected by a range of technical and environmental factors. The speed at the property may be lower than that listed above. You can check the estimated speed and confirm availability to a property prior to purchasing on the broadband provider's website. Providers may increase charges. The information is provided and maintained by Decision Technologies Limited. **This is indicative only and based on a 2-person household with multiple devices and simultaneous usage. Broadband performance is affected by multiple factors including number of occupants and devices, simultaneous usage, router range etc. For more information speak to your broadband provider.
Map data ©OpenStreetMap contributors.




