Skip to content

Hayes, Bromley (Kent)

Guide Price
£130,000
Allen Heritage, Shirley
PROPERTY TYPE

Land

SIZE

Ask agent

Key features

  • Approval to create a single storey two bedroom dwelling
  • Great small-scale development opportunity
  • Tucked away with easy access to the Village Centre
  • Hayes Station close by
  • Hayes Common close by for outdoor persuits

Description

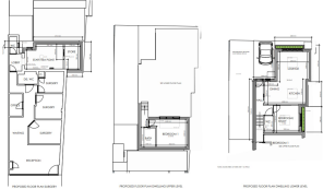
The Approval:

Planning permission has been granted for the construction of a new single-storey, split-level two-bedroom dwelling located to the rear of an existing commercial premises.

The approved scheme delivers:

Demolition of an existing garage and disused loading ramp

A new two-bedroom detached dwelling on a plot of approx. 225 sqm

Rear extension to the adjoining dental practice (approx. 21 sqm), to be constructed at the seller’s expense, with the purchaser undertaking the build. Completion of the dental practice extension is required by May 2026.

The Site:

Total site area approx. 225 sqm, currently comprising a redundant garage and disused loading ramp. Accessed via a service road.

Location:

The site is in the heart of Hayes, London Borough of Bromley, a busy suburban centre offering shops, cafés, pubs, and amenities.

Hayes railway station (terminus for the Hayes line to London Charing Cross) nearby

Well-served by multiple TfL bus routes

Green spaces close by, including Hayes Common and Husseywell Park

Documents available upon request:

Brochure

Approval & conditions

Design & access statement

GDV and local comparables

Images of proposed internal rooms

Contact the Land Team on

Hayes, Bromley (Kent)

NEAREST STATIONS

Distances are straight line measurements from the centre of the postcode
  • Hayes Station0.1 miles
  • West Wickham Station1.1 miles
  • Bromley South Station1.6 miles

About Allen Heritage, Shirley

151 Wickham Road, Shirley, Croydon CR0 8TE
Industry affiliations:Industry affiliation logo 0Industry affiliation logo 1Industry affiliation logo 2

Our local branches pack a powerful punch when it comes to marketing your property! With highly experienced staff and a wealth of local knowledge it is clear why we have been entrusted with so many Sole Agency instructions and why we have so many properties currently under offer or let. With Sales, Letting and Mortgage Broking all under one roof it really couldn't be more simple. Your local Independently agent owned since 1998. Call your local branch today and we will get you moving.

Notes

These notes are private, only you can see them.

Disclaimer - Property reference ab3031a2-5d69-4593-abb1-c9c0cce9fc61. The information displayed about this property comprises a property advertisement. Rightmove.co.uk makes no warranty as to the accuracy or completeness of the advertisement or any linked or associated information, and Rightmove has no control over the content. This property advertisement does not constitute property particulars. The information is provided and maintained by Allen Heritage, Shirley. Please contact the selling agent or developer directly to obtain any information which may be available under the terms of The Energy Performance of Buildings (Certificates and Inspections) (England and Wales) Regulations 2007 or the Home Report if in relation to a residential property in Scotland.

Map data ©OpenStreetMap contributors.